Реализация объекта недвижимости приостановлена

Информация о квартире

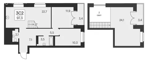
90.0 м2
Площадь
36.0 м2
Жилая
26.0 м2
Кухня
3
Комнаты
16
Этаж
30
Этажность
Развернуть

3-комнатная квартира: Новосибирск, жилой комплекс Мылзавод (90.54 м)

Обмен квартиры на новую. Предложение от застройщика. По всем вопросам обращайтесь в офис продаж, мы вам все подробно расскажем 3-комн. квартира с первичной отделкой в Квартал Мылзавод на 16 этаже. Общая площадь: 90.54 кв.м., жилая: 36.4 кв.м., площадь просторной кухни-гостиной: 26 кв.м. Угловая квартира, идеально подойдет любителям тишины и панорамных видов. В квартире одна лоджия, один совмещенный и один раздельный санузел. Высота потолков 2.72 м. Квартира находится в корпусе 8. Дом монолитный, одноподъездный, высотой 30 этажей. На этаже 9 квартир. В подъезде 1 пассажирский и 2 грузовых лифта. Окончание строительства - 4 квартал 2026 года. Оформление сделки по договору долевого участия. Квартира с кухней-гостиной и тремя спальнями в квартале «Мылзавод . Особенности планировки: второй санузел, рабочий кабинет, лоджия, предчистовая отделка.№ квартиры в нашей базе: МЛ-ГП4.1-8-8.16.8. Квартал «Мылзаводасположен в границах улиц Некрасова, Каменская, Писарева и Семьи Шамшиных. Во времена НЭПа на этом месте появилось промышленное предприятие, выпускавшее более тридцати видов мыла. Его продукция славилась высоким качеством и шла на экспорт. Восемь лет назад городские власти решили перенести все заводы из центральной части Новосибирска и отдали этот участок под жилую застройку. Ревитализация промышленных территорий — обычная для европейских городов практика. Она дает возможность насытить старые, неиспользуемые территории новыми востребованными функциями и таким образом «вернуть городу утраченные пространства. Сегодня вокруг квартала уже сформирована транспортная и социальная инфраструктура. Жители «Мылзавода смогут быстро добраться до главных достопримечательностей города — театра оперы и балета, «Глобуса и краеведческого музея. В шаговой доступности расположены автобусные остановки, две станции метро, четыре школы, а также один из самых больших торговых центров города — «Галерея . Квартал состоит из двух 9-этажных урбан-вилл, четырех 17-этажных и трех 30-этажных башен, объединенных стилобатом. В основу концепции «Мылзавода , которую Брусника разрабатывала совместно с голландскими и немецкими архитекторами, лег принцип mixed-use . Он предполагает совмещение в пределах одной локации жилого, рабочего, коммерческого и культурно-развлекательного пространств. На первых этажах домов разместятся продуктовые магазины, кафе, офисы, а также частный детский сад на 100 мест. Если Вы - риелтор, пожалуйста, за более подробной информацией обратитесь на горячую линию на нашем официальном сайте. (AQID

Читать полностью

    Реализация объекта недвижимости приостановлена

    Не нашли подходящего объявления?

    Оставьте заявку, и наши риэлторы подберут квартиру в новостройке в районе Новосибирска

    (0)