17 000 000 Р 209 900 $ или 179 700

Информация о квартире

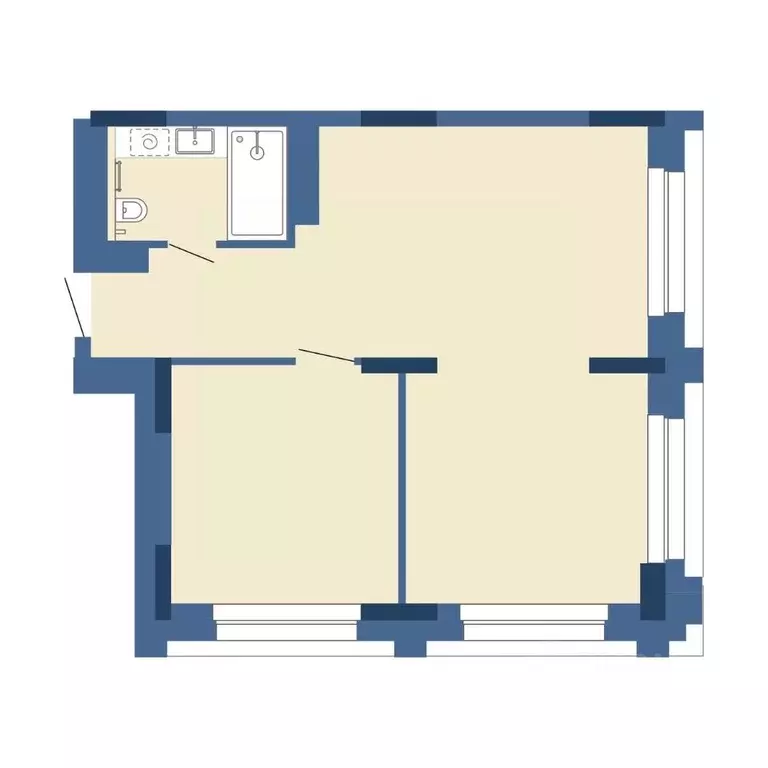
56 м2
Площадь
51 м2
Жилая
2
Комнаты
9
Этаж
30
Этажность
Развернуть
Агент
+7 (994) 252-59-09
Начать чат с агентом

2-к кв. Новосибирская область, Новосибирск Аэропорт мкр, (56.6 м)

GAGARIN CITY — отель бизнес-класса на первой линии Красного проспекта. Представляет собой 30-этажный отель, и 10-этажный коммерческий кластер, двухуровневый паркинг. Отель спроектирован по классической технологии железобетонного монолитного каркаса с кирпичным заполнением. В GAGARIN CITY 306 номеров с отделкой и полным оснащением. Они разделены на три категории: Studio - 23 кв. метра, Standart - 29 кв.метров, Suite - 59 кв. метров. Каждый номер оснащен сантехникой, металлопластиковыми окнами с двойными стеклопакетами, ударопрочными входными дверями с электронными замками. Централизованное управление федеральным отельным оператором VALO. Таким образом будущий владелец номера полностью освобождается от забот по заполняемости номеров арендаторами, заключению договоров аренды, ремонту, любым техническим и бытовым вопросам. Благоустройство прилегающей территории разделено по зонам, архитекторами предусмотрен проект ландшафтного озеленения. Все пешеходные переходы оборудованы удобными пандусами и съездами с тротуаров на уровень проезжей части. В шаговой доступности находятся станции метро Заельцовская и Гагаринская, ТРК Ройял парк, продуктовые магазины, медицинские учреждения, остановки общественного транспорта. Ввод объекта в эксплуатацию запланирован на 3 квартал 2026 года.

Читать полностью
    Позвонить Написать
    17 000 000 Р209 900 $ или 179 700
    Агент
    +7 (994) 252-59-09
    Начать чат с агентом
    Похожие предложения в Новосибирске
    3-комнатная квартира: Новосибирск, улица Аэропорт, 90 (94.74 м) - Фото 1
    3-комнатная квартира: Новосибирск, улица Аэропорт, 90 (94.74 м) - Фото 2
    3-комнатная квартира, общая площадь 94м², жилая 43м², кухня 19м²

    Обмен квартиры на новую. Предложение от застройщика. По всем вопросам обращайтесь в офис продаж, наши менеджеры вам все расскажут Просторная 3-комн. квартира с предчистовой отделкой в Квартал «Авиатор на 8 этаже. Общая площадь: 94.74 кв.м., жилая:...
    • 94 м²
    • 3-ком
    • 8/15 эт.
    16 190 000 Р
    Агент
    +7 (962) Показать номер
    Посмотреть контакты
    3-комнатная квартира: Новосибирск, улица Аэропорт, 90 (92.23 м) - Фото 1
    3-комнатная квартира: Новосибирск, улица Аэропорт, 90 (92.23 м) - Фото 2
    3-комнатная квартира, общая площадь 92м², жилая 43м², кухня 19м²

    Обмен квартиры на новую. Предложение от застройщика. Информация по телефону, наши менеджеры вам все расскажут 3-комн. квартира с предчистовой отделкой в Квартал «Авиатор на 9 этаже. Общая площадь: 92.23 кв.м., жилая: 43.5 кв.м., площадь просторной...
    • 92 м²
    • 3-ком
    • 9/15 эт.
    16 920 000 Р
    Агент
    +7 (962) Показать номер
    Посмотреть контакты
    3-к кв. Новосибирская область, Новосибирск Кедровая ул., 79 (133.89 м) - Фото 1
    3-к кв. Новосибирская область, Новосибирск Кедровая ул., 79 (133.89 м) - Фото 2
    3-комнатная квартира, общая площадь 133м²

    Вы хотите жить в тихом экологичном районе, рядом с сосновым лесом и парком?В новом жилом квартале премиум-класса?И чтобы до центра не более 20 минут на машине? Новый Кедровый — квартал премиум-класса у соснового леса. Здесь вас ждет настоящий VIP-уровень...
    • 133 м²
    • 3-ком
    • 7/8 эт.
    16 630 000 Р
    Агент
    +7 (958) Показать номер
    Посмотреть контакты
    2-комнатная квартира: Новосибирск, улица Аэропорт, 90 (100.08 м) - Фото 1
    2-комнатная квартира: Новосибирск, улица Аэропорт, 90 (100.08 м) - Фото 2
    2-комнатная квартира, общая площадь 100м², жилая 28м², кухня 35м²

    Обмен квартиры на новую. Предложение от застройщика. Звоните, мы вам все подробно расскажем 2-комн. квартира с предчистовой отделкой в Квартал «Авиатор на 14 этаже. Общая площадь: 100.08 кв.м., жилая: 28.3 кв.м., площадь просторной кухни-гостиной:...
    • 100 м²
    • 2-ком
    • 14/15 эт.
    17 380 000 Р
    Агент
    +7 (962) Показать номер
    Посмотреть контакты
    3-комнатная квартира, общая площадь 90м²

    Продаётся 3-комнатная квартира в строящемся доме (2 этап), срок сдачи: III-кв. 2028, общей площадью 90.1 кв.м., на 24 этаже. Новый жилой комплекс Оскар от компании Новый Мирасположен в Заельцовском районе Новосибирска на ул. Красный проспект.
    • 90 м²
    • 3-ком
    • 24/24 эт.
    17 050 000 Р
    Агент
    +7 (800) Показать номер
    Посмотреть контакты

    Не нашли подходящего объявления?

    Оставьте заявку, и наши риэлторы подберут квартиру в новостройке в районе Новосибирска

    (0)