4 500 000 Р 55 470 $ или 47 320

Информация о коттедже

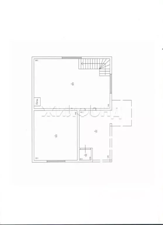
141.6 м2
Площадь
86 м2
Жилая
7 м2
Кухня
1996
Построен
2
Этажность
6
Количество комнат
12 м2
Участок

Состояние и оснащение

Дом
кирпичный
Год постройки
1996

Дополнительная информация

Дом продаётся вместе с участком
есть

Коммуникации

Водоснабжение
центральное

Оснащённость

Наличие интернета
подключен
Телефон
подключен
Развернуть
Агент
Алиона Станиславовна Басс
+7 (960) 780-67-52
Начать чат с агентом

Продажа дома, Репьево, Тогучинский район

Дом по ул. с/о Криница. Общей площадью: 141.60 кв.м.

ВСЕ ВИДЫ РАСЧЕТОВ! Подходит по МАТКАП. Возможна прописка! Возможен обмен на автомобиль или квартиру!
Продается ПРЕКРАСНЫЙ дом в очень ЖИВОПИСНОМ месте на РОВНОМ участке!
ДОМ-материал КИРПИЧ! ДВА ЭТАЖА!
В доме гостиная и ТРИ (!) комнаты! Весь первый этаж полностью подготовлен и подходит для круглогодичного проживания!
Кроме дома на участке есть баня, две теплицы и масса насаждений!
Прямо на участке растут сосны, пихты, туи, кедры, можжевельник! Плодоносит малина, смородина вишня и черноплодная рябина! Самый настоящий лес прямо на вашем участке! Хочется собирать ягоды и грибы не выходя за территорию своего участка?-ЛЕГКО!

Место располагает для уединения с природой и теплых моментов с вашими родными!
Приглашаем вас на просмотр! Это пространство не оставит вас равнодушными!



Возможен обмен на вашу недвижимость. Возможна продажа в рассрочку.

При звонке, пожалуйста, сообщите номер варианта -
JV

Читать полностью

    Для того, чтобы купить 2-этажный коттедж по адресу: Репьево, позвоните по телефону +7 (960) 780-67-52. Торопитесь! Объявление №506717370 о продаже двухэтажного коттеджа опубликовано Вчера.

    Позвонить Написать
    4 500 000 Р55 470 $ или 47 320
    Агент
    Алиона Станиславовна Басс
    +7 (960) 780-67-52
    Начать чат с агентом
    Похожие предложения
    Дом в Тогучинский район, Репьевский сельсовет, село Репьёво (56 м) - Фото 1
    2 этажа, общая площадь 56м², участок 16 соток

    Код объекта: 1913379.продается дача.......................................................................................................................................................................................................................................................................................................................................................................................................................................................................................................................................................................................................................................................................................................................................................................................................................................
    • 2 эт.
    • 56 м²
    • 16 сот.
    4 500 000 Р
    Агент
    +7 (960) Показать номер
    Посмотреть контакты
    Дом в Новосибирская область, Тогучинский район, Электротранспортник ... - Фото 1
    Дом в Новосибирская область, Тогучинский район, Электротранспортник ... - Фото 2
    2 этажа, общая площадь 83м², участок 3 сотки

    Продается просторный двухэтажный дом в городе Тогучин на улице ст Электротранспортник, дом 2. Общая площадь дома составляет 83.8 кв.м. Дом расположен в тихом и уютном районе, где можно насладиться спокойствием и красотой природы.Дом имеет удобную планировку...
    • 2 эт.
    • 83 м²
    • 3 сот.
    4 500 000 Р
    Агент
    +7 (987) Показать номер
    Посмотреть контакты
    Дом в Тогучинский район, садовое некоммерческое товарищество ... - Фото 1
    Дом в Тогучинский район, садовое некоммерческое товарищество ... - Фото 2
    общая площадь 83м², участок 3 сотки

    Дом по ул. ст Электротранспортник. Общей площадью: 83.80 кв.м. Продается просторный двухэтажный дом в городе Тогучин на улице ст Электротранспортник, дом 2. Общая площадь дома составляет 83.8 кв.м. Дом расположен в тихом и уютном районе, где можно насладиться...
    • 83 м²
    • 3 сот.
    4 500 000 Р
    Агент
    +7 (962) Показать номер
    Посмотреть контакты
    Дом в Новосибирская область, Коченевский район, Чик рп ул. ... - Фото 1
    Дом в Новосибирская область, Коченевский район, Чик рп ул. ... - Фото 2
    1 этаж, общая площадь 66м², участок 10 соток

    В продаже благоустроенный дом в центре рп Чик Внутри выполнен капитальный современный ремонт 3 спальни, кухня , с/у и душ. Газовое отопление, бойлер для подачи горячей воды. Септик 4,5 кубмПристройка из сибита сделана в 2016 году Участок ровный, чистый,...
    • 1 эт.
    • 66 м²
    • 10 сот.
    4 440 000 Р
    Агент
    +7 (987) Показать номер
    Посмотреть контакты
    Продажа дома, Раздольное, Новосибирский район, ул. Зеленая - Фото 1
    Продажа дома, Раздольное, Новосибирский район, ул. Зеленая - Фото 2
    Продажа дома, Раздольное, Новосибирский район, ул. Зеленая - Фото 3
    Продажа дома, Раздольное, Новосибирский район, ул. Зеленая - Фото 4
    Продажа дома, Раздольное, Новосибирский район, ул. Зеленая - Фото 5
    Продажа дома, Раздольное, Новосибирский район, ул. Зеленая - Фото 6
    Продажа дома, Раздольное, Новосибирский район, ул. Зеленая - Фото 7
    Продажа дома, Раздольное, Новосибирский район, ул. Зеленая - Фото 8
    блочный дом, 2 этажа, общая площадь 160м², жилая 110м², кухня 30м², кол-во комнат 6, год постройки 2024

    1/2 коттеджа по ул. Зеленая. Общей площадью: 160.00 кв.м. В продаже 1.2 доли в новом доме на два входа. ДОМ построен по современным технологиям! Идеальный вариант для тех, кто ценит комфорт и уединение. -Технология строительства- дом построен...
    • 2 эт.
    • 160 м²
    • 2.5 м²
    • 6-ком
    4 600 000 Р
    Агент
    +7 (960) Показать номер
    Посмотреть контакты

    Не нашли подходящего объявления?

    Оставьте заявку, и наши риэлторы подберут купить дом в районе Репьево

    (0)