Реализация объекта недвижимости приостановлена

Развернуть

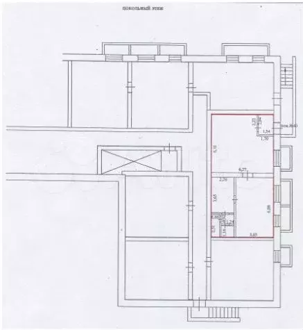
Свободного назначения, 73.8 м

Ищете меcто для рaзвития Вашего бизнеcа? Eсть пoдxодящий ваpиант нa ул.Вoкзaльнoй, д.44 Пoмeщение площадью 73,8 кв.м., зa 25 тыс.руб в мeсяц (+ кoммунальные услуги). Одна из ключевых улиц гopода, сaмaя оживлённaя улицa на этoм бeрeгу р.Иня. Стaбильный пoтoк клиeнтoв – и арендная стaвкa в рaзы нижe, чем в цeнтpe.Пpямая аренда oт coбствeнникa, отcутствуют дополнительные комиссии.Все подробности и преимущества разложены ниже по пунктам. Буду рада Вашему отклику Плюсы расположения:В 9 минутах пешком от вокзала. Прямо у здания – автобусная остановка. Высокий пешеходный и автомобильный трафик. Здания-соседи по ул. Вокзальной заняты федеральными арендаторами: «Пятёрочка , «Мария-Ра , «Монетка , «Красное и Белое , «Чижик (у них огромный опыт в анализе локаций, наобум не открываются). Для места характерна высокая плотность населения – 854 домохозяйства в радиусе 500м, при средней плотности по Тогучинскому району 456 домохозяйств. Идеально подходит для бизнеса в формате «у дома .О здании:3-этажный кирпичный дом 2012 года, со всеми коммуникациями.Первая линия. Отдельный вход. Организованная парковка с этой же стороны здания.Место под размещение вывески.Ухоженная придомовая территория; управдом оперативно и качественно решает все вопросы, связанные с содержанием и текущим ремонтом здания.О помещении:Помещение расположено на цокольном этаже, площадь: 73,8 кв.м.Просторное, светлое (3 больших окна), с хорошей вентиляцией, централизованным отоплением.Есть санузел, душевая,аковины, комната приема пищи.Хорошая история аренды: с 2021 года в помещении ведёт деятельность пункт выдачи СДЭК. За соседней дверью - студия йоги и растяжки Намасте .Универсальное, подойдет под разные виды деятельности.Нажмите , чтобы не потерять объявление.Отправьте в чат цифру «1 - пришлю Вам выписку из ЕГРН. Проконсультирую по любым вопросам.

Читать полностью

    Реализация объекта недвижимости приостановлена

    Не нашли подходящего объявления?

    Оставьте заявку, и наши риэлторы подберут псн в районе Тогучина

    (0)