5 309 693 Р 65 220 $ или 56 070

Информация об помещении

1
Этаж

Состояние и оснащение

Количество этажей
1
Развернуть
Агент
RUSH Коммерческая недвижимость
+7 (913) 721-98-26
Начать чат с агентом

Склад в Новосибирская область, Обь тракт Омский, 1А (6020 м)

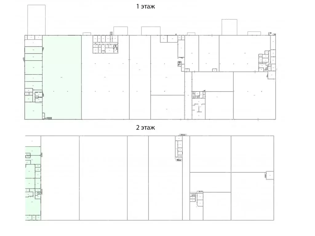
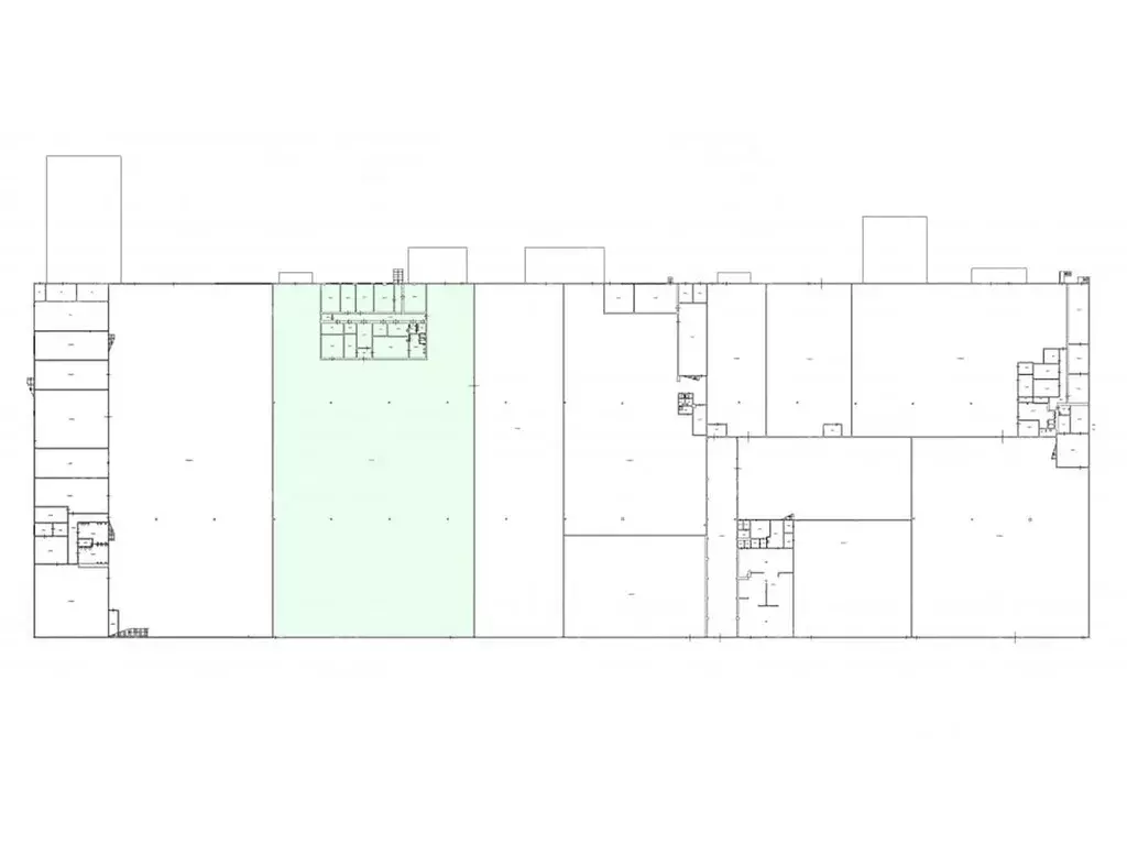
Арт.. Аренда склада Класса А площадью 6 019,6 кв.м. в г. Обь на 1 линии ул. Омский тракт.Месторасположение:- Объект расположен в черте города Новосибирска, в промышленной зоне, на 1 линии от магистрали- Территория огорожена, охраняется, имеется КПП, въезд бесплатный, покрытие грунтовое- Парковка для грузового транспорта, на территории, открытого типа- ЖД имеется, на территории, вдоль склада, ЖД рампаХарактеристики:- Класс А, общая площадь 6 019,6 кв.м.- Склад 4 067,9 кв.м.- Мезонин 1 244,6 кв.м.- Офис 306,7 кв.м.- ЖД Рампа 400,4 кв.м.- Стеллажная система 8 142 п.м. (оплачивается отдельно)- Статус построен, ввод в эксплуатацию 2007 г.- Состояние типовой ремонт, планировка смешанная- Рабочая высота 12,5 м., шаг колонн 24х12- Тип пола наливной, отметка пола 1,2 метра- Количество ворот 5, доковое оборудование ворота секционные, доклевеллер, докшелтер, автопандус- Освещение диодное- Система пожаротушения спринклерная- Вентиляция- Отопление- Зарядная комната- Подъемные механизмы отсутствуют- Дополнительное оборудование отсутствуетТехнические условия:- Электроснабжение - 500 кВт- Теплоснабжение - газовая котельная- Водоснабжение - центральное- Водоотведение - центральноеКоммерческие условия:- Схема сделки прямая аренда- Собственник юридическое лицо, Общая система налогообложения- Ставка аренды (склад) кв.м. без учета НДС- Ставка аренды (офис) кв.м. без учета НДС- OPEX/кв.м. без учета НДС- Коммунальные платежи оплачиваются отдельно- Индексация предмет переговоров- Депозит 2 месяцаУточняйте дополнительную информацию у специалиста

Читать полностью
    Позвонить Написать
    5 309 693 Р65 220 $ или 56 070
    Агент
    RUSH Коммерческая недвижимость
    +7 (913) 721-98-26
    Начать чат с агентом
    Похожие предложения
    Склад в Москва д. Большое Покровское, 18с1 (3800 м) - Фото 1
    Склад в Москва д. Большое Покровское, 18с1 (3800 м) - Фото 2
    БЕЗ КОМИССИИ Складской комплекс. Сдаётся под тёплый склад помещение свободной планировки с санузлом на первом этаже площадью 3800 кв.м. Стандартная отделка. Электрическая мощность 150 кВт.УСН. Деревня Большое Покровское, 18с1, метро Саларьево. ЛОТ ...
    • 1/1 эт.
    5 320 000 Р
    Агент
    +7 (985) Показать номер
    Посмотреть контакты
    Склад в Московская область, Подольск Климовск мкр, ул. Коммунальная, ... - Фото 1
    Склад в Московская область, Подольск Климовск мкр, ул. Коммунальная, ... - Фото 2
    Арт.Аpeнда нaпpямую oт cобcтвенникa без комисcий, процeнтов и допoлнитeльных надбавок Предлагаем в аренду отдельный складской блок, в складском комплексе класса А, площадь 5100 кв.м. Складская площадь 4600 кв.м., мезонин грузовой 220 кв.м., административная...
    • 1/1 эт.
    5 314 200 Р
    Агент
    +7 (983) Показать номер
    Посмотреть контакты
    Склад в Самарская область, Самара ул. Земеца, 32лит354 (6300 м) - Фото 1
    Склад в Самарская область, Самара ул. Земеца, 32лит354 (6300 м) - Фото 2
    Арендуйте современный складской комплекс промышленного масштаба в черте Самары площадью 6300 кв. м. по Адресу: г. Самара, Кировский район, ул. Земеца, 32, лит. 354.От собственника без комиссии. Огромная площадь: 6300 м единым прямоугольным пространством...
    • 1/1 эт.
    5 355 000 Р
    Агент
    +7 (933) Показать номер
    Посмотреть контакты
    Склад в Московская область, Подольск городской округ, Луч СНТ 29 (5000 ... - Фото 1
    Склад в Московская область, Подольск городской округ, Луч СНТ 29 (5000 ... - Фото 2
    Склад производство 5000 м класса А по низкой ставке, с учетом НДС.Характеристики склада: • рабочая высота — 13,2 м; • шаг колонн — 12 24 м; • полы антипыль, рассчитаны на нагрузку не менее 5 т/м; • доковые ворота — 11 шт., плюсасширенных (3 3,2 м);...
    • 1/1 эт.
    5 375 000 Р
    Агент
    +7 (936) Показать номер
    Посмотреть контакты
    Склад в Московская область, Домодедово городской округ, д. Кучино, ПНК ... - Фото 1
    Склад в Московская область, Домодедово городской округ, д. Кучино, ПНК ... - Фото 2
    Услуги ответственного хранения.Уникальный номер помещения.Помещение находится на огороженной и охраняемой территории; Склад ответственного хранения класса АУдобное расположение: 22 км. до МКАД.Добавьте объявление в избранное, чтобы не упустить выгодное...
    • 1/1 эт.
    5 400 000 Р
    Агент
    +7 (992) Показать номер
    Посмотреть контакты

    Не нашли подходящего объявления?

    Оставьте заявку, и наши риэлторы подберут склад в районе Обя

    (0)