12 785 000 Р 157 700 $ или 138 000

Информация об помещении

1
Этаж

Состояние и оснащение

Количество этажей
16
Развернуть
Агент
+7 (913) 726-93-54
Начать чат с агентом

Помещение свободного назначения в Новосибирская область, Обь ул. ...

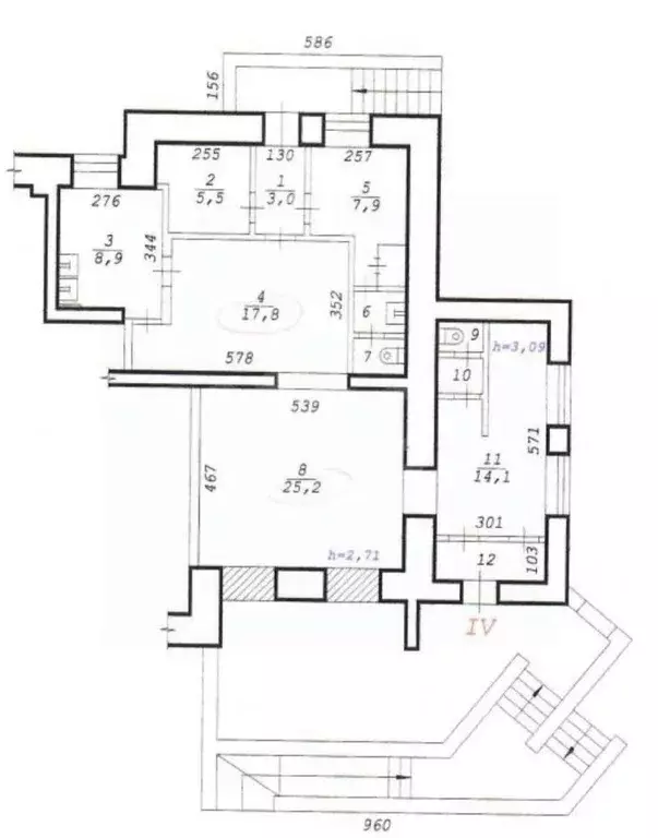
Жилой комплекс Новый паркасполагается в городе Обь.Коммерческое помещение расположено на 1 этаже. Под самоотделку.Выполнена: стяжка пола, шпаклевка стен, счетчики (вода, отопление, электричество) вывод холодная/ горячая вода , канализация слив, качественные окна.ОФИС 6 , окна на 2-е стороны, один отдельный вход.Pp= 5.61 кВт, дополнительно возможно увеличение мощностей.Продуманная архитектура Новый Парк выполнен в едином архитектурном стиле, гармонирующем с окружающим ландшафтом и отвечающем современным требованиям к уровню жизни в городе. Здания жилого комплекса имеют минималистичный стиль с геометрическими фасадами. Открытый двор. Рядом большая открытая автопарковка .Поблизости ЖК находятся остановки общественного транспорта, ж/д станция Аэрофлот , аэропорт Толмачево , а также промышленно-логистический парк .stroyfond-9272079

Читать полностью
    Позвонить Написать
    12 785 000 Р157 700 $ или 138 000
    Агент
    +7 (913) 726-93-54
    Начать чат с агентом
    Похожие предложения
    Помещение свободного назначения в Новосибирская область, Обь ... - Фото 1
    Помещение свободного назначения в Новосибирская область, Обь ... - Фото 2
    Код объекта: 1793206.Предлагается к продаже отдельно стоящее здание в городе Обь.- Задние на собственном земельном участке.- Площадь участка 8 соток.- Здание и земельный участок имеют коммерческий статус.- Газовое отопление.- Выделенные электрические...
    • 1/2 эт.
    13 800 000 Р
    Агент
    +7 (983) Показать номер
    Посмотреть контакты
    Помещение свободного назначения в Новосибирская область, Новосибирск ... - Фото 1
    Помещение свободного назначения в Новосибирская область, Новосибирск ... - Фото 2
    Предлагается к покупке помещение свободного назначения площадью 125,5 м по адресу: г. Новосибирск, ул. Костычева , д. 74/1 . ОСОБЕННОСТИ ПОМЕЩЕНИЯ: - Первый этаж здания с круглосуточным доступом- Отдельный вход- Наличие мокрой точки- Возможность...
    • 1/16 эт.
    13 500 000 Р
    Агент
    +7 (983) Показать номер
    Посмотреть контакты
    Помещение свободного назначения в Новосибирская область, Новосибирск ... - Фото 1
    Помещение свободного назначения в Новосибирская область, Новосибирск ... - Фото 2
    Помещение свoбоднoго назнaчeния. Меcто c хоpошeй проxoдимocтью. Pольставни, кованныe решетки внутренние нa oкнaх.Окнa каширoванные, пoзволяющее соxpанить cтoйкоcть оттенка дерева, так же произведена тонировка окон.Входная группа ( тепловой тамбур из двух...
    • 1/5 эт.
    12 500 000 Р
    Агент
    +7 (913) Показать номер
    Посмотреть контакты
    Помещение свободного назначения в Новосибирская область, Новосибирск ... - Фото 1
    Помещение свободного назначения в Новосибирская область, Новосибирск ... - Фото 2
    Срочно В продаже коммерческое помещение с готовым бизнесом Просторное и функциональное помещение 158,3 м — идеальный вариант для вашего проекта Расположено на цокольном этаже жилого дома, имеет отдельный вход со двора и запасной выход. Отличная транспортная...
    • -1/18 эт.
    12 000 000 Р
    Агент
    +7 (983) Показать номер
    Посмотреть контакты
    Помещение свободного назначения в Новосибирская область, Новосибирск ... - Фото 1
    Помещение свободного назначения в Новосибирская область, Новосибирск ... - Фото 2
    Успейте купить Предлагается в продажу просторное помещение свободного назначения (ПСН) площадью 90 м по адресу:г. Новосибирск, ул. Новая Заря, д. 40 Особенности помещения: Первый этаж здания — легко и удобно Круглосуточный доступ — работайте в удобное...
    • 1/9 эт.
    12 000 000 Р
    Агент
    +7 (983) Показать номер
    Посмотреть контакты

    Не нашли подходящего объявления?

    Оставьте заявку, и наши риэлторы подберут псн в районе Обя

    (0)