23 000 000 Р 299 400 $ или 257 200

Информация о коттедже

126 м2
Площадь
10 cоток
Участок

Дополнительная информация

Дом продаётся вместе с участком
есть
Развернуть
Агент
+7 (962) 824-47-15
Начать чат с агентом

Дом в Мичуринский сельсовет, ДНТ Солнечный (126 м)

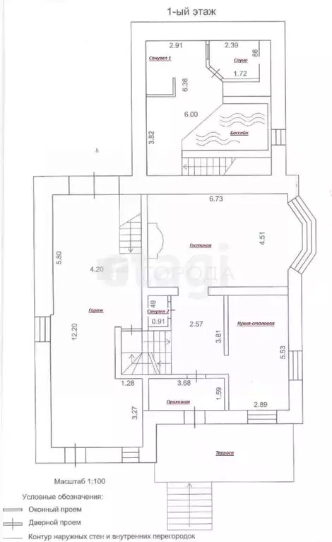
Коттедж по ул. днт Солнечный. Общей площадью: 126.00 кв.м. ДНТ Солнечный. 2-этажный дом 2018г.п. из профилированого бруса 185 мм., II этаж (мансардный) - каркас утепление 250 мм. минват) на фундаменте ж.б плита на ленточном.I этаж: прихожая, котельная (хозблок), туалет, ванная с сауной, кухня-гостиная со вторым светом, детская спальня, хозяйская спальня.II этаж: лестничный холл - кабинет, детская.Коммуникации: централизованный водопровод Горводоканал, газ (котел Bахi), электричество 15 кВт, теплын полы на I этаже, радиаторы - на II этаже.Баня 2023г.п. (каркасная технология 200 мм. минвата), фундамент - плита, отопление - теплые полы (трасса из дома под землей), печь Гейзер от Термофор. Комната отдыха позволяет использовать баню как гостевой дом.Гараж (каркасная технология утепление 150мм) состоит из 2 отдельных боксов с собственными подьемными воротами на пульте. Фундамент - плита по ленте.Хозблок.Дровяник.Каркасный бассейн глубиной 120 см. с системой фильтрации.Теплица из поликарбоната, 3 грядки. Посадки - смородина, жимолость, декоративные кустарники. Откатные ворота на пульте. Парковочная зона 1210 м. - бетон 150 мм. на 3 авто.Участок 10 соток, в глубине общества - нет пыли и транзита транспорта. Асфальт практически до участка.До Оби - 300 метров, пляж, настоящая березовая роща Хорошие, дружелюбные соседи.Участок и дом - в собственности. Возможен обмен на вашу недвижимость. Возможна продажа в рассрочку.При звонке, пожалуйста, сообщите номер варианта - JV.

Читать полностью

    Для того, чтобы купить коттедж по адресу: ДНТ Солнечный, позвоните по телефону +7 (962) 824-47-15. Торопитесь! Объявление №50016637704 о продаже коттеджа опубликовано Сегодня.

    Позвонить Написать
    23 000 000 Р299 400 $ или 257 200
    Агент
    +7 (962) 824-47-15
    Начать чат с агентом
    Похожие предложения в Новосибирском районе
    Дом в Новосибирская область, Новосибирский район, Кудряшовский дп ул. ... - Фото 1
    Дом в Новосибирская область, Новосибирский район, Кудряшовский дп ул. ... - Фото 2
    3 этажа, общая площадь 447м², участок 9 соток

    Код объекта: 1373801.В продаже коттедж в одном из лучших коттеджных поселков Новосибирска. Сосновый бор, река Обь, поселок Кудряшовский. ДОМ- 3 уровня, плюс цоколь и гараж,- построен из кирпича, - ЦЕНТРАЛЬНЫЕ КОММУНИКАЦИИ Холодная и горячая вода, отопление...
    • 3 эт.
    • 447 м²
    • 9 сот.
    22 500 000 Р
    Агент
    +7 (983) Показать номер
    Посмотреть контакты
    Продажа дома, Юный Ленинец, Новосибирский район, Береговая - Фото 1
    Продажа дома, Юный Ленинец, Новосибирский район, Береговая - Фото 2
    Продажа дома, Юный Ленинец, Новосибирский район, Береговая - Фото 3
    Продажа дома, Юный Ленинец, Новосибирский район, Береговая - Фото 4
    Продажа дома, Юный Ленинец, Новосибирский район, Береговая - Фото 5
    Продажа дома, Юный Ленинец, Новосибирский район, Береговая - Фото 6
    Продажа дома, Юный Ленинец, Новосибирский район, Береговая - Фото 7
    Продажа дома, Юный Ленинец, Новосибирский район, Береговая - Фото 8
    Продажа дома, Юный Ленинец, Новосибирский район, Береговая - Фото 9
    Продажа дома, Юный Ленинец, Новосибирский район, Береговая - Фото 10
    Продажа дома, Юный Ленинец, Новосибирский район, Береговая - Фото 11
    Продажа дома, Юный Ленинец, Новосибирский район, Береговая - Фото 12
    Продажа дома, Юный Ленинец, Новосибирский район, Береговая - Фото 13
    Продажа дома, Юный Ленинец, Новосибирский район, Береговая - Фото 14
    Продажа дома, Юный Ленинец, Новосибирский район, Береговая - Фото 15
    Продажа дома, Юный Ленинец, Новосибирский район, Береговая - Фото 16
    Продажа дома, Юный Ленинец, Новосибирский район, Береговая - Фото 17
    Продажа дома, Юный Ленинец, Новосибирский район, Береговая - Фото 18
    Продажа дома, Юный Ленинец, Новосибирский район, Береговая - Фото 19
    Продажа дома, Юный Ленинец, Новосибирский район, Береговая - Фото 20
    блочный дом, 2 этажа, общая площадь 330м², жилая 100м², кухня 20м², кол-во комнат 6, год постройки 2006

    Коттедж по ул. Береговая. Общей площадью: 330.00 кв.м. В поселке Юный Ленинец продадим 2-эт. коттедж 2006 г.п. на ленточном фундаменте., стены сибит 400мм., крыша утеплена, гидро -и пароизолирована, кровля металлочерепица. Разноуровневая высота...
    • 2 эт.
    • 330 м²
    • 9.2 м²
    • 6-ком
    22 940 000 Р
    Агент
    +7 (960) Показать номер
    Посмотреть контакты
    Продажа дома, Марусино, Новосибирский район - Фото 1
    Продажа дома, Марусино, Новосибирский район - Фото 2
    Продажа дома, Марусино, Новосибирский район - Фото 3
    Продажа дома, Марусино, Новосибирский район - Фото 4
    Продажа дома, Марусино, Новосибирский район - Фото 5
    Продажа дома, Марусино, Новосибирский район - Фото 6
    Продажа дома, Марусино, Новосибирский район - Фото 7
    Продажа дома, Марусино, Новосибирский район - Фото 8
    Продажа дома, Марусино, Новосибирский район - Фото 9
    Продажа дома, Марусино, Новосибирский район - Фото 10
    Продажа дома, Марусино, Новосибирский район - Фото 11
    Продажа дома, Марусино, Новосибирский район - Фото 12
    Продажа дома, Марусино, Новосибирский район - Фото 13
    Продажа дома, Марусино, Новосибирский район - Фото 14
    Продажа дома, Марусино, Новосибирский район - Фото 15
    Продажа дома, Марусино, Новосибирский район - Фото 16
    Продажа дома, Марусино, Новосибирский район - Фото 17
    Продажа дома, Марусино, Новосибирский район - Фото 18
    Продажа дома, Марусино, Новосибирский район - Фото 19
    Продажа дома, Марусино, Новосибирский район - Фото 20
    кирпичный дом, 1 этаж, общая площадь 131м², жилая 60м², кухня 15м², кол-во комнат 6, год постройки 2021

    Коттедж по ул. Третьяковых бульвар. Общей площадью: 131.00 кв.м. ДОРОГОЙ ПОКУПАТЕЛЬ, ДЛЯ ВАС С ЛЮБОВЬЮ И ЗАБОТОЙ ОБУСТРОИЛИ ЭТОТ ДОМ!! КЛАССНЫЙ, СОВРЕМЕННЫЙ КОТТЕДЖ В ПОСЕЛКЕ СОЛОВЬИ. 2022 года постройки. ВСЕГО 5 КМ ОТ ГОРОДА, село Марусино. Он...
    • 1 эт.
    • 131 м²
    • 7.6 м²
    • 6-ком
    24 000 000 Р
    Агент
    +7 (960) Показать номер
    Посмотреть контакты
    Продажа дома, Тулинский, Новосибирский район, Академика Першилина - Фото 1
    Продажа дома, Тулинский, Новосибирский район, Академика Першилина - Фото 2
    Продажа дома, Тулинский, Новосибирский район, Академика Першилина - Фото 3
    Продажа дома, Тулинский, Новосибирский район, Академика Першилина - Фото 4
    Продажа дома, Тулинский, Новосибирский район, Академика Першилина - Фото 5
    Продажа дома, Тулинский, Новосибирский район, Академика Першилина - Фото 6
    Продажа дома, Тулинский, Новосибирский район, Академика Першилина - Фото 7
    Продажа дома, Тулинский, Новосибирский район, Академика Першилина - Фото 8
    Продажа дома, Тулинский, Новосибирский район, Академика Першилина - Фото 9
    Продажа дома, Тулинский, Новосибирский район, Академика Першилина - Фото 10
    Продажа дома, Тулинский, Новосибирский район, Академика Першилина - Фото 11
    Продажа дома, Тулинский, Новосибирский район, Академика Першилина - Фото 12
    Продажа дома, Тулинский, Новосибирский район, Академика Першилина - Фото 13
    Продажа дома, Тулинский, Новосибирский район, Академика Першилина - Фото 14
    Продажа дома, Тулинский, Новосибирский район, Академика Першилина - Фото 15
    Продажа дома, Тулинский, Новосибирский район, Академика Першилина - Фото 16
    Продажа дома, Тулинский, Новосибирский район, Академика Першилина - Фото 17
    Продажа дома, Тулинский, Новосибирский район, Академика Першилина - Фото 18
    Продажа дома, Тулинский, Новосибирский район, Академика Першилина - Фото 19
    Продажа дома, Тулинский, Новосибирский район, Академика Першилина - Фото 20
    кирпичный дом, 3 этажа, общая площадь 511.1м², жилая 200м², кухня 20м², кол-во комнат 6, год постройки 2017

    Коттедж по ул. Академика Першилина. Общей площадью: 511.10 кв.м. ШИКАРНЫЙ КОТТЕДЖ с ОТЛИЧНЫМ РЕМОНТОМ, МЕБЕЛЬЮ и ТЕХНИКОЙ В ЭЛИТНОМ КОТТЕДЖНОМ ПОСЕЛКЕ! СТРОИЛИ ДЛЯ СЕБЯ. ОБЩАЯ ПЛОЩАДЬ ДОМА 511 м2. ОЧЕНЬ УДОБНАЯ ПЛАНИРОВКА для жизни двух поколений...
    • 3 эт.
    • 511.1 м²
    • 10 м²
    • 6-ком
    23 000 000 Р
    Агент
    +7 (960) Показать номер
    Посмотреть контакты
    Продажа дома, Марусино, Новосибирский район - Фото 1
    Продажа дома, Марусино, Новосибирский район - Фото 2
    Продажа дома, Марусино, Новосибирский район - Фото 3
    Продажа дома, Марусино, Новосибирский район - Фото 4
    Продажа дома, Марусино, Новосибирский район - Фото 5
    Продажа дома, Марусино, Новосибирский район - Фото 6
    Продажа дома, Марусино, Новосибирский район - Фото 7
    Продажа дома, Марусино, Новосибирский район - Фото 8
    Продажа дома, Марусино, Новосибирский район - Фото 9
    Продажа дома, Марусино, Новосибирский район - Фото 10
    Продажа дома, Марусино, Новосибирский район - Фото 11
    Продажа дома, Марусино, Новосибирский район - Фото 12
    Продажа дома, Марусино, Новосибирский район - Фото 13
    Продажа дома, Марусино, Новосибирский район - Фото 14
    Продажа дома, Марусино, Новосибирский район - Фото 15
    Продажа дома, Марусино, Новосибирский район - Фото 16
    Продажа дома, Марусино, Новосибирский район - Фото 17
    Продажа дома, Марусино, Новосибирский район - Фото 18
    Продажа дома, Марусино, Новосибирский район - Фото 19
    Продажа дома, Марусино, Новосибирский район - Фото 20
    кирпичный дом, 1 этаж, общая площадь 131м², жилая 60м², кухня 15м², кол-во комнат 6, год постройки 2021

    Коттедж по ул. Третьяковых бульвар. Общей площадью: 131.00 кв.м. ДОРОГОЙ ПОКУПАТЕЛЬ, ДЛЯ ВАС С ЛЮБОВЬЮ И ЗАБОТОЙ ОБУСТРОИЛИ ЭТОТ ДОМ!! КЛАССНЫЙ, СОВРЕМЕННЫЙ КОТТЕДЖ В ПОСЕЛКЕ СОЛОВЬИ. 2022 года постройки. ВСЕГО 5 КМ ОТ ГОРОДА, село Марусино. Он...
    • 1 эт.
    • 131 м²
    • 7.6 м²
    • 6-ком
    24 000 000 Р
    Агент
    +7 (960) Показать номер
    Посмотреть контакты

    Не нашли подходящего объявления?

    Оставьте заявку, и наши риэлторы подберут купить дом в районе Новосибирского района

    (0)