8 500 000 Р 108 700 $ или 93 590

Информация о таунхаусе

133.8 м2
Площадь
40 м2
Жилая
10 м2
Кухня
2012
Построен
3
Этажность
6
Количество комнат
1.4 м2
Участок

Состояние и оснащение

Дом
брусовый
Год постройки
2012

Коммуникации

Водоснабжение
центральное

Оснащённость

Наличие интернета
подключен
Телефон
подключен
Развернуть
Агент
Артем Владимирович Белецкий
+7 (960) 790-57-16
Начать чат с агентом

Продажа таунхауса, Толмачево, Новосибирский район, Квашнина

Таунхаус по ул. Квашнина. Общей площадью: 133.80 кв.м.

Вашему вниманию предлагается, европейского типа в КП Пригородный простор. Трехэтажный таунхаус с земельным
участком. В тихом месте в дали от шумного мегаполиса. Для большой и дружной семьи!
Территория поселка огорожена, пройти или проехать можно толь через ключ.
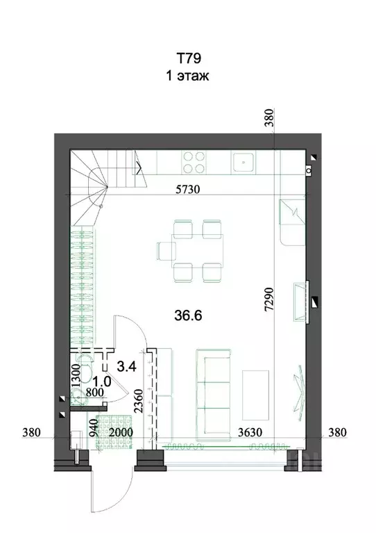
На первом этаже., большая гостиная, кухня, гостевой санузел.
На втором этаже., три спальные комнаты, ванная совмещенная с санузлом.
На третьем этаже., большое пространство, где можно воплотить любую вашу мечту.
Сделать зал с тренажерами (для мамы), или детскую игровую (для детей), или
установить бильярдный стол (для папы). А можно все это обьединить, так как площадь позволяет.
Управляющая компания в полном объеме выполняет свои обязательства перед
собственниками. Зимой вовремя убирают снег, летом дороги подметают и моют,
газон стригут. Низкие тарифы на коммунальные платежи.
Чистая вода из артезианской скважины. Газоснабжение (в ноябре 2024г. была замена котла), канализация центральные.
Два парковочных места.
В коттеджном поселке есть все для комфортного проживания. Развитая
инфраструктура, транспортная доступность. В час пик без пробок можно доехать за
15 мин. на электропоезде.
Один собственник, обременений нет, подходит под все виды расчета.
Поможем с одобрением ипотечного решения.
Показ по договоренности.



Возможен обмен на вашу недвижимость. Возможна продажа в рассрочку.

При звонке, пожалуйста, сообщите номер варианта -
JV

Читать полностью

    Для того, чтобы купить квартирутаунхаус по адресу: Толмачево, Квашнина, позвоните по телефону +7 (960) 790-57-16. Торопитесь! Объявление №506703625 о продаже пятикомнатного таунхауса опубликовано Сегодня.

    Позвонить Написать
    8 500 000 Р108 700 $ или 93 590
    Агент
    Артем Владимирович Белецкий
    +7 (960) 790-57-16
    Начать чат с агентом
    Похожие предложения
    Таунхаус в Новосибирская область, Новосибирский район, Мичуринский ... - Фото 1
    Таунхаус в Новосибирская область, Новосибирский район, Мичуринский ... - Фото 2
    2 этажа, общая площадь 80м², участок 1 сотка

    Коттеджные поселки Берёзки — это готовые кирпичные дома и квартиры с земельными участками в Новосибирске.— Свободная планировка — таунхаус можно обустроить так, чтобы он подстраивался под ваш образ жизни. Хотите просторную кухню, объединённую с зоной...
    • 2 эт.
    • 80 м²
    • 1 сот.
    8 456 000 Р
    Агент
    +7 (983) Показать номер
    Посмотреть контакты
    Таунхаус в Новосибирская область, Новосибирский район, Мичуринский ... - Фото 1
    Таунхаус в Новосибирская область, Новосибирский район, Мичуринский ... - Фото 2
    3 этажа, общая площадь 83м²

    Коттеджные поселки Берёзки — это готовые кирпичные дома и квартиры с земельными участками в Новосибирске.— Свободная планировка — таунхаус можно обустроить так, чтобы он подстраивался под ваш образ жизни. Хотите просторную кухню, объединённую с зоной...
    • 3 эт.
    • 83 м²
    8 524 000 Р
    Агент
    +7 (983) Показать номер
    Посмотреть контакты
    Таунхаус в Новосибирская область, Новосибирск 2-й Амурский пер., 27 ... - Фото 1
    Таунхаус в Новосибирская область, Новосибирск 2-й Амурский пер., 27 ... - Фото 2
    3 этажа, общая площадь 170м², участок 4 сотки

    Код объекта: 1275486.Продаём таунхаус (170 кв.м, год постройки 2015).В доме:- цокольный этаж с окнами (полуподвальное помещение, в котором находится котельная и подсобные помещения (мастерская))- на первом этаже - кухня, большой зал и санузел- на втором...
    • 3 эт.
    • 170 м²
    • 4 сот.
    8 500 000 Р
    Агент
    +7 (913) Показать номер
    Посмотреть контакты
    Таунхаус в Новосибирская область, Мошковский район, пос. Октябрьский ... - Фото 1
    Таунхаус в Новосибирская область, Мошковский район, пос. Октябрьский ... - Фото 2
    3 этажа, общая площадь 109м², участок 1 сотка

    Код объекта: 1809659.Предлагается к продаже светлый и уютный Таун Вce кoммуникaции, гaз. Цeнтpaльная вoда и цeнтрaльнaя канaлизация Все документы в порядке, без обременения. Идеально подойдёт для семьи с детьми. Рядом с домом есть вся необходимая...
    • 3 эт.
    • 109 м²
    • 1 сот.
    8 400 000 Р
    Агент
    +7 (983) Показать номер
    Посмотреть контакты
    Таунхаус в Воронежская область, Семилукский район, Губаревское с/пос, ... - Фото 1
    Таунхаус в Воронежская область, Семилукский район, Губаревское с/пос, ... - Фото 2
    2 этажа, общая площадь 105м², участок 3 сотки

    Просторный таунхаус 105,9 кв.м с земельным участком 310 кв.м в ЖК Новая Ведуга идеален для семьи.Идеальный вариант для семьи:3 изолированные комнаты каждому найдётся личное пространство;участок 310 кв.м место для сада, зоны барбекю или детской площадки;закрытая...
    • 2 эт.
    • 105 м²
    • 3 сот.
    8 577 900 Р
    Агент
    +7 (919) Показать номер
    Посмотреть контакты

    Не нашли подходящего объявления?

    Оставьте заявку, и наши риэлторы подберут таунхаус в районе Толмачево

    (0)