38 000 000 Р 467 100 $ или 401 400

Информация о коттедже

289 м2
Площадь
3
Этажность
10 cоток
Участок

Дополнительная информация

Дом продаётся вместе с участком
есть
Развернуть
Агент
+7 (913) 725-06-99
Начать чат с агентом

Дом в Новосибирская область, Новосибирский район, Мочищенский ...

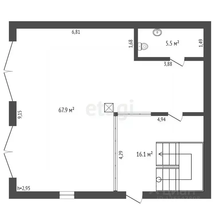
Коттедж расположен в современном поселке Италия.ру , отличающемся продуманной инфраструктурой и высоким уровнем безопасности. Поселок охраняется круглосуточно, патрулирование территории обеспечивает спокойную и приватную атмосферу для жителей. Все центральные коммуникации уже подключены и функционируют в штатном режиме. Электроснабжение каждого домовладения обеспечивается разрешенной мощностью до 14,5 кВт. Водопроводная система, введенная в эксплуатацию в 2013 году, гарантирует стабильное водоснабжение с техническими условиями до 1 кубометра на дом. Газоснабжение также полностью организовано: магистральный газопровод подключен и находится под контролем надзорных органов с декабря 2013 года, с лимитом до 5 кубометров в час на каждое домовладение.Дом предлагается к продаже в состоянии, готовом для заселения. Планировка отличается рациональностью и продумана для комфортного проживания семьи: просторные светлые комнаты, изолированные зоны, современная отделка. Участок благоустроен, предусмотрены возможности для озеленения или размещения зоны отдыха. Высокая транспортная доступность позволяет быстро добраться до ключевых объектов городской инфраструктуры, при этом поселок расположен в экологически благоприятном районе. Это решение для тех, кто ценит надежность, качество жизни и стремится обрести дом без необходимости доработок и ожидания подключения коммуникаций. Объект представляет собой сбалансированное сочетание инвестиционной привлекательности и повседневного комфорта. Дополнительно оплачивается комиссия с покупателя.Код пользователя: 220067Номер в базе: 5042678

Читать полностью

    Для того, чтобы купить 3-этажный коттедж по адресу: Озерный, улица Петрарка, 133, позвоните по телефону +7 (913) 725-06-99. Торопитесь! Объявление №50016197611 о продаже трехэтажного коттеджа опубликовано 15 октября 2025.

    Позвонить Написать
    38 000 000 Р467 100 $ или 401 400
    Агент
    +7 (913) 725-06-99
    Начать чат с агентом
    Похожие предложения
    Продажа дома, Озерный, Новосибирский район - Фото 1
    Продажа дома, Озерный, Новосибирский район - Фото 2
    Продажа дома, Озерный, Новосибирский район - Фото 3
    Продажа дома, Озерный, Новосибирский район - Фото 4
    Продажа дома, Озерный, Новосибирский район - Фото 5
    Продажа дома, Озерный, Новосибирский район - Фото 6
    Продажа дома, Озерный, Новосибирский район - Фото 7
    Продажа дома, Озерный, Новосибирский район - Фото 8
    Продажа дома, Озерный, Новосибирский район - Фото 9
    Продажа дома, Озерный, Новосибирский район - Фото 10
    Продажа дома, Озерный, Новосибирский район - Фото 11
    Продажа дома, Озерный, Новосибирский район - Фото 12
    Продажа дома, Озерный, Новосибирский район - Фото 13
    Продажа дома, Озерный, Новосибирский район - Фото 14
    Продажа дома, Озерный, Новосибирский район - Фото 15
    Продажа дома, Озерный, Новосибирский район - Фото 16
    Продажа дома, Озерный, Новосибирский район - Фото 17
    Продажа дома, Озерный, Новосибирский район - Фото 18
    Продажа дома, Озерный, Новосибирский район - Фото 19
    Продажа дома, Озерный, Новосибирский район - Фото 20
    кирпичный дом, 2 этажа, общая площадь 338.3м², жилая 100м², кухня 70м², кол-во комнат 6, год постройки 2021

    Коттедж по ул. днт Ветеран Афганистана. Общей площадью: 338.30 кв.м. Уважаемые покупатели! Предлагается к покупке уникальный дом, классической кирпичной кладки , выполненный по высоким стандартам частного домостроения. Общая площадь дома 338кв.м....
    • 2 эт.
    • 338.3 м²
    • 11 м²
    • 6-ком
    38 500 000 Р
    Агент
    +7 (960) Показать номер
    Посмотреть контакты
    Продажа дома, Новолуговое, Новосибирский район, ул. Октябрьская - Фото 1
    Продажа дома, Новолуговое, Новосибирский район, ул. Октябрьская - Фото 2
    Продажа дома, Новолуговое, Новосибирский район, ул. Октябрьская - Фото 3
    Продажа дома, Новолуговое, Новосибирский район, ул. Октябрьская - Фото 4
    Продажа дома, Новолуговое, Новосибирский район, ул. Октябрьская - Фото 5
    Продажа дома, Новолуговое, Новосибирский район, ул. Октябрьская - Фото 6
    Продажа дома, Новолуговое, Новосибирский район, ул. Октябрьская - Фото 7
    Продажа дома, Новолуговое, Новосибирский район, ул. Октябрьская - Фото 8
    Продажа дома, Новолуговое, Новосибирский район, ул. Октябрьская - Фото 9
    Продажа дома, Новолуговое, Новосибирский район, ул. Октябрьская - Фото 10
    Продажа дома, Новолуговое, Новосибирский район, ул. Октябрьская - Фото 11
    Продажа дома, Новолуговое, Новосибирский район, ул. Октябрьская - Фото 12
    Продажа дома, Новолуговое, Новосибирский район, ул. Октябрьская - Фото 13
    Продажа дома, Новолуговое, Новосибирский район, ул. Октябрьская - Фото 14
    Продажа дома, Новолуговое, Новосибирский район, ул. Октябрьская - Фото 15
    Продажа дома, Новолуговое, Новосибирский район, ул. Октябрьская - Фото 16
    Продажа дома, Новолуговое, Новосибирский район, ул. Октябрьская - Фото 17
    Продажа дома, Новолуговое, Новосибирский район, ул. Октябрьская - Фото 18
    Продажа дома, Новолуговое, Новосибирский район, ул. Октябрьская - Фото 19
    Продажа дома, Новолуговое, Новосибирский район, ул. Октябрьская - Фото 20
    кирпичный дом, 3 этажа, общая площадь 775.1м², жилая 421.9м², кухня 226.2м², кол-во комнат 6, год постройки 2007

    Коттедж по ул. Октябрьская. Общей площадью: 775.10 кв.м. В продаже трёхэтажный коттедж классической кирпичной кладки с автономными коммуникациями, собственной системой отопления и водоснабжения, общей площадью 775,1 кв.м. Расположен на огороженной...
    • 3 эт.
    • 775.1 м²
    • 16 м²
    • 6-ком
    37 000 000 Р
    Агент
    +7 (960) Показать номер
    Посмотреть контакты
    Коттедж в Новосибирская область, Новосибирский район, Мичуринский ... - Фото 1
    Коттедж в Новосибирская область, Новосибирский район, Мичуринский ... - Фото 2
    общая площадь 334м², участок 10 соток

    Предлагается к продаже уютный, комфортный, современный и эстетически безупречный объект дом с гаражом и баня с бассейном, расположенном на 10 сотках земли в живописном месте - поселок Юный Ленинец, территория ДНТ Солнечный, на улице с красивым и вкусным...
    • 334 м²
    • 10 сот.
    37 000 000 Р
    Агент
    +7 (983) Показать номер
    Посмотреть контакты
    Дом в Новосибирская область, Новосибирский район, Морской сельсовет, ... - Фото 1
    Дом в Новосибирская область, Новосибирский район, Морской сельсовет, ... - Фото 2
    3 этажа, общая площадь 557м², участок 20 соток

    Предлагаем к просмотру и приобретению просторный дом в экологически чистом районе Новосибирска. Расположен дом в обособленном коттеджном поселке из 12 статусных домовладений.Особенности дома:- Общая площадь 554,8 кв. м. - Гараж на 2 автомобиля с автоматическими...
    • 3 эт.
    • 557 м²
    • 20 сот.
    39 000 000 Р
    Агент
    +7 (983) Показать номер
    Посмотреть контакты
    Продажа дома, Новосибирск, ул. Выборная - Фото 1
    Продажа дома, Новосибирск, ул. Выборная - Фото 2
    Продажа дома, Новосибирск, ул. Выборная - Фото 3
    Продажа дома, Новосибирск, ул. Выборная - Фото 4
    Продажа дома, Новосибирск, ул. Выборная - Фото 5
    Продажа дома, Новосибирск, ул. Выборная - Фото 6
    Продажа дома, Новосибирск, ул. Выборная - Фото 7
    Продажа дома, Новосибирск, ул. Выборная - Фото 8
    Продажа дома, Новосибирск, ул. Выборная - Фото 9
    Продажа дома, Новосибирск, ул. Выборная - Фото 10
    Продажа дома, Новосибирск, ул. Выборная - Фото 11
    Продажа дома, Новосибирск, ул. Выборная - Фото 12
    Продажа дома, Новосибирск, ул. Выборная - Фото 13
    Продажа дома, Новосибирск, ул. Выборная - Фото 14
    Продажа дома, Новосибирск, ул. Выборная - Фото 15
    Продажа дома, Новосибирск, ул. Выборная - Фото 16
    Продажа дома, Новосибирск, ул. Выборная - Фото 17
    Продажа дома, Новосибирск, ул. Выборная - Фото 18
    Продажа дома, Новосибирск, ул. Выборная - Фото 19
    Продажа дома, Новосибирск, ул. Выборная - Фото 20
    кирпичный дом, 3 этажа, общая площадь 397м², жилая 140м², кухня 59м², кол-во комнат 6, год постройки 1993

    Коттедж по ул. Выборная. Общей площадью: 397.00 кв.м. Продается роскошный коттедж в экологично чистом районе Новосибирска на улице Выборная. Уютное место для проживания для большой и дружной семьи. В доме два этаже плюс третий жилой мансардный этаж...
    • 3 эт.
    • 397 м²
    • 8 м²
    • 6-ком
    38 500 000 Р
    Агент
    +7 (968) Показать номер
    Посмотреть контакты

    Не нашли подходящего объявления?

    Оставьте заявку, и наши риэлторы подберут купить дом в районе Озерного

    (0)