Реализация объекта недвижимости приостановлена

Информация о квартире

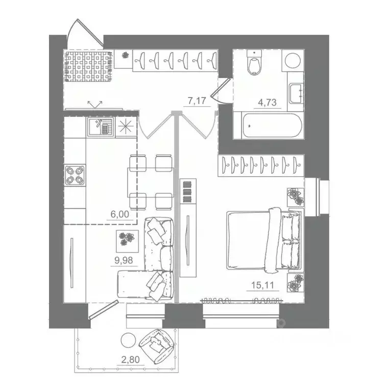
42.0 м2
Площадь
32.0 м2
Жилая
6.0 м2
Кухня
студия
Комнат
4
Этаж
4
Этажность

Дополнительная информация

Тип дома
кирпичный
Развернуть

Студия Новосибирская область, Кольцово рп, Спектр мкр (42.99 м)

Дом, где каждый найдет своё место, ощутит спокойствие и комфорт.Современный малоэтажный квартал в Кольцово в гармонии с природой, где вы будете наслаждаться живописными видами, прогуливаться по благоустроенным аллеям или лесным тропинкам.В квартале продумано все для спокойной и комфортной жизни:Свободные планировочные решения, чтобы каждый мог организовать своё комфортное пространство;Коворкинги и мягкие зоны ожидания на первом этаже, где вы сможете спокойно работать или устраивать деловые встречи;Просторные колясочные и лапомойки для питомцев - забота о каждом члене семьи;На -1 этаже мы расположили эргономичные кладовые, чтобы организовать удобное хранение сезонных вещей.

Читать полностью

    Реализация объекта недвижимости приостановлена

    Не нашли подходящего объявления?

    Оставьте заявку, и наши риэлторы подберут квартиру в новостройке в районе Кольцово

    (0)