7 500 000 Р 96 820 $ или 83 470

Информация о коттедже

100 м2
Площадь
1
Этажность
8 cоток
Участок

Дополнительная информация

Дом продаётся вместе с участком
есть
Развернуть
Агент
+7 (913) 013-43-56
Начать чат с агентом

Дом в Новосибирская область, Новосибирский район, Толмачевский ...

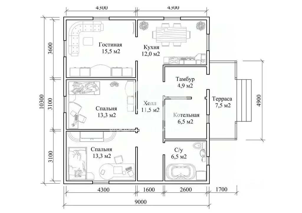
Код объекта: 1927875.Уникальное предложение для тех, кто ищет комфортное жильё в тихом и живописном месте Продаётся новый дом в деревне Алексеевка Новосибирского района, по адресу Центральная улица. Дом расположен в самом центе Алексеевке До школы и детсада 3 минуты пешком Через улицу есть живописное озеро с пляжем. В деревне есть поликлиника, почта России, сетевые магазины . До города 15-20 минут Дом построен в 2025 году из качественного кирпича, перекрытия — металлические. межкомнатные перегородки кирпичные, Высота потолков — 3 метра, что создаёт ощущение простора и свободы. Общая площадь дома — 100 квадратных метров, из них жилая площадь — 65 квадратных метров. Кухня гостиная площадью 20 квадратных метров станет местом для семейных ужинов и дружеских посиделок.В доме четыре комнаты (15+20+15+15 кв. м), идеально подходящие для большой семьи.Возможна планировка по вашему желанию Дом подключён к центральным коммуникациям: электроснабжение, водоснабжение, газ, канализация. Отопление — центральное, что гарантирует комфорт в любое время года.Участок площадью 8 соток имеет статус индивидуального жилищного строительства, а подъезд к нему заасфальтирован. Дом идеально подходит для круглогодичного проживания.Ремонт white box позволяет новым владельцам воплотить свои дизайнерские идеи и создать уютное пространство по своему вкусу.Не упустите возможность стать владельцем этого прекрасного дома Позвоните нам прямо сейчас, чтобы узнать больше и договориться о просмотре. В продаже осталось 2 дома ,у вас есть выбрать более интересный для вас вариант.Мы гарантируем безопасную сделку и юридическую поддержку нашим клиентам. .ВНИМАНИЕ Действуют все виды льготной ипотеки. Для участников СВО ипотека 3 (оформление 2 недели) А также сельская, семейная и айти Действует система рассрочки и обмена на вашу недвижимость Поможем одобрить ипотеку с сниженной ставкой .

Читать полностью

    Для того, чтобы купить 1-этажный коттедж по адресу: Алексеевка, ул. Центральная, позвоните по телефону +7 (913) 013-43-56. Торопитесь! Объявление №50016587500 о продаже одноэтажного коттеджа опубликовано 29 ноября 2025.

    Позвонить Написать
    7 500 000 Р96 820 $ или 83 470
    Агент
    +7 (913) 013-43-56
    Начать чат с агентом
    Похожие предложения
    Дом в Новосибирская область, Новосибирский район, Толмачевский ... - Фото 1
    Дом в Новосибирская область, Новосибирский район, Толмачевский ... - Фото 2
    1 этаж, общая площадь 100м², участок 8 соток

    Код объекта: 1689928.Внимание Для участников сво Ипотека под 3 Срок оформления 2недели .успейте до 1 января 2025г Отличное предложение для тех кто ищет дом своей мечты. Продаётся одноэтажный кирпичный дом в деревне Алексеевка Новосибирского района,...
    • 1 эт.
    • 100 м²
    • 8 сот.
    7 500 000 Р
    Агент
    +7 (913) Показать номер
    Посмотреть контакты
    3 этажа, общая площадь 268м², участок 16 соток

    Предлагается к продаже кирпичный загородный дом для круглогодичного проживания. Дом переменной этажности: 3 этажа, просторная кухня, 5 жилых комнат, высокие потолки, овощехранилище, пристроенный к дому вместительный гараж с ремонтной ямой и классная...
    • 3 эт.
    • 268 м²
    • 16 сот.
    7 500 000 Р
    Агент
    +7 (913) Показать номер
    Посмотреть контакты
    Дом в Новосибирская область, Новосибирский район, с. Толмачево ул. ... - Фото 1
    Дом в Новосибирская область, Новосибирский район, с. Толмачево ул. ... - Фото 2
    1 этаж, общая площадь 100м², участок 6 соток

    Арт. 27030 Продам дом. Этого года постройки. В доме газ, городская вода. Дорога освальтирована. Рядом школа,остановка транспорта. ПОДХОДИТ ПОД СЕМЕЙНУЮ ИПОТЕКУ. . Дополнительно оплачивается комиссия с покупателя
    • 1 эт.
    • 100 м²
    • 6 сот.
    7 500 000 Р
    Агент
    +7 (913) Показать номер
    Посмотреть контакты
    1 этаж, общая площадь 139м², участок 7 соток

    Арт.Продаётся дом в селе Барышево.По документам- квартира на земле, общей площадью:139,2 м2.1 этаж: кухня, 4 комнаты, сан. узел.Мансардный этаж: 2 спальни, сан. узел.Гараж, баня, веранда, хозяйственные постройки.Центральный водопровод, септик.Отапливается...
    • 1 эт.
    • 139 м²
    • 7 сот.
    7 500 000 Р
    Агент
    +7 (913) Показать номер
    Посмотреть контакты
    Коттедж в Новосибирская область, Новосибирский район, Каменский ... - Фото 1
    Коттедж в Новосибирская область, Новосибирский район, Каменский ... - Фото 2
    1 этаж, общая площадь 140м², участок 4 сотки

    Продажа коттеджа в Каменском сельсовете, микрорайон Близкий, дом 1355.Предлагается к продаже уютный коттедж площадью 140 кв.м., расположенный в тихом и благоустроенном микрорайоне Близкий. Коттедж одноэтажный, этажность - 1.В непосредственной близости...
    • 1 эт.
    • 140 м²
    • 4 сот.
    7 500 000 Р
    Агент
    +7 (934) Показать номер
    Посмотреть контакты

    Не нашли подходящего объявления?

    Оставьте заявку, и наши риэлторы подберут купить дом в районе Алексеевки

    (0)