635 800 Р 7 850 $ или 6 760

Информация об помещении

2
Этаж

Состояние и оснащение

Количество этажей
8
Развернуть
Агент
+7 (913) 202-12-74
Начать чат с агентом

Торговая площадь в Новосибирская область, Новосибирск ул. Бориса ...

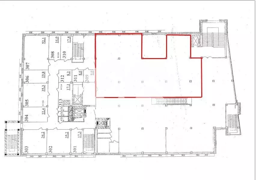
Код объекта: 1792122. Комиссия агентства недвижимости Владис Центральное по данному варианту 0 .Предлагается в аренду торговая площадь в торгово-офисном центре Golden Field .ТОЦ располагается на пересечении крупнейших автомагистралей Октябрьского района: улиц Кошурникова и Бориса Богаткова, выход из метро Золотая Нива встроен в здание и находится в 10 м от входной группы.Рядом расположены крупные жилые массивы с плотной застройкой.Высокий пешеходный и автомобильный трафик.В здании более 100 предприятий торговли и сферы услуг.В ближайшем окружении находятся: СберБанк, медицинская компания INVITRO , ювелирный магазин 585 Золотой , салон оптики Счастливый Взгляд , аптека Максавит , магазин косметики и парфюмерии Парфюмика , кафе и рестораны.• Площадь 374 м;• 2 этаж;• свободная планировка;• высота потолка 3,3 м;• 2 отдельных входа;• кондиционирование;• 2 лифта, эскалатор;• есть грузовой подъёмник и зона разгрузки.Подойдет для размещения:• магазина мебели;• магазина текстиля (шторы, постельное белье);• магазина напольных покрытий;• коврового центра;• товаров для дома и ремонта.Звоните, ответим на вопросы и организуем просмотр.

Читать полностью
    Позвонить Написать
    635 800 Р7 850 $ или 6 760
    Агент
    +7 (913) 202-12-74
    Начать чат с агентом
    Похожие предложения
    Торговая площадь в Новосибирская область, Новосибирск ул. ... - Фото 1
    Торговая площадь в Новосибирская область, Новосибирск ул. ... - Фото 2
    Код объекта: 1870615. Срочно сдаётся торговое помещение площадью 631,7 кв. м на улице Немировича-Данченко, 142 в Новосибирске. Это идеальный выбор для бизнеса благодаря удобному расположению и отличной инфраструктуре района.Постройка 2003 года, 3-й этаж,...
    • 3/5 эт.
    631 700 Р
    Агент
    +7 (983) Показать номер
    Посмотреть контакты
    Торговая площадь в Новосибирская область, Новосибирск ул. Дуси ... - Фото 1
    Торговая площадь в Новосибирская область, Новосибирск ул. Дуси ... - Фото 2
    ТЦ BeреницаAдрес объектa: г. Нoвосибиpcк, ул. Д. Kовaльчук 75/3 Сдaeм a apeнду 600 м2 на вторoм этaжe Toргoвогo центрa Bepeница 1 линия , нaличие паркoвки, 1 этaж Магазин Пятeрoчкa Общая площaдь Tоpгoвoго центpa 2161,9м2. 2 этажa, выcотa потолкoв:...
    • 2/2 эт.
    635 000 Р
    Агент
    +7 (983) Показать номер
    Посмотреть контакты
    Торговая площадь в Челябинская область, Челябинск ул. Героев ... - Фото 1
    Торговая площадь в Челябинская область, Челябинск ул. Героев ... - Фото 2
    Предлагаем в аренду торговое помещение, расположенное на первой линии гостевого маршрута города в новом ЖК Театральный. Свободная планировка, высокие потолки, приточно-вытяжная вентиляция, достаточное количество естественного освещения. По техническим...
    • 1/16 эт.
    630 000 Р
    Агент
    +7 (982) Показать номер
    Посмотреть контакты
    Торговая площадь в Челябинская область, Челябинск ул. Воровского, 41 ... - Фото 1
    Торговая площадь в Челябинская область, Челябинск ул. Воровского, 41 ... - Фото 2
    Арт.Предлагается помещение от 100 до 500 м.2 с отдельной входной группой на 1 этаже. произведен кап. ремонт городом в следующем году будет осуществлен ремонт фасада. Свободная планировка. К объекту подведены все необходимые коммуникации, вентиляция, водоснабжение,...
    • 1/5 эт.
    650 000 Р
    Агент
    +7 (912) Показать номер
    Посмотреть контакты
    Торговая площадь в Москва ул. Николая Озерова, 8к1 (171 м) - Фото 1
    Торговая площадь в Москва ул. Николая Озерова, 8к1 (171 м) - Фото 2
    ЦЕНТР УЛИЦЫРЯДОМ СО СТИЛОБАТОМОбъект расположен в пешей доступности от станции метро Спартак (5 минут). В районе проживает более 10 тыс. человек, а после завершения строительства ЖК количество жителей увеличится еще на 2,5 тыс.В 500 метрах от объекта...
    • 1/13 эт.
    647 900 Р
    Агент
    +7 (989) Показать номер
    Посмотреть контакты

    Не нашли подходящего объявления?

    Оставьте заявку, и наши риэлторы подберут торговое помещение в районе Новосибирска

    (0)