Реализация объекта недвижимости приостановлена

Информация об помещении

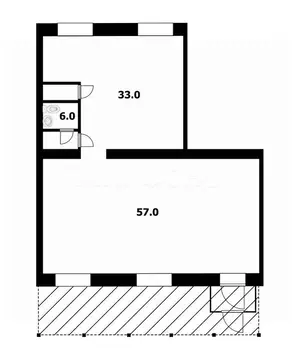
1
Этаж

Состояние и оснащение

Количество этажей
5
Развернуть

Торговая площадь в Новосибирская область, Новосибирск ул. Ленина, 79 ...

БЕЗ КОМИССИИ ДЛЯ АРЕНДАТОРОВ... Предлагаем в долгосрочную аренду нежилое помещение торгового/свободного назначения на 1 этаже 5-ти этажного МКД по улице Ленина (ЦАО, Железнодорожный район города Новосибирска).Возможные виды использования: торгово-выставочный зал и офис торговой компании, интернет-магазин и пункт выдачи заказов интернет-магазина, шоурум/бутик женской (детской) одежды, салон-магазин по продаже нижнего белья, табачная лавка, специализированный салон-магазин (промышленные товары), мебельный и интерьерный салон, салон-магазин по продаже компьютеров, микроэлектроники и мобильных телефонов; оказание услуг населению в области красоты и здоровья: салон красоты, маникюр/педикюр, депиляция, косметология; *оказание услуг населению в области медицины и здравоохранения - медицинский центр, салон аппаратной косметологии, клиника и лабораторные исследования; *предприятие общественного питания: кофейня-кондитерская (без полного цикла приготовления блюд), гастро-бутик с винотекой.Локация: 5-ти этажное здание МКД, расположено на 1 линии застройки улицы Ленина - перекрёсток с улицей 1905 года, недалеко от привокзальной площади Гарина-Михайловского и комплекса зданий Вокзала Новосибирск - Главный, в шаговой доступности от станции Метрополитена Площадь Гарина-Михайловского (2/3 минуты пешим ходом), центральная часть Железнодорожного района города Новосибирска.*Отличная транспортная инфраструктура и доступность: поблизости расположена станция Метрополитена Площадь Гарина-Михайловского, привокзальная площадь и здание железнодорожного Вокзала Новосибирск-Главный, рядом две остановки общественного транспорта, в шаговой доступности ТЦ Апельсин, гостиница Маринс Парк Новосибирск, магазины/супермаркеты, различные предприятия сферы обслуживания и общепита, которые позволяют генерировать значительный пешеходный и автомобильный трафик для развития вашего бизнеса.*Блок помещений расположен на 1 этаже здания МКД, оборудован 2 отдельными входными узлами с фасада; *В помещении установлены 4 панорамные витрины для размещения рекламы/вывески арендатора; *На конструкциях входных групп, предусмотрен специальный фриз для размещения вывески компании - арендатора, обустроена зона/территория для подъезда/разгрузки малотоннажного грузового транспорта, есть благоустроенная зона для парковки автомобилей организации - арендатора и клиентов (на 5-7 автомобилей).Общая площадь блока помещений - 65,0 м2, планировочное решение: 2 отдельных входных узла (основной с фасада здания, второй со двора), 2 смежных торговых зала свободной планировки (есть один простенок и колонна), подсобное помещение и санузел, высота потолка - 3,6 метра (лофт).*Техническое состояние помещения: отличное, выполнен капитальный ремонт всех конструкций, включая полную замену инженерных сетей и коммуникаций (ремонт выполнен в 2024 году).Инженерные сети и коммуникации: выделенная электрическая мощность - до 20,0 кВт, центральное отопление, центральное водоснабжение/водоотведение, установлена система пожа

Читать полностью

    Реализация объекта недвижимости приостановлена

    Не нашли подходящего объявления?

    Оставьте заявку, и наши риэлторы подберут торговое помещение в районе Новосибирска

    (0)