Реализация объекта недвижимости приостановлена

Информация об помещении

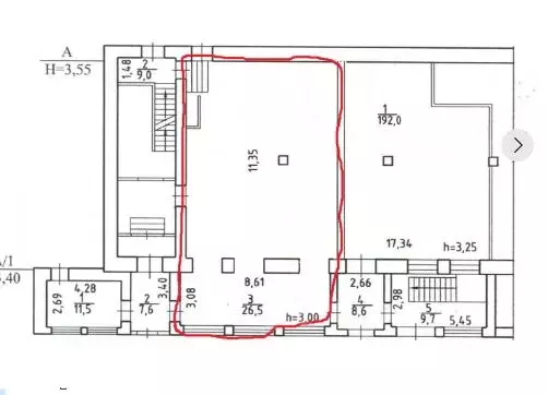
цоколь
Этаж

Состояние и оснащение

Количество этажей
3
Развернуть

Торговая площадь в Новосибирская область, Новосибирск просп. Карла ...

Аренда помещения 231.1 м у метро Площадь Маркса (цокольный этаж, отдельный вход)- Площадь: 231.1 м, цокольный этаж в кирпичном здании (1/3 этажей). - Локация: 30 секунд до выхода метро Площадь Маркса — максимальный пешеходный/автотрафик. - Инфраструктура: - Отдельный вход, парковка на прилегающей территории. - Центральные отопление, ХВС/ГВС, вентиляция, интернет. - Энергоресурсы: 39 кВт (под производство, серверную, лабораторию). Трафик 15 000+ чел/день (данные метрополитена) Условия аренды - Ставка: 346 650 /мес (1 500 /м) + обеспечительный платеж- Коммунальные платежи оплачиваются отдельно. - Доступ сразу после заключения договора. 1. Поток клиентов 24/7 — локация у метро гарантирует проходимость. 2. Мощность для бизнеса — 39 кВт обеспечит работу: - Пищевого производства (пекарня, кухня). - Фотостудии с профессиональным светом. - IT-кластера (серверные стойки). 3. Автономность — отдельный вход для работы в нерабочие часы. 4. Готовая инфраструктура — вода, вентиляция, парковка. 5. Адаптивность — open space легко зонируется под цех, шоурум, склад. Идеально для бизнеса с высоким энергопотреблением: - Пищевое производство (холодильные камеры, печи). Для пищевых производств: близость метро = сокращение логистики до центра на 40 . Экономия на доставке покроет ставку аренды.- Дата-центр (серверное оборудование). - Мелкосерийное производство (3D-печать, лазерная резка). - Логистический хаб (сортировк Дополнительно оплачивается комиссия с покупателя.Код пользователя:Номер в базе: 8945801

Читать полностью

    Реализация объекта недвижимости приостановлена

    Не нашли подходящего объявления?

    Оставьте заявку, и наши риэлторы подберут торговое помещение в районе Новосибирска

    (0)