2 520 000 Р 31 060 $ или 26 500

Информация об помещении

1
Этаж

Состояние и оснащение

Количество этажей
1
Развернуть
Агент
+7 (913) 732-60-41
Начать чат с агентом

Склад в Новосибирская область, Новосибирск Выборная ул., 186 (2800 м)

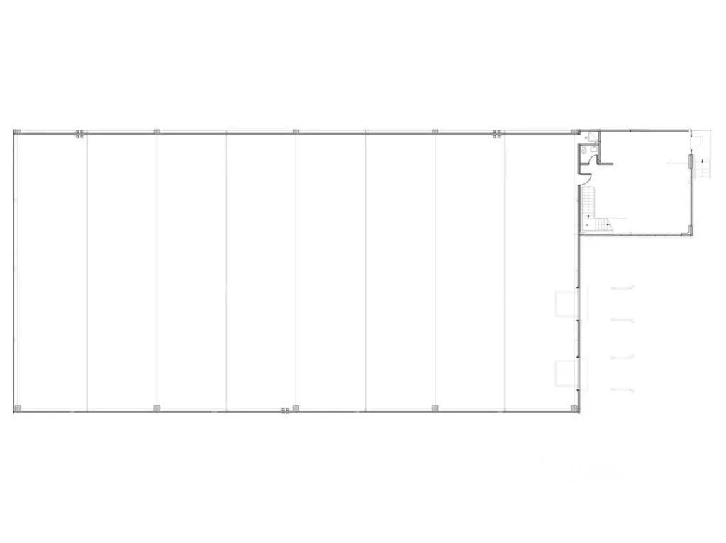
Предлагается в аренду новый склад класса В+ на ул.Выборная от 1400 до 9000 м2 (сдача первых секций в апреле 2026 г) от опытного складского девелопера Месторасположение:г.Новосибирск, ул. Выборная, прямой заезд с первой линии, огороженная и охраняемая территория, удобная площадка для маневрирования еврофур. Характеристики склада:- 6 секций по +/- 1400 м2= 9000 м2;- высота потолка 10 м;- отваливаемые склады до +20-23С;- пол ровный беспылевой, на отметке 1,2 м от уровня земли; - 3 ворота докового типа в каждой секции;- есть возможность организации антресоли для офисных помещений. Коммуникации:- газовое отопление (собственная газовая котельная);- центральное водоснабжение;- автономное водоотведение;- э/м до 600 кВт. Юридический аспект:Собственник юридическое лицо, прямая аренда, возможен долгосрочный договор аренды. Коммерческий аспект:Арендная ставка - за 1 м2. Без НДС. Дополнительно оплачивается коммунальные и эксплуатационные расходы. При заключении договора аренды оплачивается обеспечительный платеж в размере одной месячной арендной платы и предоплата за 1-й месяц аренды.Приглагаем на осмотр и заключение предварительных договоров аренды. Консалтинговая компания DN Group - официальный представитель собственника, без комиссии для арендатора

Читать полностью
    Позвонить Написать
    2 520 000 Р31 060 $ или 26 500
    Агент
    +7 (913) 732-60-41
    Начать чат с агентом
    Похожие предложения
    Склад в Новосибирская область, Новосибирск Холодильная ул., 13/1 (5000 ... - Фото 1
    Склад в Новосибирская область, Новосибирск Холодильная ул., 13/1 (5000 ... - Фото 2
    БEЗ KOMИССИИ ДЛЯ AРЕНДАТOРA, Предлагаем к аренде складское помещение на 1 этаже - 1100 м. кв., средний этаж - 1800 м. кв., нижний этаж 2000 м. кв., 3-х этажного дома по адресу: метро Заельцовская. Площадь помещения составляет 5000 кв. м. В данный момент...
    • 1/3 эт.
    2 500 000 Р
    Агент
    +7 (913) Показать номер
    Посмотреть контакты
    Склад в Татарстан, Зеленодольск Залесная ул., 15 (3000 м) - Фото 1
    Склад в Татарстан, Зеленодольск Залесная ул., 15 (3000 м) - Фото 2
    ПОКАЗ В УДОБНОЕ ВРЕМЯ. Агентам платим за клиента. Промышленно-складской комплекс расположен в городе Казани. Удобная транспортная доступность. Развитая инфраструктура района.Налоговая: 03. Лифты: Нет. Вентиляция: Естественная. Кондиционирование: Сплит-системы....
    • 1/1 эт.
    2 400 000 Р
    Агент
    +7 (915) Показать номер
    Посмотреть контакты
    Склад в Московская область, Раменский муниципальный округ, Быково пгт ... - Фото 1
    Склад в Московская область, Раменский муниципальный округ, Быково пгт ... - Фото 2
    Номер объекта 64149. Аренда склада в Логопарке Быково 18 км от МКАД. Огороженная охраняемая территория комплекса. Помещения под склад + АБК 70кв.м. Рабочая высота потолков 8 м. Нагрузка на пол 6 тонн /кв.м. Полы - бетон и антипыль. Ворота нулевой...
    • 1/1 эт.
    2 479 167 Р
    Агент
    +7 (985) Показать номер
    Посмотреть контакты
    Склад в Московская область, Старая Купавна Богородский городской ... - Фото 1
    Склад в Московская область, Старая Купавна Богородский городской ... - Фото 2
    Арт.Предлагается в аренду складское помещение 3000кв.м.Высота 8мПол-АнтипыльВорота-6шт.,2 дока,2 пандус, 2 в нольЭл-во-50квтПожарная сигнализацияВсе коммуникацииОхраняемая территория 24/7
    • 1/1 эт.
    2 500 000 Р
    Агент
    +7 (915) Показать номер
    Посмотреть контакты
    Склад в Московская область, Ленинский городской округ, Булатниковское ... - Фото 1
    Склад в Московская область, Ленинский городской округ, Булатниковское ... - Фото 2
    Складское помещение 1 329.5 кв. м в ICPARK Титан от собственника. Объект на стадии активного строительства, готовность ко въезду уточняется по запросу. Направление: Юг. Шоссе: Симферопольское, Трасса М4 Дон. Расстояние от МКАД: 5 км. Характеристики:-...
    • 1/1 эт.
    2 437 029 Р
    Агент
    +7 (915) Показать номер
    Посмотреть контакты

    Не нашли подходящего объявления?

    Оставьте заявку, и наши риэлторы подберут склад в районе Новосибирска

    (0)