38 160 Р 470 $ или 401

Информация об помещении

цоколь
Этаж

Состояние и оснащение

Количество этажей
10
Развернуть
Агент
+7 (913) 712-54-43
Начать чат с агентом

Помещение свободного назначения в Новосибирская область, Новосибирск ...

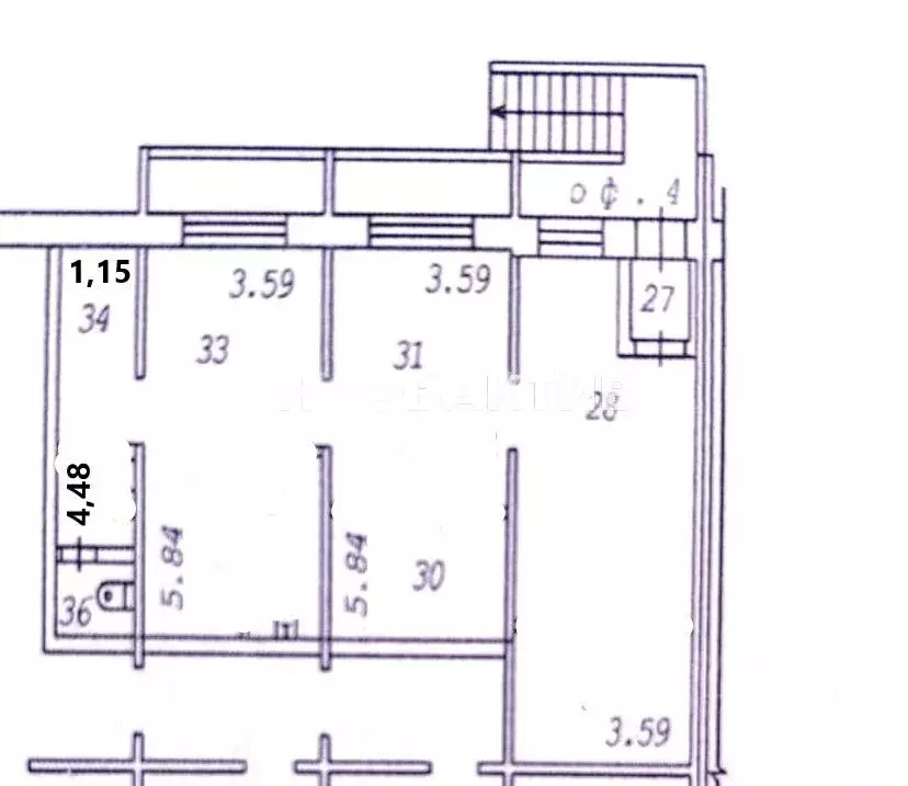
Аренда коммерческого помещения свободного назначения общей площадью 63,6 м, расположеноuj на цокольном этаже жилого дома по улице Кропоткина, дом 261/2 в Заельцовском районе города Новосибирск. Одно из двух (2) помещений общей площадью 184,7 м - 2 (два) помещения свободного назначения площадью 121,1 м и 63,6 м, Планировка помещения включает несколько светлых комнат с четырьмя окнами.Высота потолков 2,7 метра создает комфортное рабочее пространство. Ключевым преимуществом являются два отдельных входа с улицы, что обеспечивает автономность и удобство для клиентов и сотрудников.Для личного транспорта предусмотрена бесплатная уличная парковка на 10 мест, которая всегда имеет свободные парковочные места. В помещении выполнена офисная отделка, предусмотрены два санузла, центральное отопление и электросеть мощностью 3 кВт. Два (2) отдельных круглосуточных входа. Помещение может использовать полностью или быть зонировано.Помещение оборудовано электричеством, центральным водоснабжением и отоплением, полностью готовая инфраструктура.Два (2) санузла.Кондиционер.В помещении возможна перепланировка, любое дооборудование и ремонт любой сложности по желанию нового арендатора.- Площадь: 63,6 м, одно из двух помещений, входящих в общую площадь 184,7 м (121,1 м и 63,6 м), смешанная планировка. . - Электричество: 3 кВт. - Коммуникации: интернет, видео наблюдение, вентиляция, ХВС/ГВС, отопление. - Парковка: бесплатная во дворе.- Тихий двор. - Локация: до метро 5 минут на транспорте или 15 минут пешком. - Арендная ставка: 38 160 /месяц (600 за м).- Обеспечительный платёж: по согласованию.- Коммунальные и капитальные платежи оплачиваются отдельно на основании фактических расходов по квитанциям.- Договор аренды от ИП, Без НДС.- Долгосрочная аренда Данное помещение идеально подойдёт для: - юридические фирмы, финансовые консультанты; - архитектурные бюро, дизайн-студии; - коммерческие представительства;- иные компании и организации. Отличная доступная локация: до ближайших станций метро всего 5 минут на транспорте или 10-15 минут пешком.Остановки наземного транспорта в 5 минутах ходьбы. Объект готов к работе. Звоните, записывайтесь на просмотр арендаофиса Кропоткина коммерческаяаренда офисвозлеметроКоммерческая недвижимость, коммерческий объект. Код пользователя: 190891Номер в базе:

Читать полностью
    Позвонить Написать
    38 160 Р470 $ или 401
    Агент
    +7 (913) 712-54-43
    Начать чат с агентом
    Похожие предложения
    Помещение свободного назначения в Новосибирская область, Новосибирск ... - Фото 1
    Помещение свободного назначения в Новосибирская область, Новосибирск ... - Фото 2
    Сдается помещение свободного назначения.Помещение площадью 88,2кв.м. располагается на первой линии улицы Петухова на -1 этаже. Остановка общественного транспорта ЭЛСИБ в 30 метрах. Большой парковочный карман на 20 машин. Время доступа к торговому комплексу...
    • -1/2 эт.
    37 000 Р
    Агент
    +7 (913) Показать номер
    Посмотреть контакты
    Помещение свободного назначения в Новосибирская область, Новосибирск ... - Фото 1
    Помещение свободного назначения в Новосибирская область, Новосибирск ... - Фото 2
    Сдам в Аренду Площадь свободного назначения 75,5 кв.м.Видео из помещения, предоставляем по запросуПреимущества локации: Хороший трафик и удобная парковка для посетителей Густозаселенный жилой массивПривлекательность объекта: 2 линия, отдельный...
    • -1/17 эт.
    39 000 Р
    Агент
    +7 (913) Показать номер
    Посмотреть контакты
    Помещение свободного назначения в Новосибирская область, Новосибирск ... - Фото 1
    Помещение свободного назначения в Новосибирская область, Новосибирск ... - Фото 2
    Идеальное помещение для Вашего бизнеса Первый этаж с отдельным входом Отличное предложение для тех, кто ценит удобство, доступность и хочет привлечь максимальное количество клиентов.Преимущества: - первый этаж: высокая проходимость и видимость, легко...
    • 1/4 эт.
    37 765 Р
    Агент
    +7 (983) Показать номер
    Посмотреть контакты
    Помещение свободного назначения в Новосибирская область, Новосибирск ... - Фото 1
    Помещение свободного назначения в Новосибирская область, Новосибирск ... - Фото 2
    Поедлагается в аренду помещение свободного назначения в центральной части города. Площадь 23.2 м2. Отдельный вход Первая линия оживленной магистральной улицы.Очень высокий автомобильный трафик. Удобная парковка вдоль здания. Помещение подходит как для...
    • 1/7 эт.
    37 000 Р
    Агент
    +7 (913) Показать номер
    Посмотреть контакты
    Помещение свободного назначения в Новосибирская область, Барабинск ул. ... - Фото 1
    Помещение свободного назначения в Новосибирская область, Барабинск ул. ... - Фото 2
    Арт. 22575 в г. Барабинск, ул. Ленина 119Помещение на трафике Wildberries и OZONЦентральные коммуникацииМощность 20кBтВысота потолков 3,3мПодъезд грузового транспорта, зона разгрузкиПарковка на 10-15 машин.
    • 1/1 эт.
    37 000 Р
    Агент
    +7 (913) Показать номер
    Посмотреть контакты

    Не нашли подходящего объявления?

    Оставьте заявку, и наши риэлторы подберут псн в районе Новосибирска

    (0)