276 480 Р 3 500 $ или 3 050

Информация об помещении

3
Этаж

Состояние и оснащение

Количество этажей
3
Развернуть
Агент
+7 (913) 726-99-79
Начать чат с агентом

Помещение свободного назначения в Новосибирская область, Новосибирск ...

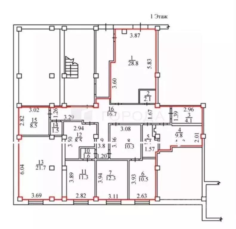
К аренде предлагается ЛОФТ 153,6 кв.м на Красном проспекте г. Новосибирска, под школу танцев, фитнес клуб, студию балета, йогу и т.п..Помещение на верхнем этаже 3-х этажного, современного Бизнес Центра, в близи главной магистрали города Новосибирска, Красны проспект (ул. Коммунистическая, 48). Современный качественный ремонт в стиле ЛОФТ. Два зала 47,2 кв.м и 46,6 кв.м оснащены большим количеством зеркал и балетным станком. Очень светлые, за счет большого количества окон. Кондиционирование. Также имеются женская, мужская раздевалка (тренерская), зона ресепшен для администратора и сан/узлы. При желании можно организовать душевые. Имеются ячейки для хранения личных вещей.Отличная транспортная доступность: от метро Пл. Ленина 700 метров, до остановок транспорта Кинотеатр Маяковского 100 метров.К аренде предлагается 3й этаж.Общая площадь помещения: 153,6 кв.м Этаж: 3Высота потолка: 3 мПланировка: свободная. Большое количество окон.Все коммуникации центральные. Есть горячая вода. Кондиционирование.Арендная плата:/кв.м в месяц, коммунальные платежи включены в стоимость.Отдельно оплачивается электроэнергия.Предусмотрен обеспечительный платеж 1 месяц.Есть возможность отказаться от части вспомогательных помещений для снижения арендной платы.Звоните, отвечу на любые вопросы

Читать полностью
    Позвонить Написать
    276 480 Р3 500 $ или 3 050
    Агент
    +7 (913) 726-99-79
    Начать чат с агентом
    Похожие предложения
    Помещение свободного назначения (141.3 м) - Фото 1
    Помещение свободного назначения (141.3 м) - Фото 2
    Аренда коммерческого помещения 141,3 м на 1 этаже- Дом сдан- Первая линия ул. Большевистская- Большая проходимость, рядом остановка общественного транспорта- С торца здания расположен променад для жителей и гостей ЖК «Европейский берег - В пешей доступности...
    • 1/24 эт.
    282 600 Р
    Агент
    +7 (988) Показать номер
    Посмотреть контакты
    Помещение свободного назначения в Новосибирская область, Новосибирск ... - Фото 1
    Помещение свободного назначения в Новосибирская область, Новосибирск ... - Фото 2
    Код объекта: 1926261.Предлагается в аренду помещение медицинской клиники, ремонт выполнен в соответствии с требованиями санитарно-эпидемиологического надзора, Минздрава. Имеется лицензия . Имеется оборудование можно обсуждать индивидуально -отдельный...
    • 1/18 эт.
    280 000 Р
    Агент
    +7 (983) Показать номер
    Посмотреть контакты
    Помещение свободного назначения в Новосибирская область, Новосибирск ... - Фото 1
    Помещение свободного назначения в Новосибирская область, Новосибирск ... - Фото 2
    Сдам в аренду помещение на длительный срок в центре Левобережья г.Новосибирска (цокольный этаж; два отдельных входа: с ул. Покрышкина и со двора).Помещение кабинетной системы с мокрыми точками. Это позволяет новому арендатору открыть здесь не только ...
    • 1/7 эт.
    285 400 Р
    Агент
    +7 (913) Показать номер
    Посмотреть контакты
    Помещение свободного назначения в Новосибирская область, Новосибирск ... - Фото 1
    Помещение свободного назначения в Новосибирская область, Новосибирск ... - Фото 2
    Сбер А предлагает к аренде нежилое помещение площадью 160,9 кв.м., расположенного по адресу: Новосибирская область, г. Новосибирск, ул. Ленина, д. 59Аренда посредством проведения торгов на электронной площадке Сбербанк-АСТ.Номер процедуры: SBRСобственник:...
    • 1/1 эт.
    282 862 Р
    Агент
    +7 (985) Показать номер
    Посмотреть контакты
    Помещение свободного назначения в Новосибирская область, Новосибирск ... - Фото 1
    Помещение свободного назначения в Новосибирская область, Новосибирск ... - Фото 2
    Код объекта: 1811364.Помещение находится на первом этаже десятиэтажного панельного здания и имеет отдельный вход. Доступ в помещение свободный, что обеспечивает удобство для клиентов и сотрудников.Общая площадь составляет 241,3 кв. м, что позволяет организовать...
    • 1/10 эт.
    289 560 Р
    Агент
    +7 (983) Показать номер
    Посмотреть контакты

    Не нашли подходящего объявления?

    Оставьте заявку, и наши риэлторы подберут псн в районе Новосибирска

    (0)