Реализация объекта недвижимости приостановлена

Информация о помещении и здании

цоколь
Этаж
25
Этажность
Развернуть

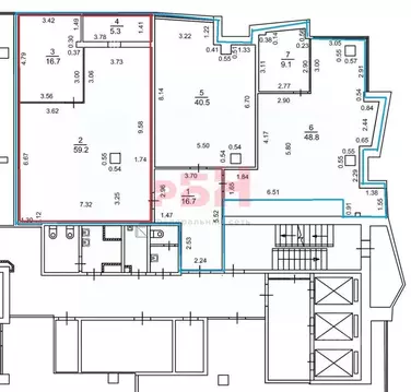
Офис в Новосибирская область, Новосибирск ул. Шевченко, 11 (409 м)

Потенциальным арендаторам предлагается помещение свободного назначения, находящееся в цокольном этаже жилого дома. Два входа, эргономичная планировка, ремонт не требующий вложений, пять мокрых точек и комната приема пищи для сотрудников. Подойдет для размещения фронт офиса Вашей компании, гостиницы или хостела. Круглосуточный доступ, бесплатная парковка, мощная система вентиляции.

Читать полностью

    Реализация объекта недвижимости приостановлена

    Не нашли подходящего объявления?

    Оставьте заявку, и наши риэлторы подберут офис в районе Новосибирска

    (0)