Будьте осторожны при перечислении предоплаты!
Для вашей безопасности предварительно рекомендуем запрашивать документы на объект недвижимости и подтверждение заключения сделки.

22 000 Р

Информация о квартире

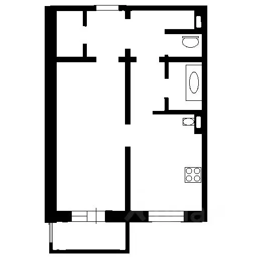
46 м2
Площадь
25 м2
Жилая
16 м2
Кухня
2
Комнаты
7
Этаж
12
Этажность

Дополнительная информация

Тип дома
монолит
Развернуть
Агент
+7 (983) 123-61-86
Начать чат с агентом

2-к кв. Новосибирская область, Новосибирск Узловая ул., 8/1 (46.0 м)

Код объекта: 1890472. Срочно сдаётся двухкомнатная квартира в Новосибирске на Узловой улице, 8/1. Это идеальное жильё для тех, кто ценит комфорт и удобство.Квартира расположена на 7 этаже современного 12-этажного дома, построенного в 2017 году. Материал постройки — монолитный, что гарантирует надёжность и долговечность. В доме установлена наземная парковка, где всегда найдётся место для вашего автомобиля.Общая площадь квартиры составляет 46 кв. м, жилая — 37 кв. м, площадь кухни — 16 кв. м. Евроремонт создаёт атмосферу уюта и стиля. Изолированные комнаты обеспечивают комфорт и уединение. Окна выходят на улицу, а лоджия позволяет наслаждаться видами и свежим воздухом.Квартира идеально подойдёт для молодых специалистов или пары без детей, которые ценят современный ремонт и удобное расположение. Здесь вы найдёте всё необходимое для комфортной жизни.Мы гарантируем безопасную сделку и юридическую поддержку нашим Клиентам. Не упустите возможность стать арендатором этой прекрасной квартиры — свяжитесь с нами уже сегодня

Читать полностью

    Для того, чтобы снять двухкомнатную квартиру по адресу: Новосибирск, м. Золотая Нива, ул. Узловая, 8/1, позвоните по телефону +7 (983) 123-61-86. Торопитесь! Объявление №30091513708 об аренде двухкомнатной квартиры опубликовано 03 ноября 2025.

    Позвонить Написать
    22 000 Р
    Агент
    +7 (983) 123-61-86
    Начать чат с агентом
    Похожие предложения
    1-к кв. Новосибирская область, Новосибирск ул. Бориса Богаткова, 175 ... - Фото 1
    1-к кв. Новосибирская область, Новосибирск ул. Бориса Богаткова, 175 ... - Фото 2
    1-комнатная квартира, общая площадь 33м², жилая 18м², кухня 7м²

    ост.м.Золотая Нива.Агентство.Реальный Вариант.Мебель Есть.Стиральная машинка Автомат.Балкон Застеклён. Обои.Покраска.Отдельно оплачивать Свет и Воду по Счётчикам.
    • 33 м²
    • 1-ком
    • 2/9 эт.
    • 50%
    23 000 Р
    Агент
    +7 (913) Показать номер
    Посмотреть контакты
    Студия Новосибирская область, Новосибирск ул. Татьяны Снежиной, 43 ... - Фото 1
    Студия Новосибирская область, Новосибирск ул. Татьяны Снежиной, 43 ... - Фото 2
    студия, общая площадь 34м², жилая 17м², кухня 10м²

    Сдается квартира на длительный срок, есть все необходимое для комфортного проживания Рядом остановка, торговый центр панорама, лента. аптеки.Арт.
    • 34 м²
    • студия-ком
    • 10/10 эт.
    • 25%
    23 000 Р
    Агент
    +7 (983) Показать номер
    Посмотреть контакты
    1-к кв. Новосибирская область, Новосибирск ул. Виталия Потылицына, 9/4 ... - Фото 1
    1-к кв. Новосибирская область, Новосибирск ул. Виталия Потылицына, 9/4 ... - Фото 2
    1-комнатная квартира, общая площадь 42м², жилая 16м², кухня 14м²

    Состояние квартиры очень среднее депозит 10 тр. -----Примечание: у собственника могут быть дополнительные пожелания к жильцам - обсудите их в чате или по телефону
    • 42 м²
    • 1-ком
    • 9/12 эт.
    • панельный
    22 000 Р
    Агент
    +7 (916) Показать номер
    Посмотреть контакты
    1-к кв. Новосибирская область, Новосибирск ул. Плющихинская, 2 (48.0 ... - Фото 1
    1-к кв. Новосибирская область, Новосибирск ул. Плющихинская, 2 (48.0 ... - Фото 2
    1-комнатная квартира, общая площадь 48м², жилая 20м², кухня 14м²

    Квартира сдается на длительный период.
    • 48 м²
    • 1-ком
    • 4/10 эт.
    23 000 Р
    Агент
    +7 (916) Показать номер
    Посмотреть контакты
    1-к кв. Новосибирская область, Новосибирск ул. Татьяны Снежиной, 25/2 ... - Фото 1
    1-к кв. Новосибирская область, Новосибирск ул. Татьяны Снежиной, 25/2 ... - Фото 2
    1-комнатная квартира, общая площадь 42м², жилая 17м², кухня 12м²

    Сдаётся полноценная 1комнатная квартира на МЖК (Октябрьский р-он).Из техники есть холодильник, стиральная машинка, настольная эл/плита (1 комфорка), из мебели - 2 створчатый шкаф, стол со стульями, кухонная зона.Аренда -. + счетчикиЗалог -.Комиссия АН...
    • 42 м²
    • 1-ком
    • 7/10 эт.
    • 50%
    23 000 Р
    Агент
    +7 (983) Показать номер
    Посмотреть контакты

    Не нашли подходящего объявления?

    Оставьте заявку, и наши риэлторы подберут квартиру в районе Новосибирска

    (0)