Реализация объекта недвижимости приостановлена

Информация об помещении

1
Этаж

Состояние и оснащение

Количество этажей
1
Развернуть

Торговая площадь в Новосибирская область, Новосибирск Красный просп., ...

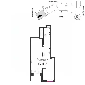
Дом на сдаче. Ключи в 4 квартала 2025 года.Удобное помещение: отдельный вход, 2 окна, своя мокрая точка, отсутствие несущих колон.Динамично развивающийся район, хороший трафик.

Читать полностью

    Реализация объекта недвижимости приостановлена

    Не нашли подходящего объявления?

    Оставьте заявку, и наши риэлторы подберут торговое помещение в районе Новосибирска

    (0)