Реализация объекта недвижимости приостановлена

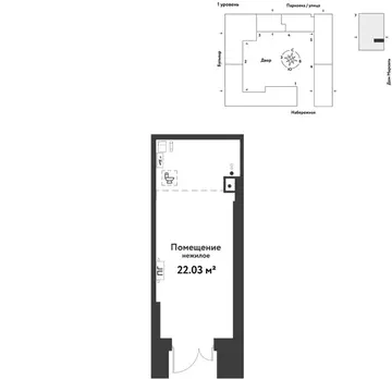
Информация об помещении

1
Этаж

Состояние и оснащение

Количество этажей
16
Развернуть

Торговая площадь в Новосибирская область, Новосибирск Горский мкр, 10 ...

В продаже коммерческое помещение площадью 51,8 м.кв на первом этаже жилого дома.Отдельный вход со двора. Санузел, кондиционер.Звоните договоримся о просмотре

Читать полностью

    Реализация объекта недвижимости приостановлена

    Не нашли подходящего объявления?

    Оставьте заявку, и наши риэлторы подберут торговое помещение в районе Новосибирска

    (0)