19 500 000 Р 251 700 $ или 217 000

Информация об помещении

1
Этаж

Состояние и оснащение

Количество этажей
17
Развернуть
Агент
+7 (913) 474-24-81
Начать чат с агентом

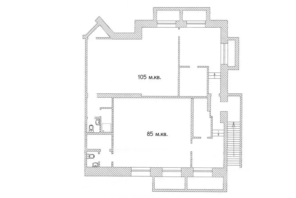
Помещение свободного назначения (77.57 м)

Помещение свободного назначения на 1 этаже, общая площадь 77.57 кв.м., без отделки. Стоимость помещения 19,500,, цена за кв.м 251, СРОК СДАЧИ - 3 КВАРТАЛ 2024 Продается коммерческое помещение в Квартале «Мылзавод 1,2 тыс. человекПерспективное количество жителей первой очереди 12 тыс. человекКоличество жителей в радиусе пешеходной доступности 3,3 ГаПлощадь застройки 43 тыс. мПлощадь жилья в первой очереди Квартал «Мылзавод состоит из двух 9-этажных урбан-вилл, четырех 17-этажных и трех 30-этажных башен, объединенных стилобатом. проект расположен в центре города в границах улиц Некрасова, Каменская, Писарева и Семьи Шамшиных.Зона ритейла занимает два этажа стилобата. В отличие от других проектов компании, ее активный фронт (вывески, витрины, летние террасы) обращен не на улицу, а внутрь застройки. Здесь Брусника организует общественное пространство с площадью, фонтаном и пешеходной аллеей. Оно будет доступно всем жителям города.Проектом предусмотрены офисные и коммерческие помещения от 21 до 498 кв. метров. Они подойдут для кофейни, ресторана, цветочного магазина, продуктового супермаркета или небольшой пекарни. Технические параметры:Цементно-песчаная стяжка пола и выровненные оштукатуренные стеныВысота первого этажа 3,3 метра, второго - 3 метраПредусмотрено место для вывескиВитражное остеклениеИнженерные коммуникации: водоотведение, канализация, электричество. (AQID

Читать полностью
    Позвонить Написать
    19 500 000 Р251 700 $ или 217 000
    Агент
    +7 (913) 474-24-81
    Начать чат с агентом
    Похожие предложения
    Помещение свободного назначения (77.57 м) - Фото 1
    Помещение свободного назначения (77.57 м) - Фото 2
    Помещение свободного назначения на 1 этаже, общая площадь 77.57 кв.м., без отделки. Стоимость помещения 19,500,, цена за кв.м 251, СРОК СДАЧИ - 3 КВАРТАЛ 2024 Продается коммерческое помещение в Квартале «Мылзавод 1,2 тыс. человекПерспективное количество...
    • 1/17 эт.
    19 500 000 Р
    Агент
    +7 (913) Показать номер
    Посмотреть контакты
    Помещение свободного назначения в Новосибирская область, Новосибирск ... - Фото 1
    Помещение свободного назначения в Новосибирская область, Новосибирск ... - Фото 2
    Продам помещение с готовым бизнесом фитнес центр/студия танцаАгентам: комиссию не платим, эксклюзив не предоставляем.Недвижимость продается с дизайнерским ремонтом и мебельюВ собственности с 2019 года, обременений нет, собственник физическое лицо.Возможна...
    • -1/6 эт.
    19 000 000 Р
    Агент
    +7 (913) Показать номер
    Посмотреть контакты
    Помещение свободного назначения в Новосибирская область, Новосибирск ... - Фото 1
    Помещение свободного назначения в Новосибирская область, Новосибирск ... - Фото 2
    К продаже предлагается помещение 82,35 кв.м , в новом квартале у реки города Новосибирска.Помещение на первом этаже с отдельным входом в квартале Новой Жизни Горская Лагуна , на Левом берегу Новосибирска (ул. Горская, 2/1 стр.). Отличная транспортная...
    • 1/30 эт.
    20 500 000 Р
    Агент
    +7 (913) Показать номер
    Посмотреть контакты
    Помещение свободного назначения в Новосибирская область, Новосибирск ... - Фото 1
    Помещение свободного назначения в Новосибирская область, Новосибирск ... - Фото 2
    Помещение свободного назначения общей площадью 174 м -часть площадей 50 м занимает OZON -вторая часть 120 м2 без арендатора Предварительная окупаемость 8,5 лет-Два отдельных входа, обеспечивающие независимый доступ к разным зонам и позволяющие легко...
    • 1/12 эт.
    19 900 000 Р
    Агент
    +7 (983) Показать номер
    Посмотреть контакты
    Помещение свободного назначения в Новосибирская область, Новосибирск ... - Фото 1
    Помещение свободного назначения в Новосибирская область, Новосибирск ... - Фото 2
    Арт.Ищете идеальное помещение для вашего ресторана, офиса или склада? У нас есть именно то, что вам нужно Преимущества:Комфортный климат круглый год — благодаря отличной вентиляции с приточкой и вытяжкой, зимой здесь тепло, а летом не жарко Подходит...
    • -1/1 эт.
    19 999 999 Р
    Агент
    +7 (913) Показать номер
    Посмотреть контакты

    Не нашли подходящего объявления?

    Оставьте заявку, и наши риэлторы подберут псн в районе Новосибирска

    (0)