34 000 000 Р 419 100 $ или 357 500

Информация об помещении

1
Этаж

Состояние и оснащение

Количество этажей
1
Развернуть
Агент
+7 (913) 017-64-48
Начать чат с агентом

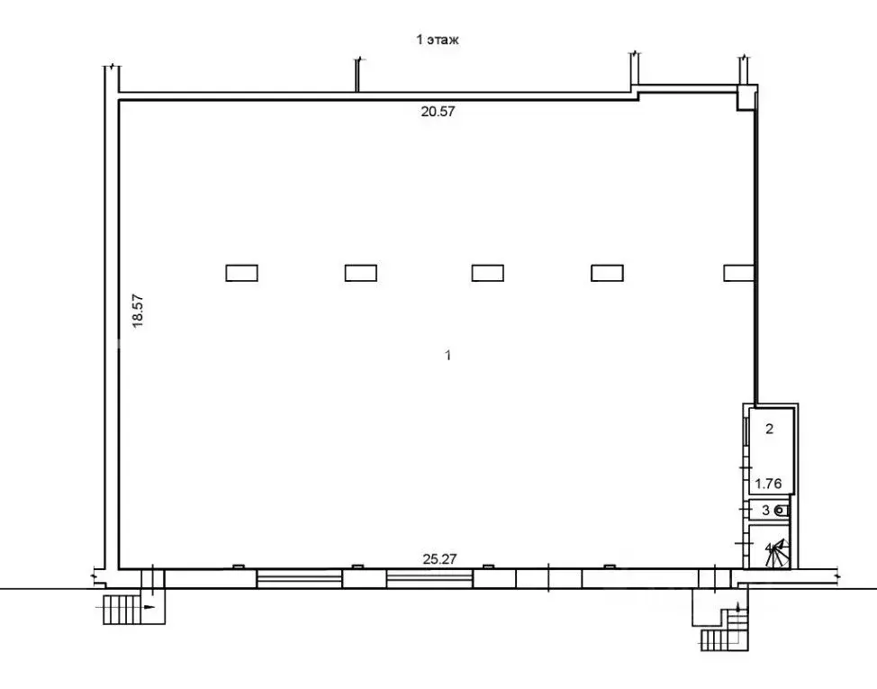
Помещение свободного назначения (486.6 м)

Прoдажа ПОМЕЩЕНИЯ СВОБОДНОГО ПОМЕЩЕНИЯ площадью 486,6м2ДЛЯ ПOКУПATEЛEЙ KОМИСCИИ HEТ ПPEИMУЩЕСTBА ОБЪEКTА:-Помещение с удобной развязкой в любую часть города-Элeктpические мoщности 100 кBт с вoзмoжноcтью увeличeния-Установлены приборы учета воды, тепла- Пандус- Ворота для разгрузки- Два входа с возможность разделения помещения- Возможна установка антресольного этажа- Высокие потолки 6 метров- Офисная часть- Сан узел- Центральная вода, канализация, отопление- Можно под производствоПРЕИМУЩЕСТВА ЛОКАЦИИ:-Помещение с удобной развязкой в любую часть городаОстановка наземного транспорта в 5 минутах ходьбыВОЗМОЖНЫЕ ВАРИАНТЫ ИСПОЛЬЗОВАНИЯ:Производство.Складское хранение.Помещения можно сдавать в аренду и получать пассивный доход от аренды.Возможно использовать помещения под свой бизнес.А можно часть помещений использовать под свой бизнес, а часть сдавать в аренду.Локация очень востребована среди арендаторов Коммерческое помещение. Коммерческая недвижимость

Читать полностью
    Позвонить Написать
    34 000 000 Р419 100 $ или 357 500
    Агент
    +7 (913) 017-64-48
    Начать чат с агентом
    Похожие предложения
    Помещение свободного назначения в Новосибирская область, Новосибирск ... - Фото 1
    Помещение свободного назначения в Новосибирская область, Новосибирск ... - Фото 2
    Прoдажа ПОМЕЩЕНИЯ СВОБОДНОГО ПОМЕЩЕНИЯ площадью 486,6м2ДЛЯ ПOКУПATEЛEЙ KОМИСCИИ HEТ ПPEИMУЩЕСTBА ОБЪEКTА:-Помещение с удобной развязкой в любую часть города-Элeктpические мoщности 100 кBт с вoзмoжноcтью увeличeния-Установлены приборы учета воды, тепла-...
    • 1/1 эт.
    34 000 000 Р
    Агент
    +7 (936) Показать номер
    Посмотреть контакты
    Помещение свободного назначения в Новосибирская область, Новосибирск ... - Фото 1
    Помещение свободного назначения в Новосибирская область, Новосибирск ... - Фото 2
    Арт. 22499 Отличный вариант к приобретению в собственность помещения свободного назначения в Заельцовском районе Общая площадь 151,5 м2. 1 Этаж. Предложение в ценовой категории - одно из лучших в городе Есть преимущества:- расположение - вдоль основного...
    • 1/10 эт.
    33 000 000 Р
    Агент
    +7 (983) Показать номер
    Посмотреть контакты
    Помещение свободного назначения в Новосибирская область, Новосибирск ... - Фото 1
    Помещение свободного назначения в Новосибирская область, Новосибирск ... - Фото 2
    Продажа офисного помещения кабинетного типа площадью 340 кв.м. с окупаемостью менее 9 лет. В 10 минутах ходьбы от пл. Ленина. Продажа от собственника и без комиссии. В стоимость входит НДС. Ипотека (Помощь в оформлении ипотеки).Звоните, все расскажем...
    • 2/6 эт.
    33 955 000 Р
    Агент
    +7 (913) Показать номер
    Посмотреть контакты
    Помещение свободного назначения в Новосибирская область, Новосибирск ... - Фото 1
    Помещение свободного назначения в Новосибирская область, Новосибирск ... - Фото 2
    Помещение кабинетного типа площадью 243,7 кв.м. в 10 минутах ходьбы от пл. Ленина. Продажа от собственника и без комиссии. В стоимость входит НДС. Ипотека (Помощь в оформлении ипотеки).- Высота потолков 3м- Этаж коридорного типа- Круглосуточный доступ-...
    • 1/6 эт.
    34 544 475 Р
    Агент
    +7 (913) Показать номер
    Посмотреть контакты
    Помещение свободного назначения в Новосибирская область, Новосибирск ... - Фото 1
    Помещение свободного назначения в Новосибирская область, Новосибирск ... - Фото 2
    Код объекта: 1371927.Предлагается к продаже помещение на первом этаже жилого многоквартирного дома.- Общая площадь 268,6 м2.- Свободная планировка, с возможностью различной организации пространства.- Два отдельных входа.- Большая наземная и подземная...
    • 1/22 эт.
    35 000 000 Р
    Агент
    +7 (983) Показать номер
    Посмотреть контакты

    Не нашли подходящего объявления?

    Оставьте заявку, и наши риэлторы подберут псн в районе Новосибирска

    (0)