Реализация объекта недвижимости приостановлена

Информация о помещении и здании

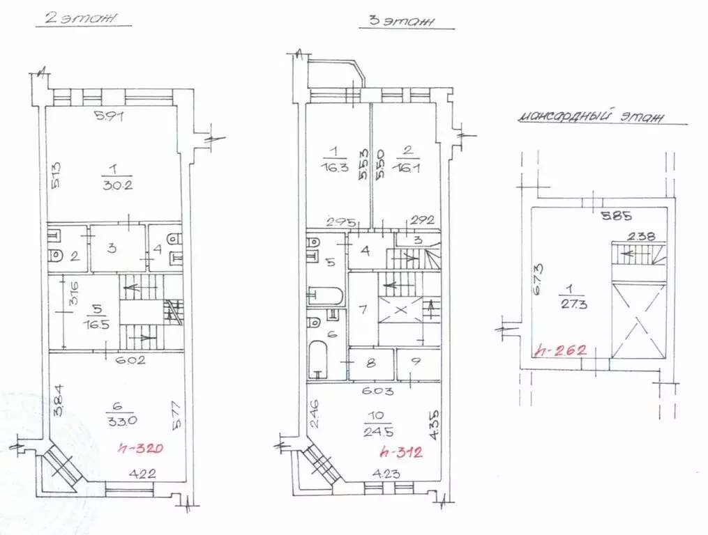
1
Этаж
4
Этажность
Развернуть

Офис (400 м)

Продается объект коммерческой недвижимости на улице Инская 67Предлагаем вашему вниманию уникальный объект площадью 400 кв.м., расположенный в сердце города на улице Инская 67. Этот объект находится на второй линии крупной транспортной магистрали, что обеспечивает отличную видимость и доступность для клиентов и сотрудников.Основные характеристики:Площадь: 400 кв.м.Этажность: 4 этажа, разделенных на кабинетыИспользование: Оформлен как жилой, но на протяжении многих лет использовался под офис, что позволяет значительно сократить расходы на обслуживание, интернет и коммунальные платежи (примерно ваз по сравнению с аналогичными объектами).Парковка: Собственная закрытая парковка для удобства ваших сотрудников и клиентов.Входы: Два отдельных входа, обеспечивающие легкий доступ.Комфорт: На каждом этаже установлен кондиционер и собственный санузел, что создает комфортные условия для работы.Безопасность: Система видеонаблюдения для обеспечения безопасности объекта.Удобное расположение:Транспортная доступность: В 400 метрах от станции метро «Речной вокзал и 800 метрах от станции «Октябрьская , что обеспечивает легкий доступ к общественному транспорту.Близость к центру: Всего в 5 минутах езды от центра города, что делает объект привлекательным для бизнеса.Финансовые возможности:Чистый месячный арендный платеж составляет от, что делает этот объект отличным вариантом для инвестиций или ведения бизнеса.Этот объект представляет собой уникальную возможность для тех, кто ищет выгодное вложение в коммерческую недвижимость с возможностью получения стабильного дохода. Не упустите шанс стать владельцем этого привлекательного предложения Для получения дополнительной информации и организации просмотра, пожалуйста, свяжитесь с нами.Номер объекта: 5/703598/51

Читать полностью

    Реализация объекта недвижимости приостановлена

    Не нашли подходящего объявления?

    Оставьте заявку, и наши риэлторы подберут офис в районе Новосибирска

    (0)