4 990 000 Р 63 790 $ или 54 940

Информация о квартире

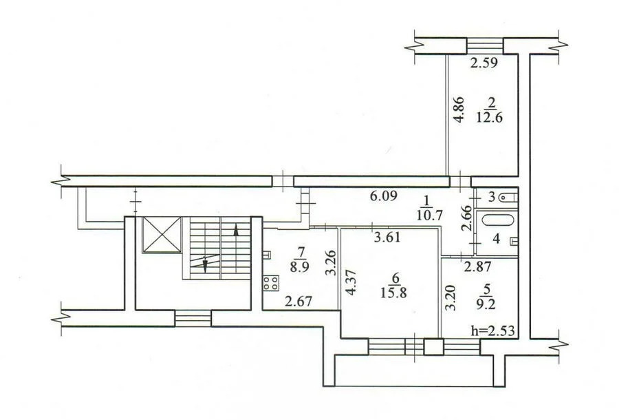
61.2 м2
Площадь
38 м2
Жилая
9 м2
Кухня
3
Комнаты
8
Этаж
9
Этажность
38 м2
Площадь комнат

Состояние и оснащение

Тип санузла
раздельный

Дополнительная информация

Тип дома
кирпичный
Тип комнат
раздельные
Тип продажи
альтернатива
Собственников
1
Развернуть
Агент
Светлана Сергеевна Кузнецова
+7 (964) 096-45-30
Начать чат с агентом

Продажа квартиры, Новосибирск, ул. Колхидская

Продается большая светлая полноценная 3 комнатная квартира с отличной планировкой.

3 изолированные комнаты, просторная кухня, 9 кв м, вместительная прихожая.

Большая лоджия, 7,5 кв.м. Лоджия застеклена.

Квартира аккуратная, чистая, можно заезжать и жить.

Санузел раздельный.

В АРЕНДУ НЕ СДАВАЛАСЬ.

Окна выходят на две стороны, на тихую улицу и во двор.

Дом комфорт класса, кирпичный, не газифицирован. Всего 4 подъезда. На площадке 4 квартиры. Лифт, Квартира от лифта удалена, имеет свой вход, не в отсечке.

Ухоженная придомовая территория, детские площадки, зоны отдыха. Много парковочных мест.

УНИКАЛЬНЫМ ПРЕИМУЩЕСТВОМ является местоположение дома:

Дом удобно расположен, в центре микрорайона. Таким образом, рядом, в пешей доступности школа № 191, детские сады, 184,112,472. Группа раннего развития «Лапушка», студия «Дошкольник», вокальные, танцевальные, цирковые, театральные студии и коллективы, рукоделие – все это в 5-7 минутах ходьбы, во дворце культуры «Сибтекстильмаш», спортивный центр «Заря», бассейн, детский футбольный клуб «Форсаж» и многое другое.
Рядом с домом небольшие продовольственные и промтоварные магазины, и сети супермаркетов: Лента, Ярче, Мария Ра, аптеки, отделения банков, мед центры, фитнес, салоны красоты.

Дом выгодно удален от проезжей части, что защищает от шума и пыли, и в то же время до остановок общественного транспорта пешком 3 минуты, автобусы, маршрутки, легко можно уехать в любую точку города.

Любая форма расчета.

При покупке возможно использование материнского капитала.

Помощь в получении ипотеки.

За подробной информацией приглашаем обращаться по телефону.

Читать полностью

    Для того, чтобы купить трехкомнатную квартиру по адресу: Новосибирск, Ленинский, ул. Колхидская, 7, позвоните по телефону +7 (964) 096-45-30. Торопитесь! Объявление №345514870 о продаже трехкомнатной квартиры опубликовано Сегодня.

    Позвонить Написать
    4 990 000 Р63 790 $ или 54 940
    Агент
    Светлана Сергеевна Кузнецова
    +7 (964) 096-45-30
    Начать чат с агентом
    Похожие предложения
    Продажа квартиры, Новосибирск, ул. Колхидская - Фото 1
    Продажа квартиры, Новосибирск, ул. Колхидская - Фото 2
    Продажа квартиры, Новосибирск, ул. Колхидская - Фото 3
    Продажа квартиры, Новосибирск, ул. Колхидская - Фото 4
    Продажа квартиры, Новосибирск, ул. Колхидская - Фото 5
    Продажа квартиры, Новосибирск, ул. Колхидская - Фото 6
    Продажа квартиры, Новосибирск, ул. Колхидская - Фото 7
    Продажа квартиры, Новосибирск, ул. Колхидская - Фото 8
    Продажа квартиры, Новосибирск, ул. Колхидская - Фото 9
    Продажа квартиры, Новосибирск, ул. Колхидская - Фото 10
    2-комнатная квартира, общая площадь 48.3м², жилая 30м², кухня 8.7м²

    2 комн. квартира по ул. Колхидская. Общей площадью: 48.30 кв.м. Один СОБСТВЕННИК, без обременений, без занижений, быстрый выход на сделку ! ПРОДАЕТСЯ уютная, светлая ДВУХКОМНАТНАЯ квартира, улучшенной планировки в КИРПИЧНОМ доме по адресу город Новосибирск...
    • 48.3 м²
    • 2-ком
    • 8/10 эт.
    • кирпичный
    4 950 000 Р
    Агент
    +7 (960) Показать номер
    Посмотреть контакты
    Продажа квартиры, Новосибирск, Романтиков - Фото 1
    Продажа квартиры, Новосибирск, Романтиков - Фото 2
    Продажа квартиры, Новосибирск, Романтиков - Фото 3
    Продажа квартиры, Новосибирск, Романтиков - Фото 4
    Продажа квартиры, Новосибирск, Романтиков - Фото 5
    Продажа квартиры, Новосибирск, Романтиков - Фото 6
    Продажа квартиры, Новосибирск, Романтиков - Фото 7
    Продажа квартиры, Новосибирск, Романтиков - Фото 8
    Продажа квартиры, Новосибирск, Романтиков - Фото 9
    Продажа квартиры, Новосибирск, Романтиков - Фото 10
    Продажа квартиры, Новосибирск, Романтиков - Фото 11
    Продажа квартиры, Новосибирск, Романтиков - Фото 12
    1-комнатная квартира, общая площадь 35.1м², жилая 16м², кухня 9м²

    1 комн. квартира по ул. Романтиков. Общей площадью: 35.10 кв.м. Полноценная 1-комнатная квартира! Дом новый,2020 года постройки! Качественный ремонт с учетом современных требований эргономики! Заходи и живи! В квартире остается практически все!...
    • 35.1 м²
    • 1-ком
    • 4/9 эт.
    • кирпичный
    4 999 000 Р
    Агент
    +7 (960) Показать номер
    Посмотреть контакты
    Продажа квартиры, Новосибирск, Рельефная - Фото 1
    Продажа квартиры, Новосибирск, Рельефная - Фото 2
    Продажа квартиры, Новосибирск, Рельефная - Фото 3
    Продажа квартиры, Новосибирск, Рельефная - Фото 4
    Продажа квартиры, Новосибирск, Рельефная - Фото 5
    Продажа квартиры, Новосибирск, Рельефная - Фото 6
    Продажа квартиры, Новосибирск, Рельефная - Фото 7
    Продажа квартиры, Новосибирск, Рельефная - Фото 8
    Продажа квартиры, Новосибирск, Рельефная - Фото 9
    Продажа квартиры, Новосибирск, Рельефная - Фото 10
    Продажа квартиры, Новосибирск, Рельефная - Фото 11
    Продажа квартиры, Новосибирск, Рельефная - Фото 12
    Продажа квартиры, Новосибирск, Рельефная - Фото 13
    Продажа квартиры, Новосибирск, Рельефная - Фото 14
    Продажа квартиры, Новосибирск, Рельефная - Фото 15
    Продажа квартиры, Новосибирск, Рельефная - Фото 16
    Продажа квартиры, Новосибирск, Рельефная - Фото 17
    Продажа квартиры, Новосибирск, Рельефная - Фото 18
    Продажа квартиры, Новосибирск, Рельефная - Фото 19
    Продажа квартиры, Новосибирск, Рельефная - Фото 20
    1-комнатная квартира, общая площадь 42.8м², жилая 17.8м², кухня 12.6м²

    1 комн. квартира по ул. Рельефная. Общей площадью: 42.80 кв.м. Просторная 1-к. квартира 42.8 м2 ( + лоджия 4 м2) в новом жилом комплексе Новый горизонт. Дом сдан! Новый горизонт- это семейный жилой комплекс комфорт класса, расположен в экологически...
    • 42.8 м²
    • 1-ком
    • 3/17 эт.
    • панельный
    4 900 000 Р
    Агент
    +7 (960) Показать номер
    Посмотреть контакты
    Продажа квартиры, Новосибирск, ул. Титова - Фото 1
    Продажа квартиры, Новосибирск, ул. Титова - Фото 2
    Продажа квартиры, Новосибирск, ул. Титова - Фото 3
    Продажа квартиры, Новосибирск, ул. Титова - Фото 4
    Продажа квартиры, Новосибирск, ул. Титова - Фото 5
    Продажа квартиры, Новосибирск, ул. Титова - Фото 6
    Продажа квартиры, Новосибирск, ул. Титова - Фото 7
    Продажа квартиры, Новосибирск, ул. Титова - Фото 8
    Продажа квартиры, Новосибирск, ул. Титова - Фото 9
    Продажа квартиры, Новосибирск, ул. Титова - Фото 10
    Продажа квартиры, Новосибирск, ул. Титова - Фото 11
    Продажа квартиры, Новосибирск, ул. Титова - Фото 12
    Продажа квартиры, Новосибирск, ул. Титова - Фото 13
    Продажа квартиры, Новосибирск, ул. Титова - Фото 14
    Продажа квартиры, Новосибирск, ул. Титова - Фото 15
    Продажа квартиры, Новосибирск, ул. Титова - Фото 16
    Продажа квартиры, Новосибирск, ул. Титова - Фото 17
    Продажа квартиры, Новосибирск, ул. Титова - Фото 18
    Продажа квартиры, Новосибирск, ул. Титова - Фото 19
    Продажа квартиры, Новосибирск, ул. Титова - Фото 20
    2-комнатная квартира, общая площадь 46.4м², жилая 28.4м², кухня 5м²

    2 комн. квартира по ул. Титова. Общей площадью: 46.40 кв.м. В Н И М А Н И Е!! В продажу выставлена отличная квартира по привлекательной цене. Обратите внимание на параметры: - площадь квартиры с лоджией составляет 50,0 м. кв. - долей детей нет,...
    • 46.4 м²
    • 2-ком
    • 4/17 эт.
    • панельный
    5 000 000 Р
    Агент
    +7 (960) Показать номер
    Посмотреть контакты
    Продажа квартиры, Новосибирск, ул. Титова - Фото 1
    Продажа квартиры, Новосибирск, ул. Титова - Фото 2
    Продажа квартиры, Новосибирск, ул. Титова - Фото 3
    Продажа квартиры, Новосибирск, ул. Титова - Фото 4
    Продажа квартиры, Новосибирск, ул. Титова - Фото 5
    Продажа квартиры, Новосибирск, ул. Титова - Фото 6
    Продажа квартиры, Новосибирск, ул. Титова - Фото 7
    Продажа квартиры, Новосибирск, ул. Титова - Фото 8
    Продажа квартиры, Новосибирск, ул. Титова - Фото 9
    Продажа квартиры, Новосибирск, ул. Титова - Фото 10
    Продажа квартиры, Новосибирск, ул. Титова - Фото 11
    Продажа квартиры, Новосибирск, ул. Титова - Фото 12
    Продажа квартиры, Новосибирск, ул. Титова - Фото 13
    Продажа квартиры, Новосибирск, ул. Титова - Фото 14
    Продажа квартиры, Новосибирск, ул. Титова - Фото 15
    Продажа квартиры, Новосибирск, ул. Титова - Фото 16
    Продажа квартиры, Новосибирск, ул. Титова - Фото 17
    Продажа квартиры, Новосибирск, ул. Титова - Фото 18
    Продажа квартиры, Новосибирск, ул. Титова - Фото 19
    Продажа квартиры, Новосибирск, ул. Титова - Фото 20
    2-комнатная квартира, общая площадь 46.4м², жилая 28.4м², кухня 5м²

    2 комн. квартира по ул. Титова. Общей площадью: 46.40 кв.м. В Н И М А Н И Е!! В продажу выставлена отличная квартира по привлекательной цене. Обратите внимание на параметры: - площадь квартиры с лоджией составляет 50,0 м. кв. - долей детей нет,...
    • 46.4 м²
    • 2-ком
    • 4/17 эт.
    • панельный
    5 000 000 Р
    Агент
    +7 (960) Показать номер
    Посмотреть контакты

    Не нашли подходящего объявления?

    Оставьте заявку, и наши риэлторы подберут квартиру в районе Новосибирска

    (0)