5 190 000 Р 65 440 $ или 55 890

Информация о квартире

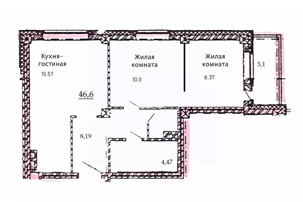
45 м2
Площадь
27 м2
Жилая
6 м2
Кухня
2
Комнаты
3
Этаж
9
Этажность

Дополнительная информация

Тип дома
панельный
Развернуть
Агент
+7 (913) 731-58-73
Начать чат с агентом

2-к кв. Новосибирская область, Новосибирск Выборная ул., 116 (45.2 м)

В продаже 2-х комнатная квартира с изолированными комнатами .Мебель и техника по договоренности. Район обустроен всей необходимой инфраструктурой: рядом находятся школы, детские сады, клиники и магазины, Один взрослый собственник. Приглашаем на просмотр в любое удобное для вас время.

Читать полностью

    Для того, чтобы купить двухкомнатную квартиру по адресу: Новосибирск, м. Речной вокзал, ул. Выборная, 116, позвоните по телефону +7 (913) 731-58-73. Торопитесь! Объявление №30092507807 о продаже двухкомнатной квартиры опубликовано 17 декабря 2025.

    Позвонить Написать
    5 190 000 Р65 440 $ или 55 890
    Агент
    +7 (913) 731-58-73
    Начать чат с агентом
    Похожие предложения
    1-к кв. Новосибирская область, Новосибирск Выборная ул., 91/3 (46.0 м) - Фото 1
    1-к кв. Новосибирская область, Новосибирск Выборная ул., 91/3 (46.0 м) - Фото 2
    1-комнатная квартира, общая площадь 46м², жилая 20м², кухня 13м²

    Код объекта: 1592298.Квартира в прекрасном месте. Отличная планировка, большая кухня. Большой двор с детской площадкой. Рядом сосновый бор , магазины, школы, торговые центры, Пед. Университет.
    • 46 м²
    • 1-ком
    • 13/17 эт.
    5 270 000 Р
    Агент
    +7 (913) Показать номер
    Посмотреть контакты
    2-к кв. Новосибирская область, Новосибирск Выборная ул., 91/3 (53.0 м) - Фото 1
    2-к кв. Новосибирская область, Новосибирск Выборная ул., 91/3 (53.0 м) - Фото 2
    2-комнатная квартира, общая площадь 53м², жилая 34м², кухня 8м²

    Код объекта: 1868974.Исключительная квартира в Новосибирске ждёт своего владельца Расположенная на 17 этаже кирпичного дома, она обладает прекрасным видом и отличной освещённостью. Лучшая планировка. Площадь с учетом лоджии. На площадке 6 квартир. Адрес:...
    • 53 м²
    • 2-ком
    • 17/17 эт.
    • кирпичный
    5 300 000 Р
    Агент
    +7 (913) Показать номер
    Посмотреть контакты
    3-комнатная квартира: Новосибирск, Ученическая улица, 1 (59.5 м) - Фото 1
    3-комнатная квартира: Новосибирск, Ученическая улица, 1 (59.5 м) - Фото 2
    3-комнатная квартира, общая площадь 59м², жилая 42м², кухня 6м²

    3 комн. квартира по ул. Ученическая. Общей площадью: 59.50 кв.м. Продажа светлой, просторной, трехкомнатной квартиры с изолированными комнатами.Отличный вариант для семьи с детьми.В шаговой доступности вся необходимая инфраструктура:* Детские сады.*...
    • 59 м²
    • 3-ком
    • 6/9 эт.
    5 200 000 Р
    Агент
    +7 (958) Показать номер
    Посмотреть контакты
    3-к кв. Новосибирская область, Новосибирск Ученическая ул., 1 (59.5 м) - Фото 1
    3-к кв. Новосибирская область, Новосибирск Ученическая ул., 1 (59.5 м) - Фото 2
    3-комнатная квартира, общая площадь 59м², жилая 42м², кухня 6м²

    Продажа светлой, просторной, трехкомнатной квартиры с изолированными комнатами.Отличный вариант для семьи с детьми.В шаговой доступности вся необходимая инфраструктура:* Детские сады.* Школы и Гимназия8* Поликлиника 3.* Храм* Сбербанк* Магазин Мария-Ра,...
    • 59 м²
    • 3-ком
    • 6/9 эт.
    • панельный
    5 200 000 Р
    Агент
    +7 (986) Показать номер
    Посмотреть контакты
    1-к кв. Новосибирская область, Новосибирск Первомайская ул., 232 (33.5 ... - Фото 1
    1-к кв. Новосибирская область, Новосибирск Первомайская ул., 232 (33.5 ... - Фото 2
    1-комнатная квартира, общая площадь 33м², жилая 14м², кухня 8м²

    Эксклюзивный вариант - Кирпичный дом: Классическая кладка обеспечивает хорошую звукоизоляцию и теплоизоляцию.- Второй этаж: Удобно для семей с маленькими детьми или пожилых людей, так как не нужно подниматься высоко.- Лоджия остеклена: Это дополнительное...
    • 33 м²
    • 1-ком
    • 2/10 эт.
    • кирпичный
    5 160 000 Р
    Агент
    +7 (913) Показать номер
    Посмотреть контакты

    Не нашли подходящего объявления?

    Оставьте заявку, и наши риэлторы подберут квартиру в районе Новосибирска

    (0)