4 600 000 Р 56 990 $ или 48 670

Информация о квартире

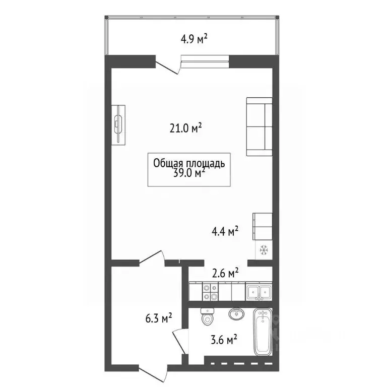
39 м2
Площадь
29 м2
Жилая
студия
Комнат
3
Этаж
10
Этажность
Развернуть
Агент
+7 (917) 830-39-38
Начать чат с агентом

Квартира-студия: Новосибирск, улица Татьяны Снежиной, 25/1 (39 м)

Предлагается к продаже квартира 38,5мВ квартире выполнен качественный ремонт с применением высококачественных материалов и продуманной до мелочей эргономикой. Отдельного внимания заслуживает изолированная кухня-ниша, оборудованная функциональным гарнитуром на заказ с обилием систем хранения и современной встроенной техникой, включая сенсорную варочную панель, духовой шкаф и холодильник. В жилой зоне для организации порядка предусмотрены два вместительных встроенных шкафа-купе. Дополнительным преимуществом является утепленная лоджия площадью 5 кв. м с остеклением, электричеством и системой теплого пола, что позволяет эффективно использовать это пространство круглый год. В стоимость входит вся существующая мебель, техника и текстиль.Расположение объекта характеризуется развитой инфраструктурой: в шаговой доступности находятся школы, детские сады, поликлиники, множество магазинов, аптек и пункты выдачи заказов. Остановка общественного транспорта с маршрутами в разные районы города расположена рядом с домом. Окна квартиры выходят на тихую зеленую зону — детскую и спортивную площадки, а также сквер с хвойными деревьями; зимой через дорогу заливается общественный каток. Квартира продается в свободной собственности, без обременений, одним владельцем. Это предложение представляет собой оптимальное сочетание комфорта, готовности к проживанию и выгодного местоположения. Код пользователя: 177204Номер в базе:

Читать полностью

    Для того, чтобы купить студию по адресу: Новосибирск, м. Золотая Нива, улица Татьяны Снежиной, 25/1, позвоните по телефону +7 (917) 830-39-38. Торопитесь! Объявление №30092282363 о продаже студии опубликовано 07 декабря 2025.

    Позвонить Написать
    4 600 000 Р56 990 $ или 48 670
    Агент
    +7 (917) 830-39-38
    Начать чат с агентом
    Похожие предложения
    Студия Новосибирская область, Новосибирск ул. Татьяны Снежиной, 25/1 ... - Фото 1
    Студия Новосибирская область, Новосибирск ул. Татьяны Снежиной, 25/1 ... - Фото 2
    студия, общая площадь 39м², кухня 5м²

    Предлагается к продаже квартира 38,5 мВ квартире выполнен качественный ремонт с применением высококачественных материалов и продуманной до мелочей эргономикой. Отдельного внимания заслуживает изолированная кухня-ниша, оборудованная функциональным гарнитуром...
    • 39 м²
    • студия-ком
    • 3/10 эт.
    • панельный
    4 600 000 Р
    Агент
    +7 (913) Показать номер
    Посмотреть контакты
    Студия Новосибирская область, Новосибирск ул. Татьяны Снежиной, 25/1 ... - Фото 1
    Студия Новосибирская область, Новосибирск ул. Татьяны Снежиной, 25/1 ... - Фото 2
    студия, общая площадь 38м², жилая 21м², кухня 4м²

    Код объекта: 1965507.Срочно продаём стильную студию в Новосибирске Квартира по адресу: улица Татьяны Снежиной, 25/1. Это идеальное решение для молодых специалистов или студентов, которые ценят комфорт и удобство. Квартира расположена на 3 этаже 10-этажного...
    • 38 м²
    • студия-ком
    • 3/10 эт.
    • панельный
    4 600 000 Р
    Агент
    +7 (913) Показать номер
    Посмотреть контакты
    Квартира-студия: Новосибирск, улица Татьяны Снежиной, 25/1 (38.5 м) - Фото 1
    Квартира-студия: Новосибирск, улица Татьяны Снежиной, 25/1 (38.5 м) - Фото 2
    студия, общая площадь 38м², жилая 21м²

    Код объекта: 1965507.Срочно продаём стильную студию в Новосибирске Квартира по адресу: улица Татьяны Снежиной, 25/1. Это идеальное решение для молодых специалистов или студентов, которые ценят комфорт и удобство. Квартира расположена на 3 этаже 10-этажного...
    • 38 м²
    • студия-ком
    • 3/10 эт.
    4 600 000 Р
    Агент
    +7 (962) Показать номер
    Посмотреть контакты
    2-к кв. Новосибирская область, Новосибирск ул. Виталия Потылицына, ... - Фото 1
    2-к кв. Новосибирская область, Новосибирск ул. Виталия Потылицына, ... - Фото 2
    2-комнатная квартира, общая площадь 42м², жилая 28м², кухня 7м²

    Код объекта: 1962397.Ищете идеальное жильё для вашей семьи в Новосибирске? Представляем вашему вниманию уютную двухкомнатную квартиру по адресу: улица Виталия Потылицына, 11/1. Квартира расположена на пятом этаже десятиэтажного панельного дома, построенного...
    • 42 м²
    • 2-ком
    • 5/10 эт.
    • панельный
    4 500 000 Р
    Агент
    +7 (913) Показать номер
    Посмотреть контакты
    1-к кв. Новосибирская область, Новосибирск ул. В. Высоцкого, 53 (36.6 ... - Фото 1
    1-к кв. Новосибирская область, Новосибирск ул. В. Высоцкого, 53 (36.6 ... - Фото 2
    1-комнатная квартира, общая площадь 36м², жилая 17м², кухня 8м²

    Код объекта: 1923205.ЧИСТАЯ ПРОДАЖА БЕЗ ОБРЕМЕНЕНИЯ БЕЗ ЗАНИЖЕНИЯ В продаже просторная однокомнатная квартира в доме классической кирпичной кладки.Квартира расположена на первом жилом этаже, но по факту это второй этаж, т.к. на первом этаже находится...
    • 36 м²
    • 1-ком
    • 2/16 эт.
    • кирпичный
    4 700 000 Р
    Агент
    +7 (983) Показать номер
    Посмотреть контакты

    Не нашли подходящего объявления?

    Оставьте заявку, и наши риэлторы подберут квартиру в районе Новосибирска

    (0)