2 590 000 Р 33 650 $ или 28 810

Информация о квартире

22 м2
Площадь
студия
Комнат
14
Этаж
18
Этажность
Развернуть
Агент
+7 (913) 891-36-44
Начать чат с агентом

Студия Новосибирская область, Новосибирск ул. Забалуева, 90 (22.6 м)

Цена ниже рыночной Продается уютная студия в Новосибирске по адресу: улица Забалуева, 90. Квартира располагается на 14 этаже 18-этажного монолитно-кирпичного дома, построенного в 2017 году. Общая площадь квартиры составляет 22.6 кв. м, высота потолков — 2.5 метра. Квадратура квартиры указана без учета лоджии, это одна из самых больших студий в этом доме. Студия — идеальный вариант для тех, кто ценит комфорт и практичность в компактном пространстве.В квартире сделан косметический ремонт, что позволяет сразу въехать и жить, либо сдавать. Квартира укомплектована необходимой мебелью и техникой(остается всё новым хозяевам). На данный момент проживает арендатор, готов остаться для дальнейшей аренды. Из окон открывается вид на улицу и частный сектор.Дом находится в хорошем состоянии, оснащен пассажирским и грузовым лифтами, что делает переезд и ежедневные поездки более удобными. На территории предусмотрена наземная парковка, поэтому вы всегда сможете найти место для своего автомобиля.Район, в котором расположена квартира, обладает развитой инфраструктурой. В шаговой доступности находятся магазины, где можно купить все необходимое. До станции метро Площадь Маркса можно добраться на автомобиле за 13 минут, что обеспечивает хорошую транспортную доступность и быстрое перемещение по городу.Продажа осуществляется по договору купли-продажи. Подходит для покупки в ипотеку, все документы готовы к сделке Не упустите возможность стать владельцем этой замечательной студии Звоните и записывайтесь на просмотр. Мы будем рады показать вам квартиру в удобное для вас время.

Читать полностью

    Для того, чтобы купить студию по адресу: Новосибирск, м. Площадь Маркса, ул. Забалуева, 90, позвоните по телефону +7 (913) 891-36-44. Торопитесь! Объявление №30092108990 о продаже студии опубликовано 29 ноября 2025.

    Позвонить Написать
    2 590 000 Р33 650 $ или 28 810
    Агент
    +7 (913) 891-36-44
    Начать чат с агентом
    Похожие предложения
    Студия Новосибирская область, Новосибирск ул. Забалуева, 90 (24.0 м) - Фото 1
    Студия Новосибирская область, Новосибирск ул. Забалуева, 90 (24.0 м) - Фото 2
    студия, общая площадь 24м², жилая 15м², кухня 4м²

    В продаже уютная квартира-студия. Выполнен качественный ремонт из современных материалов. В квартире остается кухонный гарнитур с барной стойкой. Площадь указана с учетом площади лоджии ( по ЕГРН 22,6).
    • 24 м²
    • студия-ком
    • 13/17 эт.
    • монолит
    2 650 000 Р
    Агент
    +7 (983) Показать номер
    Посмотреть контакты
    Студия Новосибирская область, Новосибирск ул. Забалуева, 90 (18.0 м) - Фото 1
    Студия Новосибирская область, Новосибирск ул. Забалуева, 90 (18.0 м) - Фото 2
    студия, общая площадь 18м², жилая 5м², кухня 5м²

    Код объекта: 1900482. Продаётся уютная студия в Новосибирске Адрес: улица Забалуева, 90.Основные характеристики:- Год постройки: 2017.- Материал постройки: монолитный.- Этаж: 2.- Общая площадь: 18 кв. м.- Жилая площадь: 5 кв. м.- Высота потолков: 2,5...
    • 18 м²
    • студия-ком
    • 2/18 эт.
    • монолит
    2 600 000 Р
    Агент
    +7 (913) Показать номер
    Посмотреть контакты
    Студия Новосибирская область, Новосибирск ул. Забалуева, 69 (25.3 м) - Фото 1
    Студия Новосибирская область, Новосибирск ул. Забалуева, 69 (25.3 м) - Фото 2
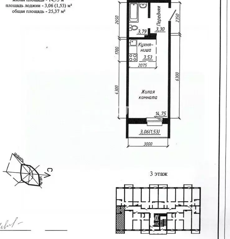
    студия, общая площадь 25м², жилая 15м², кухня 4м²

    Арт.Продается квартира - студия в ЖК Радуга Сибири , Дом сдан в декабре 2024 года. КЛЮЧИ В АГЕНТСТВЕ. Общая площадь квартиры 28.3 кв.м ( с учетом лоджии), без лоджии 25.3 кв.м. Квартира под самоотделку, установлена качественная входная дверь, приборы...
    • 25 м²
    • студия-ком
    • 3/17 эт.
    • кирпичный
    2 650 000 Р
    Агент
    +7 (983) Показать номер
    Посмотреть контакты
    Студия Новосибирская область, Новосибирск ул. Забалуева, 92 (22.8 м) - Фото 1
    Студия Новосибирская область, Новосибирск ул. Забалуева, 92 (22.8 м) - Фото 2
    студия, общая площадь 22м², жилая 16м², кухня 2м²

    В продаже студия 22,8 м2 на видовом 15 этаже. В квартире начат ремонт- отделан санузел, постелен линолеум, куплены межкомнатные двери и погонаж, выровнены стены. Осталось наклеить обои на свой вкус и натянуть потолок.Все документы в порядке, свободная...
    • 22 м²
    • студия-ком
    • 15/17 эт.
    • монолит
    2 550 000 Р
    Агент
    +7 (913) Показать номер
    Посмотреть контакты
    Студия Новосибирская область, Новосибирск ул. Забалуева, 92 (23.8 м) - Фото 1
    Студия Новосибирская область, Новосибирск ул. Забалуева, 92 (23.8 м) - Фото 2
    студия, общая площадь 23м², кухня 5м²

    В продаже уютная квартира-студия в ЖК Радуга Сибири, расположена на комфортном 6 этаже, открывающим живописные виды. Квартира полностью готово к проживанию.Новым владельцам остается вся мебель.Жилой комплекс находится в развитом спальном районе с насыщенной...
    • 23 м²
    • студия-ком
    • 6/17 эт.
    • монолит
    2 640 000 Р
    Агент
    +7 (913) Показать номер
    Посмотреть контакты

    Не нашли подходящего объявления?

    Оставьте заявку, и наши риэлторы подберут квартиру в районе Новосибирска

    (0)