3 900 000 Р 49 350 $ или 43 060

Информация о квартире

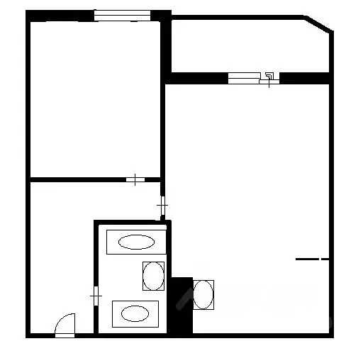
58 м2
Площадь
30 м2
Жилая
14 м2
Кухня
2
Комнаты
3
Этаж
4
Этажность

Дополнительная информация

Тип дома
блочный
Развернуть
Агент
+7 (913) 013-43-56
Начать чат с агентом

2-к кв. Новосибирская область, Новосибирск 1-я Родниковая ул., 28 ...

Код объекта: 1933884.Продаётся двухкомнатная квартира в одном из самых перспективных районов города по адресу: 1-я Родниковая улица, 28. коттеджный поселок Красная горка О квартире:Квартира продается под самоотделку что позволяет обустроить и сделать ремонт по своему вкусу. Все комнаты изолированы, окна выходят на улицу. Есть большой широкий балкон/лоджия, где можно устроить зону отдыха.Установлен газовый котел с возможностью регулировки температуры.Инфраструктура:На придомовой территории есть наземная парковка и огороженная зона, что гарантирует безопасность и удобство для жителей. Детская площадка.Дом расположен в дали от оживленной улицы, что позволяет наслаждаться тишиной и экологически свежим воздухом.Не подоплёку находится продуктовые магазины, пункт выдачи Озон, станция электрички Камышенская , Планетарий, Инюшенский бор, Педагогический институт и колледж связи. Не упустите шанс стать обладателем этой замечательной квартиры Звоните нам прямо сейчас, чтобы узнать больше и записаться на просмотр.Мы гарантируем безопасную сделку и юридическую поддержку нашим Клиентам. Поможем одобрить ипотеку с сниженной ставкой.

Читать полностью

    Для того, чтобы купить двухкомнатную квартиру по адресу: Новосибирск, м. Речной вокзал, 1-я Родниковая ул., 28, позвоните по телефону +7 (913) 013-43-56. Торопитесь! Объявление №30091954262 о продаже двухкомнатной квартиры опубликовано 2 дня назад.

    Позвонить Написать
    3 900 000 Р49 350 $ или 43 060
    Агент
    +7 (913) 013-43-56
    Начать чат с агентом
    Похожие предложения
    1-к кв. Новосибирская область, Новосибирск Первомайская ул., 230 (27.3 ... - Фото 1
    1-к кв. Новосибирская область, Новосибирск Первомайская ул., 230 (27.3 ... - Фото 2
    1-комнатная квартира, общая площадь 27м²

    В продаже квартира в хорошем состоянии. Сады, школа , остановка и тд- в шаговой доступности. До центра на авто 20 мин, так же ходит электричка.Рядом с объектом находятся:2 детских сада,6 продуктовых магазинов,1 спортивное учреждение. Возможен обмен на...
    • 27 м²
    • 1-ком
    • 6/17 эт.
    • кирпичный
    3 850 000 Р
    Агент
    +7 (986) Показать номер
    Посмотреть контакты
    2-к кв. Новосибирская область, Новосибирск ул. Новоселов, 8 (45.3 м) - Фото 1
    2-к кв. Новосибирская область, Новосибирск ул. Новоселов, 8 (45.3 м) - Фото 2
    2-комнатная квартира, общая площадь 45м², жилая 30м², кухня 7м²

    Двухкомнатная квартира с ИЗОЛИРОВАННЫМИ комнатами на комфортном этаже.Квартира под ремонт, но можно заехать и делать ремонт для себя.Установлены пластиковые окна.Дом расположен в живописном районе с красивым зеленым ландшафтом и ухоженными дворами. Вы...
    • 45 м²
    • 2-ком
    • 3/5 эт.
    • панельный
    3 800 000 Р
    Агент
    +7 (939) Показать номер
    Посмотреть контакты
    Студия Новосибирская область, Новосибирск Автогенная ул., 75 (25.8 м) - Фото 1
    Студия Новосибирская область, Новосибирск Автогенная ул., 75 (25.8 м) - Фото 2
    студия, общая площадь 25м², жилая 11м², кухня 9м²

    Продаются апартаменты в сданном доме (NOVA-апарт), общей площадью 25,8 кв.м., на 2 этаже. Круглосуточная консьерж-охрана на первом этаже, видеонаблюдение по всему периметру и в лифтах - обеспечивают Вашу надежную безопасность. Современный подземный тёплый...
    • 25 м²
    • студия-ком
    • 2/11 эт.
    3 900 000 Р
    Агент
    +7 (913) Показать номер
    Посмотреть контакты
    2-к кв. Новосибирская область, Новосибирск ул. Лобова, 9 (42.3 м) - Фото 1
    2-к кв. Новосибирская область, Новосибирск ул. Лобова, 9 (42.3 м) - Фото 2
    2-комнатная квартира, общая площадь 42м², жилая 30м², кухня 7м²

    В продаже уютная двухкомнатная квартира в Октябрьском районе. Отличное местоположение, рядом школа с различными секциями, детский сад, остановка общественного транспорта, множество магазинов, 3 км. до м. Октябрьская.Квартира в хорошем состоянии, с высокими...
    • 42 м²
    • 2-ком
    • 1/2 эт.
    • кирпичный
    3 900 000 Р
    Агент
    +7 (939) Показать номер
    Посмотреть контакты
    2-к кв. Новосибирская область, Новосибирск Березовая ул., 19 (37.1 м) - Фото 1
    2-к кв. Новосибирская область, Новосибирск Березовая ул., 19 (37.1 м) - Фото 2
    2-комнатная квартира, общая площадь 37м², жилая 22м², кухня 4м²

    Продается уютная двухкомнатная квартира в современном доме по адресу: Россия, Новосибирск, Берёзовая улица, 19. Общая площадь квартиры составляет 37,1 кв. м, жилая площадь — 22,0 кв. м, а кухня — 4,0 кв. м. Квартира расположена на 4 этаже 18-этажного...
    • 37 м²
    • 2-ком
    • 4/18 эт.
    3 900 000 Р
    Агент
    +7 (913) Показать номер
    Посмотреть контакты

    Не нашли подходящего объявления?

    Оставьте заявку, и наши риэлторы подберут квартиру в районе Новосибирска

    (0)