3 600 000 Р 46 020 $ или 39 640

Информация о квартире

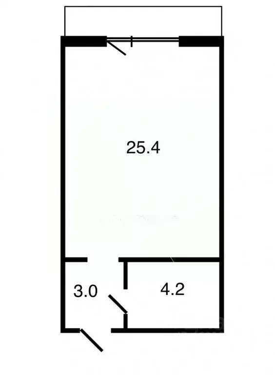
38 м2
Площадь
19 м2
Жилая
13 м2
Кухня
1
Комната
4
Этаж
17
Этажность
Развернуть
Агент
+7 (937) 568-03-12
Начать чат с агентом

1-комнатная квартира: Новосибирск, Бронная улица, 22/1 (38.3 м)

Продается просторная двухкомнатная квартира-студия на 4 этаже в современном 17-этажном доме жилого комплекса «Семейный квартал . Объект отличается рациональной планировкой с изолированной спальней, объединенной кухней-гостиной и вместительной прихожей. Квартира переведена в состояние идеальной предчистовой отделки: выровнены стены, выполнена стяжка пола, установлены розетки и выключатели, смонтирована горизонтальная разводка отопления для гибкой расстановки мебели, предусмотрено место для кондиционера. В подъезде создана комфортная среда: два бесшумных лифта, светлый холл, колясочная, беспороговый доступ и архитектурная подсветка фасада. В квартире установлена пожарная сигнализация.ЖК обладает развитой инфраструктурой: в шаговой доступности находятся детский сад, остановка общественного транспорта и магазины, ведется строительство школы. Вблизи расположено озеро, где создается благоустроенная зона отдыха. Торговый центр «Мега доступен за 10–15 минут на автомобиле. На огороженной и озелененной территории комплекса организованы детские игровые площадки для разных возрастов, спортивная зона для баскетбола и волейбола, места для отдыха взрослых. Действует концепция «Двор без машин с удобной наземной парковкой и круглосуточным видеонаблюдением. Квартира имеет двух взрослых собственников, все документы подготовлены для любой формы расчетов, включая ипотеку. Код пользователя: 191912Номер в базе:

Читать полностью

    Для того, чтобы купить однокомнатную квартиру по адресу: Новосибирск, м. Площадь Маркса, ул. Бронная, 22/1, позвоните по телефону +7 (937) 568-03-12. Торопитесь! Объявление №30091891018 о продаже однокомнатной квартиры опубликовано 19 ноября 2025.

    Позвонить Написать
    3 600 000 Р46 020 $ или 39 640
    Агент
    +7 (937) 568-03-12
    Начать чат с агентом
    Похожие предложения
    1-к кв. Новосибирская область, Новосибирск Бронная ул., 22/1 (38.3 м) - Фото 1
    1-к кв. Новосибирская область, Новосибирск Бронная ул., 22/1 (38.3 м) - Фото 2
    1-комнатная квартира, общая площадь 38м², кухня 13м²

    Продается просторная двухкомнатная квартира-студия на 4 этаже в современном 17-этажном доме жилого комплекса Семейный квартал . Объект отличается рациональной планировкой с изолированной спальней, объединенной кухней-гостиной и вместительной прихожей....
    • 38 м²
    • 1-ком
    • 4/17 эт.
    • панельный
    3 600 000 Р
    Агент
    +7 (913) Показать номер
    Посмотреть контакты
    1-к кв. Новосибирская область, Новосибирск Бронная ул., 22/1 (38.3 м) - Фото 1
    1-комнатная квартира, общая площадь 38м², жилая 19м², кухня 13м²

    Код объекта: 1916147.Уникальное предложение на рынке недвижимости Новосибирска Продаётся 1-комнатная квартира в современном жилом комплексе на Бронной улице, 22/1.Квартира расположена на 4 этаже 17-этажного панельного дома, построенного в 2024 году....
    • 38 м²
    • 1-ком
    • 4/17 эт.
    • панельный
    3 600 000 Р
    Агент
    +7 (913) Показать номер
    Посмотреть контакты
    Студия Новосибирская область, Новосибирск ул. Александра Чистякова, 6 ... - Фото 1
    Студия Новосибирская область, Новосибирск ул. Александра Чистякова, 6 ... - Фото 2
    студия, общая площадь 32м², жилая 22м², кухня 5м²

    Арт.Настоящая жемчужина в ул. Чистякова, 6 В продаже уютная и очень светлая студия с остекленным балконом на 5-м этаже 10-этажного дома. Квартира полностью готова к проживанию — вам останется только завезти личные вещи, мебель и технику. Почему эта квартира...
    • 32 м²
    • студия-ком
    • 5/10 эт.
    • панельный
    3 500 000 Р
    Агент
    +7 (913) Показать номер
    Посмотреть контакты
    Студия Новосибирская область, Новосибирск ул. Титова, 253/5 (25.5 м) - Фото 1
    Студия Новосибирская область, Новосибирск ул. Титова, 253/5 (25.5 м) - Фото 2
    студия, общая площадь 25м², жилая 14м²

    Арт.Предлагается к покупке квартира-студия расположенная на 9 этаже кирпичного дома.Квартира имеет хорошую планировку- просторную комнату, коридор, сан.узел и большую застекленную лоджию.Общая площадь квартиры -25, 5 КВ.м., без учёта лоджии Квартира...
    • 25 м²
    • студия-ком
    • 9/14 эт.
    • кирпичный
    3 500 000 Р
    Агент
    +7 (913) Показать номер
    Посмотреть контакты
    1-к кв. Новосибирская область, Новосибирск Степная ул., 47 (29.8 м) - Фото 1
    1-к кв. Новосибирская область, Новосибирск Степная ул., 47 (29.8 м) - Фото 2
    1-комнатная квартира, общая площадь 29м², жилая 17м², кухня 5м²

    В продаже уютная однокомнатная квартира недалеко от метро пл. Маркса Квартира в хорошем состоянии: полностью произведена замена труб водоснабжения и канализации, а также электропроводка. Выровнены стены, установлена надежная входная дверь, пластиковые...
    • 29 м²
    • 1-ком
    • 5/5 эт.
    • панельный
    3 700 000 Р
    Агент
    +7 (986) Показать номер
    Посмотреть контакты

    Не нашли подходящего объявления?

    Оставьте заявку, и наши риэлторы подберут квартиру в районе Новосибирска

    (0)