2 990 000 Р 36 860 $ или 31 440

Информация о квартире

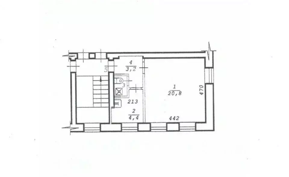
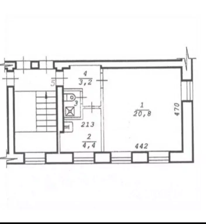
34 м2
Площадь
10 м2
Кухня
1
Комната
6
Этаж
10
Этажность

Дополнительная информация

Тип дома
панельный
Развернуть
Агент
+7 (913) 918-19-30
Начать чат с агентом

1-к кв. Новосибирская область, Новосибирск ул. Александра Чистякова, ...

Квартира площадью 32.6 м расположена на пятом этаже девятиэтажного дома в Южно-Чемском микрорайоне Новосибирска. Объект реализуется без отделки, что предоставляет полную свободу для планировки и дизайна интерьера согласно индивидуальным требованиям. Ключевым преимуществом является просторная жилая зона площадью 25.4 м, которая может функционально зонироваться под гостиную и спальное место. Совмещенный санузел рационально использует площадь. Окна выходят на тихий двор с детской площадкой, обеспечивая спокойную атмосферу и отсутствие уличного шума.Микрорайон обладает развитой инфраструктурой: в шаговой доступности находятся школа, детский сад, торговый центр и фитнес-клуб. Транспортная доступность обеспечивается близостью остановки общественного транспорта, а для автомобилистов во дворе организована неорганизованная парковка. Юридическая чистота сделки подтверждается одним взрослым собственником и отсутствием прописанных лиц. Данный объект представляет собой практичное решение для инвестиции или последующего проживания, сочетая выгодное местоположение, потенциал для самостоятельного планирования и отсутствие обременений. Дополнительно оплачивается комиссия с покупателя.Код пользователя: 182204Номер в базе:

Читать полностью

    Для того, чтобы купить однокомнатную квартиру по адресу: Новосибирск, м. Студенческая, ул. Александра Чистякова, 2/2, позвоните по телефону +7 (913) 918-19-30. Торопитесь! Объявление №30091688714 о продаже однокомнатной квартиры опубликовано 13 ноября 2025.

    Позвонить Написать
    2 990 000 Р36 860 $ или 31 440
    Агент
    +7 (913) 918-19-30
    Начать чат с агентом
    Похожие предложения
    1-к кв. Новосибирская область, Новосибирск Планировочная ул., 27 (30.1 ... - Фото 1
    1-к кв. Новосибирская область, Новосибирск Планировочная ул., 27 (30.1 ... - Фото 2
    1-комнатная квартира, общая площадь 30м², жилая 20м², кухня 4м²

    Код объекта: 1893650.Продаётся однокомнатная квартира в Новосибирске по адресу: Планировочная улица, 27. Это идеальный выбор для тех, кто жильё по доступной цене.Квартира расположена на первом этаже двухэтажного дома. Общая площадь составляет 30,1 кв....
    • 30 м²
    • 1-ком
    • 1/2 эт.
    • блочный
    3 000 000 Р
    Агент
    +7 (913) Показать номер
    Посмотреть контакты
    1-к кв. Новосибирская область, Новосибирск ул. Молодости, 54 (28.8 м) - Фото 1
    1-к кв. Новосибирская область, Новосибирск ул. Молодости, 54 (28.8 м) - Фото 2
    1-комнатная квартира, общая площадь 28м², жилая 17м², кухня 6м²

    Код объекта: 1911116.Продаётся уютная квартира в НовосибирскеПредставляем вашему вниманию однокомнатную квартиру. Это отличный вариант для тех, кто ищет комфортное жильё по доступной цене.Квартира расположена на четвёртом этаже пятиэтажного панельного...
    • 28 м²
    • 1-ком
    • 4/5 эт.
    • панельный
    3 050 000 Р
    Агент
    +7 (913) Показать номер
    Посмотреть контакты
    Студия Новосибирская область, Новосибирск Приморская ул., 24 (27.0 м) - Фото 1
    Студия Новосибирская область, Новосибирск Приморская ул., 24 (27.0 м) - Фото 2
    студия, общая площадь 27м², жилая 19м², кухня 3м²

    Код объекта: 1836462.Уникальное предложение на рынке недвижимости Новосибирска Продаётся светлая и уютная студия в кирпичном доме на Приморской улице, 24. Квартира расположена на 6 этаже 17-этажного дома, построенного в 2017 году.Общая площадь квартиры...
    • 27 м²
    • студия-ком
    • 6/17 эт.
    • кирпичный
    2 970 000 Р
    Агент
    +7 (983) Показать номер
    Посмотреть контакты
    1-к кв. Новосибирская область, Новосибирск Планировочная ул., 29 (30.6 ... - Фото 1
    1-к кв. Новосибирская область, Новосибирск Планировочная ул., 29 (30.6 ... - Фото 2
    1-комнатная квартира, общая площадь 30м², жилая 22м², кухня 3м²

    Код объекта: 1918619.Эта уютная однокомнатная квартира расположена на первом этаже двухэтажного блочного дома 1959 года постройки. Общая площадь составляет 30,6 кв. м, из которых 22 кв. м — жилая площадь. Высота потолков 2,8 м создаёт ощущение простора.В...
    • 30 м²
    • 1-ком
    • 1/2 эт.
    • блочный
    2 950 000 Р
    Агент
    +7 (913) Показать номер
    Посмотреть контакты
    1-к кв. Новосибирская область, Новосибирск Рубежная ул., 10/2 (39.4 м) - Фото 1
    1-к кв. Новосибирская область, Новосибирск Рубежная ул., 10/2 (39.4 м) - Фото 2
    1-комнатная квартира, общая площадь 39м², жилая 20м², кухня 10м²

    Если Вам важно куда выходят окна вашей квартиры, обратите внимание на наше предложение. Чистая продажа. Один взрослый собственник. Без обременений и занижений. Прозрачная сделка.
    • 39 м²
    • 1-ком
    • 3/3 эт.
    • кирпичный
    3 100 000 Р
    Агент
    +7 (913) Показать номер
    Посмотреть контакты

    Не нашли подходящего объявления?

    Оставьте заявку, и наши риэлторы подберут квартиру в районе Новосибирска

    (0)