4 300 000 Р 52 940 $ или 45 820

Информация о квартире

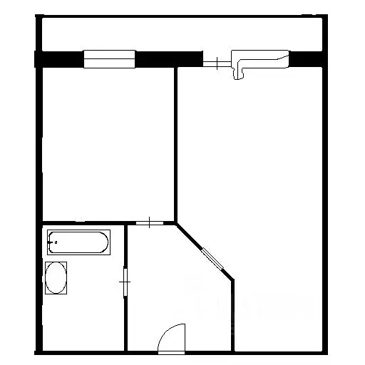
34 м2
Площадь
18 м2
Жилая
7 м2
Кухня
1
Комната
2
Этаж
17
Этажность
Развернуть
Агент
+7 (913) 771-26-29
Начать чат с агентом

1-к кв. Новосибирская область, Новосибирск Междуреченская ул., 1 (34.7 ...

Продается отличная однокомнатная квартира общей площадью 34.7 кв. м. Квартира находится на 2 этаже 17-этажного монолитно-кирпичного дома, построенного в 2018 году. Высота потолков составляет 2.7 метра, что создает ощущение простора. Жилая площадь — 18 кв. м, а площадь кухни — 7.2 кв. м, что позволяет комфортно разместиться и готовить любимые блюда. В квартире выполнен косметический ремонт, который создает уютную атмосферу и не требует значительных вложений. Окна выходят во двор, поэтому в квартире всегда тихо и спокойно. Совмещенный санузел оборудован всем необходимым для комфортного проживания. Есть просторная лоджия, где можно наслаждаться свежим воздухом. Дом ухоженный, оснащен двумя пассажирскими лифтами и пандусом, что удобно для семей с детьми и пожилых людей. Для автовладельцев предусмотрена наземная парковка. Район с развитой инфраструктурой: поблизости находятся школы и детские сады, что делает это место удобным для семей с детьми. Также в шаговой доступности расположены магазины, где можно приобрести все необходимое для повседневной жизни. До метро Площадь Маркса можно добраться за 11 минут на автомобиле, что обеспечивает хорошую транспортную доступность. Квартира продается по договору купли-продажи. Возможна ипотека, что делает покупку более доступной. Все документы на квартиру готовы к сделке, без обременений и сложных юридических вопросов. Приглашаем вас на просмотр этой уютной квартиры. Звоните и записывайтесь на удобное для вас время, чтобы оценить все преимущества и почувствовать себя дома.

Читать полностью

    Для того, чтобы купить однокомнатную квартиру по адресу: Новосибирск, м. Площадь Маркса, ул. Междуреченская, 1, позвоните по телефону +7 (913) 771-26-29. Торопитесь! Объявление №30091627013 о продаже однокомнатной квартиры опубликовано 2 дня назад.

    Позвонить Написать
    4 300 000 Р52 940 $ или 45 820
    Агент
    +7 (913) 771-26-29
    Начать чат с агентом
    Похожие предложения
    3-к кв. Новосибирская область, Новосибирск ул. Петухова, 50 (59.0 м) - Фото 1
    3-к кв. Новосибирская область, Новосибирск ул. Петухова, 50 (59.0 м) - Фото 2
    3-комнатная квартира, общая площадь 59м², жилая 44м², кухня 6м²

    Арт.Предлагаем к продаже 3 комнатную квартиру. Один взрослый собственник, без обременений и занижений. Чистая продажа. Квартира смежно - изолированная. Находится на комфортном третьем этаже. Подходит под ипотеку и любые виды расчетов. В агентстве...
    • 59 м²
    • 3-ком
    • 3/5 эт.
    • панельный
    4 300 000 Р
    Агент
    +7 (913) Показать номер
    Посмотреть контакты
    2-к кв. Новосибирская область, Новосибирск ул. Титова, 47/1 (44.6 м) - Фото 1
    2-к кв. Новосибирская область, Новосибирск ул. Титова, 47/1 (44.6 м) - Фото 2
    2-комнатная квартира, общая площадь 44м², жилая 30м², кухня 6м²

    В продаже 2-х комнатная квартира с удобной планировкой, окна выходят на две стороны дома.В квартире везде выполнен свежий ремонт, кроме сан. узла.При необходимости оставим практически всю мебель в подарок покупателю.Во дворе есть хоккейная коробка и детская...
    • 44 м²
    • 2-ком
    • 5/5 эт.
    • панельный
    4 200 000 Р
    Агент
    +7 (987) Показать номер
    Посмотреть контакты
    1-к кв. Новосибирская область, Новосибирск ул. Виктора Уса, 7/1 (43.5 ... - Фото 1
    1-к кв. Новосибирская область, Новосибирск ул. Виктора Уса, 7/1 (43.5 ... - Фото 2
    1-комнатная квартира, общая площадь 43м², жилая 24м², кухня 10м²

    Продается светлая и уютная однокомнатная квартира Эта квартира - ваше идеальное место для жизни , где вы будете жить в гармонии и согласии Квартира очень удачна и практична Продаем ее в связи с расширением. Соседи просто замечательные люди .Квартира...
    • 43 м²
    • 1-ком
    • 9/9 эт.
    • панельный
    4 200 000 Р
    Агент
    +7 (913) Показать номер
    Посмотреть контакты
    2-к кв. Новосибирская область, Новосибирск Фасадная ул., 16 (52.0 м) - Фото 1
    2-к кв. Новосибирская область, Новосибирск Фасадная ул., 16 (52.0 м) - Фото 2
    2-комнатная квартира, общая площадь 52м², жилая 29м², кухня 7м²

    Код объекта: 1878643. Ищете уютное жильё по доступной цене? Вашему вниманию предлагается прекрасная двухкомнатная квартира в Новосибирске по адресу Фасадная улица, 16.Квартира расположена на комфортом втором этаже трёхэтажного кирпичного дома, с ЖБ перекрытиями....
    • 52 м²
    • 2-ком
    • 2/3 эт.
    • кирпичный
    4 300 000 Р
    Агент
    +7 (983) Показать номер
    Посмотреть контакты
    1-к кв. Новосибирская область, Новосибирск ул. Петухова, 14 (36.2 м) - Фото 1
    1-к кв. Новосибирская область, Новосибирск ул. Петухова, 14 (36.2 м) - Фото 2
    1-комнатная квартира, общая площадь 36м², жилая 15м², кухня 10м²

    Просторная квартира в тёплом кирпичном доме с большим балансном на всю ширину квартиры , в квартире остаётся все для комфортного проживания : качественная кухня с варочной поверхностью вытяжкой и духовым шкафом , холодильник , диван на кухне и стулья...
    • 36 м²
    • 1-ком
    • 2/18 эт.
    • кирпичный
    4 400 000 Р
    Агент
    +7 (913) Показать номер
    Посмотреть контакты

    Не нашли подходящего объявления?

    Оставьте заявку, и наши риэлторы подберут квартиру в районе Новосибирска

    (0)