6 100 000 Р 76 880 $ или 65 630

Информация о квартире

33 м2
Площадь
14 м2
Жилая
1
Комната
4
Этаж
17
Этажность

Дополнительная информация

Тип дома
монолит
Развернуть
Агент
+7 (963) 561-34-39
Начать чат с агентом

1-к кв. Новосибирская область, Новосибирск Самоцветы жилой комплекс ...

Жилой комплекс Самоцветы - это объединенная территория закрытых дворов на 11,2 Га. В проект входят 17 жилых домов, школа, детский сад, стоянки открытого типа и многоуровневый гаражный бокс.Жилой комплекс Самоцветы — это уникальный подход планирования дворовой территории и концептуально - новое пространство. В ЖК Самоцветы запроектированы коммерческие помещения: под кафе, рестораны, супермаркеты, магазины и медицинские центры. Каждая очередь строительства ЖК Самоцветы имеет свое уникальное название в честь горных пород России.Жилой комплекс Самоцветыасположен по улице Большая , Ленинского района, города Новосибирска. Вблизи жилого комплекса расположены кафе, продуктовые и строительные магазины, аптеки, а также торговый центр в котором находятся крупный продуктовый магазин, салоны красоты, сервисные центры и др. А в радиусе 2х км расположились тренажерные залы и большое обилие магазинов способных закрыть любые потребности.

Читать полностью
    Позвонить Написать
    6 100 000 Р76 880 $ или 65 630
    Агент
    +7 (963) 561-34-39
    Начать чат с агентом
    Похожие предложения в Новосибирске
    1-к кв. Новосибирская область, Новосибирск ул. Костычева, 19/1 (34.39 ... - Фото 1
    1-комнатная квартира, общая площадь 34м², жилая 20м², кухня 6м²

    Продаётся 1-комнатная квартира в строящемся доме (Секция 1.2), срок сдачи: I-кв. 2027, общей площадью 34.39 кв.м., на 2 этаже. Новый жилой комплекс 19/56 Кварталы Телецентра от Специализированного застройщика Телецентрасположен в Ленинском районе Новосибирска...
    • 34 м²
    • 1-ком
    • 2/15 эт.
    6 190 000 Р
    Агент
    +7 (963) Показать номер
    Посмотреть контакты
    2-к кв. Новосибирская область, Новосибирск ул. Юности, 9 (55.29 м) - Фото 1
    2-к кв. Новосибирская область, Новосибирск ул. Юности, 9 (55.29 м) - Фото 2
    2-комнатная квартира, общая площадь 55м²

    Продаётся 2-комнатная квартира в сданном доме (Юности, 9 (Дом 43)), срок сдачи: III-кв. 2024, общей площадью 55.29 кв.м., на 12 этаже. Микрорайон Дивногорский новый семейный микрорайон, расположенный рядом с Димитровским мостом, на Левом берегу Оби...
    • 55 м²
    • 2-ком
    • 12/12 эт.
    • кирпичный
    6 192 480 Р
    Агент
    +7 (958) Показать номер
    Посмотреть контакты
    2-к кв. Новосибирская область, Новосибирск Самоцветы жилой комплекс ... - Фото 1
    2-к кв. Новосибирская область, Новосибирск Самоцветы жилой комплекс ... - Фото 2
    2-комнатная квартира, общая площадь 62м², жилая 29м²

    Жилой комплекс Самоцветы - это объединенная территория закрытых дворов на 11,2 Га. В проект входят 17 жилых домов, школа, детский сад, стоянки открытого типа и многоуровневый гаражный бокс.Жилой комплекс Самоцветы — это уникальный подход планирования...
    • 62 м²
    • 2-ком
    • 1/17 эт.
    • монолит
    6 150 000 Р
    Агент
    +7 (963) Показать номер
    Посмотреть контакты
    2-к кв. Новосибирская область, Новосибирск Самоцветы жилой комплекс ... - Фото 1
    2-к кв. Новосибирская область, Новосибирск Самоцветы жилой комплекс ... - Фото 2
    2-комнатная квартира, общая площадь 62м², жилая 29м²

    Жилой комплекс Самоцветы - это объединенная территория закрытых дворов на 11,2 Га. В проект входят 17 жилых домов, школа, детский сад, стоянки открытого типа и многоуровневый гаражный бокс.Жилой комплекс Самоцветы — это уникальный подход планирования...
    • 62 м²
    • 2-ком
    • 4/17 эт.
    • монолит
    6 200 000 Р
    Агент
    +7 (963) Показать номер
    Посмотреть контакты
    2-к кв. Новосибирская область, Новосибирск Самоцветы жилой комплекс ... - Фото 1
    2-к кв. Новосибирская область, Новосибирск Самоцветы жилой комплекс ... - Фото 2
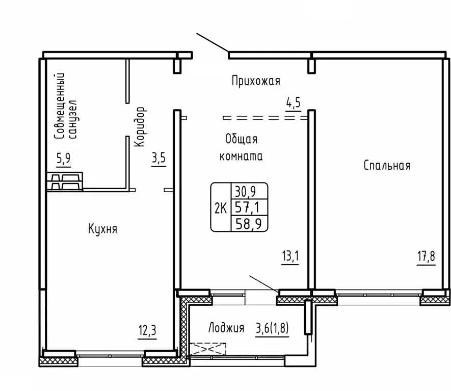
    2-комнатная квартира, общая площадь 58м², жилая 30м²

    Жилой комплекс Самоцветы - это объединенная территория закрытых дворов на 11,2 Га. В проект входят 17 жилых домов, школа, детский сад, стоянки открытого типа и многоуровневый гаражный бокс.Жилой комплекс Самоцветы — это уникальный подход планирования...
    • 58 м²
    • 2-ком
    • 1/17 эт.
    • монолит
    6 050 000 Р
    Агент
    +7 (963) Показать номер
    Посмотреть контакты

    Не нашли подходящего объявления?

    Оставьте заявку, и наши риэлторы подберут квартиру в новостройке в районе Новосибирска

    (0)