7 300 000 Р 89 730 $ или 77 500

Информация о квартире

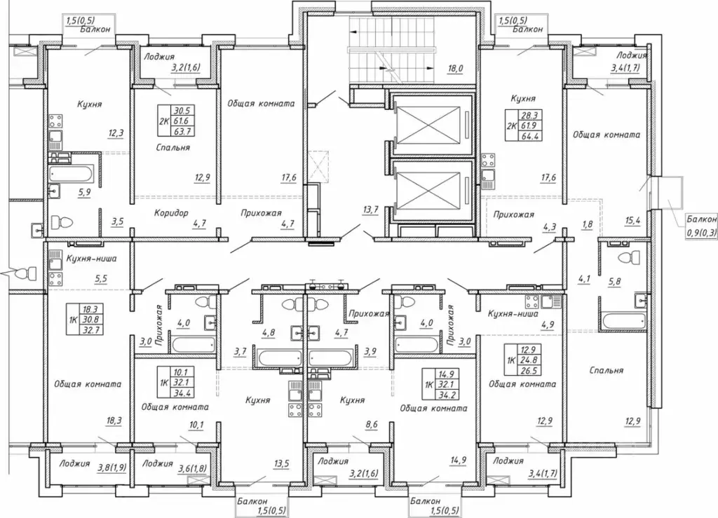
69 м2
Площадь
2
Комнаты
13
Этаж
15
Этажность

Дополнительная информация

Тип дома
монолит
Развернуть
Агент
+7 (994) 252-39-33
Начать чат с агентом

2-к кв. Новосибирская область, Новосибирск Гренландия жилой комплекс ...

Продаётся 2-комнатная квартира в строящемся доме (Дом 5), срок сдачи: III-кв. 2026, общей площадью 69.4 кв.м., на 13 этаже. Новый жилой комплекс Гренландия от Группы компаний Союзасположен в Калининском районе Новосибирска на ул. Тюленина.

Читать полностью
    Позвонить Написать
    7 300 000 Р89 730 $ или 77 500
    Агент
    +7 (994) 252-39-33
    Начать чат с агентом
    Похожие предложения в Новосибирске
    2-к кв. Новосибирская область, Новосибирск Гренландия жилой комплекс ... - Фото 1
    2-к кв. Новосибирская область, Новосибирск Гренландия жилой комплекс ... - Фото 2
    2-комнатная квартира, общая площадь 64м²

    Жилой комплекс Гренландия — новый стандарт в Новосибирске, где архитектура, природа и комфорт сочетаются. Вдохновлённый Гренландией, проект предлагает скандинавский стиль жизни: простоту, минимализм, гармонию с природой.Что делает Гренландию особенной:Архитектура...
    • 64 м²
    • 2-ком
    • 6/15 эт.
    • монолит
    7 250 000 Р
    Агент
    +7 (958) Показать номер
    Посмотреть контакты
    1-к кв. Новосибирская область, Новосибирск Кедровая ул., 79 (31.39 м) - Фото 1
    1-к кв. Новосибирская область, Новосибирск Кедровая ул., 79 (31.39 м) - Фото 2
    1-комнатная квартира, общая площадь 31м²

    Вы хотите жить в тихом экологичном районе, рядом с сосновым лесом и парком?В новом жилом квартале премиум-класса?И чтобы до центра не более 20 минут на машине? Новый Кедровый — квартал премиум-класса у соснового леса. Здесь вас ждет настоящий VIP-уровень...
    • 31 м²
    • 1-ком
    • 6/8 эт.
    7 330 000 Р
    Агент
    +7 (958) Показать номер
    Посмотреть контакты
    1-к кв. Новосибирская область, Новосибирск Кедровая ул., 79 (31.36 м) - Фото 1
    1-к кв. Новосибирская область, Новосибирск Кедровая ул., 79 (31.36 м) - Фото 2
    1-комнатная квартира, общая площадь 31м²

    Вы хотите жить в тихом экологичном районе, рядом с сосновым лесом и парком?В новом жилом квартале премиум-класса?И чтобы до центра не более 20 минут на машине? Новый Кедровый — квартал премиум-класса у соснового леса. Здесь вас ждет настоящий VIP-уровень...
    • 31 м²
    • 1-ком
    • 6/8 эт.
    7 320 000 Р
    Агент
    +7 (958) Показать номер
    Посмотреть контакты
    1-к кв. Новосибирская область, Новосибирск Лебедевский кв-л, 1/4 (41.8 ... - Фото 1
    1-к кв. Новосибирская область, Новосибирск Лебедевский кв-л, 1/4 (41.8 ... - Фото 2
    1-комнатная квартира, общая площадь 41м²

    Обмен квартиры на новую. Предложение от застройщика. Звоните, мы вам все подробно расскажем Просторная 1-комн. квартира с предчистовой отделкой в ЖК Лебедевский на 7 этаже. Общая площадь: 41.8 кв.м. Высота потолков 2.82 м. Дом монолитный, многоподъездный,...
    • 41 м²
    • 1-ком
    • 7/9 эт.
    • монолит
    7 300 000 Р
    Агент
    +7 (958) Показать номер
    Посмотреть контакты
    2-к кв. Новосибирская область, Новосибирск Гренландия жилой комплекс ... - Фото 1
    2-к кв. Новосибирская область, Новосибирск Гренландия жилой комплекс ... - Фото 2
    2-комнатная квартира, общая площадь 63м²

    Продаётся 2-комнатная квартира в строящемся доме (Дом 5), срок сдачи: III-кв. 2026, общей площадью 63.6 кв.м., на 11 этаже. Новый жилой комплекс Гренландия от Группы компаний Союзасположен в Калининском районе Новосибирска на ул. Тюленина.
    • 63 м²
    • 2-ком
    • 11/15 эт.
    • монолит
    7 250 000 Р
    Агент
    +7 (994) Показать номер
    Посмотреть контакты

    Не нашли подходящего объявления?

    Оставьте заявку, и наши риэлторы подберут квартиру в новостройке в районе Новосибирска

    (0)