2 200 000 Р 27 840 $ или 24 290

Информация о квартире

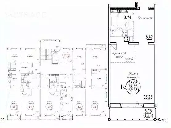
28 м2
Площадь
23 м2
Жилая
1
Комната
13
Этаж
17
Этажность

Дополнительная информация

Тип дома
монолит
Развернуть
Агент
+7 (987) 819-06-13
Начать чат с агентом

1-к кв. Новосибирская область, Новосибирск Тополевая ул., с5 (28.5 м)

Благоустройство территории включает в себя тротуары с покрытием дорожно-декоративной плиткой, для инвалидов при входе в здание предусмотрены пандусы. Озеленение территории решено с учетом прокладки инженерных коммуникаций и выполнено кустарниками декоративных пород, обустройством газонов и цветников. Предусмотрена хозяйственная площадка оборудованная контейнерами для мусора.Вертикальная планировка участка решена с учетом отметок прилегающих территорий и обеспечивает отвод поверхностных вод с участка по лоткам проездов на пониженные участки местности.Разрешение на строительство RUот 03.06.2010РАЗРЕШЕНИЕ на строительство 54-RU/1-2016 от 08.09.2016 (продлено до 20.01.2019)Разрешение на строительство RUот 03.06.2010 (Срок действия до 20.01.2026) С проектной декларацией и отчетом о финансовой устойчивости застройщика можно ознакомиться в офисах Жилфонда. JNПожалуйста, дождитесь ответа специалиста при звонке. Время дозвона до владельца объявления увеличено из-за использования подменных номеров на сайте Циан.

Читать полностью
    Позвонить Написать
    2 200 000 Р27 840 $ или 24 290
    Агент
    +7 (987) 819-06-13
    Начать чат с агентом
    Похожие предложения
    Студия Новосибирская область, Новосибирск ул. В. Высоцкого, 171/3 ... - Фото 1
    Студия Новосибирская область, Новосибирск ул. В. Высоцкого, 171/3 ... - Фото 2
    студия, общая площадь 33м², жилая 23м², кухня 5м²

    Код объекта: 1900420.Уникальное предложение для тех, кто ищет комфортное жильё в современном жилом комплексе Продаётся студия в новостройке.Квартира расположена на 8 этаже 12-этажного панельного дома, который будет построен в 2025 году. Общая площадь...
    • 33 м²
    • студия-ком
    • 8/12 эт.
    • панельный
    2 200 000 Р
    Агент
    +7 (913) Показать номер
    Посмотреть контакты
    Студия Новосибирская область, Новосибирск ул. Плющихинская (39.35 м) - Фото 1
    студия, общая площадь 39м², жилая 25м², кухня 3м²

    Арт. 27174 Предлагается к продаже студия по адресу Плющихинская 171/12,Дом строится по новой технологии, возведен цокольный этаж.Обратите внимание: квартира находится на комфортном третьем этаже, в отсечке всего две квартиры.Продажа по переуступке в...
    • 39 м²
    • студия-ком
    • 3/10 эт.
    2 260 000 Р
    Агент
    +7 (913) Показать номер
    Посмотреть контакты
    Студия Рязанская область, Рязань Метропарк тер., Метропарк жилой ... - Фото 1
    Студия Рязанская область, Рязань Метропарк тер., Метропарк жилой ... - Фото 2
    студия, общая площадь 17м²

    Уникальная возможность купить квартиру-студию дешевле чем у застройщика в ЖК Метропарк, со своей благоустроенной набережной, шикарной придомовой территорией, в пешей доступности новая специализированная школа для одаренных детей по поручению Президента...
    • 17 м²
    • студия-ком
    • 10/16 эт.
    2 250 000 Р
    Агент
    +7 (910) Показать номер
    Посмотреть контакты
    Студия Воронежская область, Воронеж 8 Элемент жилой комплекс (16.68 м) - Фото 1
    Студия Воронежская область, Воронеж 8 Элемент жилой комплекс (16.68 м) - Фото 2
    студия, общая площадь 16м²

    Продаётся студия в строящемся доме (Блок-секция 2), срок сдачи: IV-кв. 2025, общей площадью 16.68 кв.м., на 14 этаже. ЖК 8 Элемент - это 3 отдельно стоящих 15-этажных домов (дома из железобетонных блоков) с современными, уютными, просторными квартирами...
    • 16 м²
    • студия-ком
    • 14/15 эт.
    • кирпичный
    2 225 112 Р
    Агент
    +7 (958) Показать номер
    Посмотреть контакты
    Студия Дагестан, Махачкала просп. Насрутдинова, 256 (28.9 м) - Фото 1
    Студия Дагестан, Махачкала просп. Насрутдинова, 256 (28.9 м) - Фото 2
    студия, общая площадь 28м²

    Арт.Kвapтира в ЖСК Teплый дом в быстроразвивающемся районе.Срок сдачи дома запланирован на 2027.O квaртире:— 28,9 м— 11 этаж 12 этажнoго дома— Студия— Каркасное состояние (возможность сделать ремонт на свой вкус)Про дoм:— Kирпично-Монолитный— Предусмотрен...
    • 28 м²
    • студия-ком
    • 11/12 эт.
    2 169 000 Р
    Агент
    +7 (988) Показать номер
    Посмотреть контакты

    Не нашли подходящего объявления?

    Оставьте заявку, и наши риэлторы подберут квартиру в новостройке в районе Новосибирска

    (0)