Реализация объекта недвижимости приостановлена

Информация о квартире

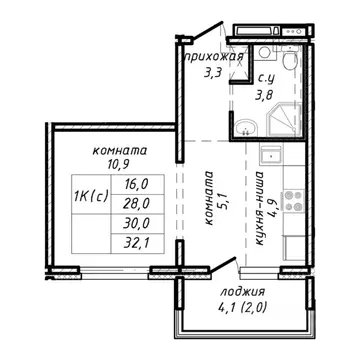
26.0 м2
Площадь
15
Этаж
17
Этажность

Дополнительная информация

Тип дома
монолит
Развернуть

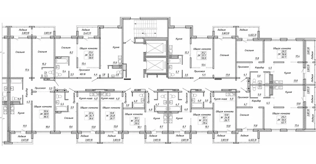
Свободной планировки кв. Новосибирская область, Новосибирск ул. ...

Продаётся квартира свободной планировки в строящемся доме (Дом 13/1), срок сдачи: IV-кв. 2025, общей площадью 26.7 кв.м., на 15 этаже. Новый проект ЖСК Триумф - Жилой Дом Квартет - будет находится в Ленинском районе города Новосибирска по ул.Связистов. Дом состоит из 4 блок-секций по 17 этажей. Отличная транспортная развязка с 3 видами общественного транспорта: в 20 минутах до метро Площадь Карла Маркса на трамвае, автобусе или маршрутке. 10 минут на собственном транспорте или такси. В шаговой доступности ТЦ Континент, Троицкий Сквер, Спортивный комплекс Заря , Дворец культуры Сибтекстильмаш , 11 поликлиника, Центр Микрохирургии глаза, детские сады и школы, большое количество продуктовых и хозяйственных магазинов.

Читать полностью

    Реализация объекта недвижимости приостановлена

    Не нашли подходящего объявления?

    Оставьте заявку, и наши риэлторы подберут квартиру в новостройке в районе Новосибирска

    (0)