Реализация объекта недвижимости приостановлена

Информация о квартире

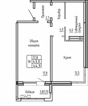
41.0 м2
Площадь
1
Комната
5
Этаж
14
Этажность

Дополнительная информация

Тип дома
монолит
Развернуть

1-к кв. Новосибирская область, Новосибирск Самоцветы жилой комплекс ...

Жилой комплекс Самоцветы - это объединенная территория закрытых дворов на 11,2 Га. В проект входят 17 жилых домов, школа, детский сад, стоянки открытого типа и многоуровневый гаражный бокс.Жилой комплекс Самоцветы — это уникальный подход планирования дворовой территории и концептуально - новое пространство. В ЖК Самоцветы запроектированы коммерческие помещения: под кафе, рестораны, супермаркеты, магазины и медицинские центры. Каждая очередь строительства ЖК Самоцветы имеет свое уникальное название в честь горных пород России.Жилой комплекс Самоцветыасположен по улице Большая , Ленинского района, города Новосибирска. Вблизи жилого комплекса расположены кафе, продуктовые и строительные магазины, аптеки, а также торговый центр в котором находятся крупный продуктовый магазин, салоны красоты, сервисные центры и др. А в радиусе 2х км расположились тренажерные залы и большое обилие магазинов способных закрыть любые потребности.

Читать полностью

    Реализация объекта недвижимости приостановлена

    Не нашли подходящего объявления?

    Оставьте заявку, и наши риэлторы подберут квартиру в новостройке в районе Новосибирска

    (0)