 
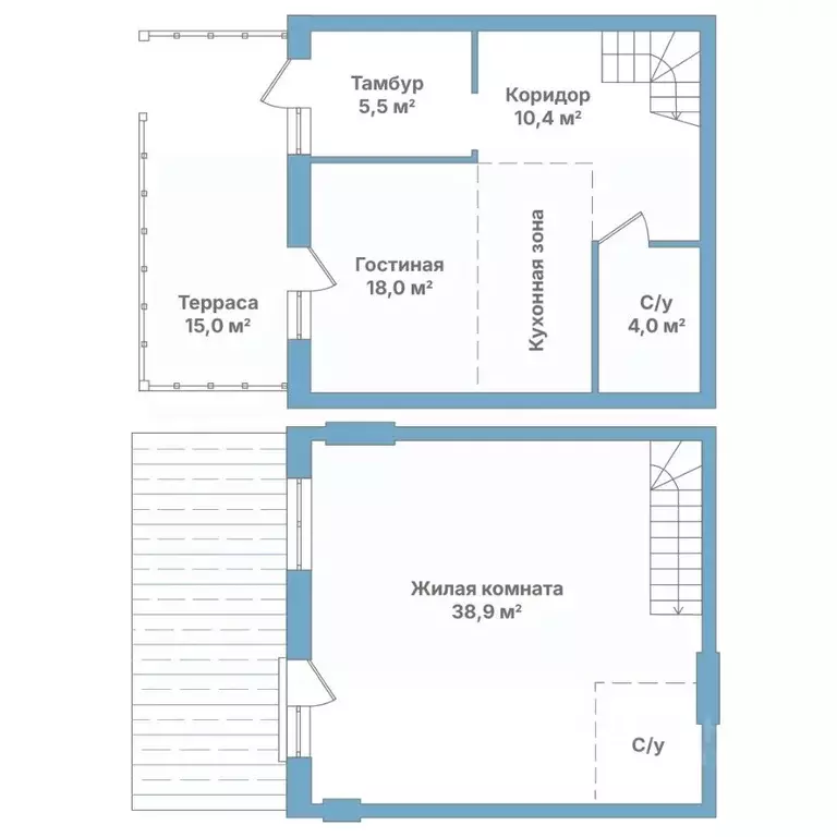
										ОБЪЕКТ ПОДХОДИТ ПОД СЕЛЬСКУЮ ИПОТЕКУ Ваш идеальный загородный дом ждет вас Этот стильный и современный таунхаус площадью 82.9 кв. м расположен в живописной местности. На первом этаже просторная кухня-гостиная, которая станет идеальным местом для встречи с родственниками и друзьями. Также на этом уровне находится санузел с душем. На втором этаже расположены две уютные спальни — одна из них детская, а также второй санузел для удобства. Все для комфортного проживания с теплоизоляцией, обеспечиваемой монолитными железобетонными перекрытиями и теплым полом. Благодаря газовому-электрическому котлу вы навсегда забудете об отключениях горячей воды и отопления — всё регулируется самостоятельно. Кроме того, окна обеспечивают великолепный вид на закаты, а уютная площадка на террасе уже готова для Вашего отличного время препровождения, гриля, шашлыка и барбекю. Идеальное место для вечерних посиделок с семьей и друзьями Вы сможете насладиться жизнью за пределами города. Не упустите шанс стать владельцем этого замечательного таунхауса Звоните и записывайтесь на просмотр уже сегодня Дополнительно оплачивается комиссия с покупателя
Для того, чтобы купить квартирутаунхаус по адресу: Октябрьский, Весенняя улица, 60/5, позвоните по телефону +7 (913) 891-26-24. Торопитесь! Объявление №50016498637 о продаже -1-комнатного таунхауса опубликовано 27 октября 2025.
 
								 
											
                                                                         
											
                                                                         
											
                                                                         
											
                                                                         
											
                                                                        Оставьте заявку, и наши риэлторы подберут таунхаус в районе Октябрьского
