2 200 000 Р 28 930 $ или 24 550

Информация о квартире

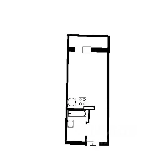
39.5 м2
Площадь
29.2 м2
Жилая
4.8 м2
Кухня
2
Комнаты
1
Этаж
2
Этажность
29.2 м2
Площадь комнат
1970
Построен

Состояние и оснащение

Тип санузла
совмещенный

Дополнительная информация

Тип дома
монолит
Тип комнат
раздельные
Тип продажи
альтернатива
Собственников
1

Оснащённость

Наличие интернета
подключен
Телефон
подключен
Развернуть
Агент
Денис Наильевич Ихсанов
+7 (965) 828-83-61
Начать чат с агентом

Продажа квартиры, Каргат, Каргатский район, ул. Крестьянская

2 комн. квартира по ул. Крестьянская. Общей площадью: 39.50 кв.м.

В центральной части города продается двухкомнатная квартира на первом этаже двухэтажного блочного дома. Квартира имеет изолированную планировку.
Квартира очень теплая!
В квартире заменена сантехника(полипропилен), пластиковые окна, железная дверь.
В пользовании небольшой земельный участок.
В пешей доступности Школа, Детский сад, Магазины, Остановка общественного транспорта.
В чистой продаже, зарегистрированных лиц нет. Приглашаем к просмотру!



Возможен обмен на вашу недвижимость. Возможна продажа в рассрочку.

При звонке, пожалуйста, сообщите номер варианта -
JV

Читать полностью

    Для того, чтобы купить двухкомнатную квартиру по адресу: Каргат, ул. Крестьянская, 16, позвоните по телефону +7 (965) 828-83-61. Торопитесь! Объявление №345390493 о продаже двухкомнатной квартиры опубликовано Сегодня.

    Позвонить Написать
    2 200 000 Р28 930 $ или 24 550
    Агент
    Денис Наильевич Ихсанов
    +7 (965) 828-83-61
    Начать чат с агентом
    Похожие предложения
    Продажа квартиры, Каргат, Каргатский район, ул. Коммунистическая - Фото 1
    Продажа квартиры, Каргат, Каргатский район, ул. Коммунистическая - Фото 2
    Продажа квартиры, Каргат, Каргатский район, ул. Коммунистическая - Фото 3
    Продажа квартиры, Каргат, Каргатский район, ул. Коммунистическая - Фото 4
    Продажа квартиры, Каргат, Каргатский район, ул. Коммунистическая - Фото 5
    Продажа квартиры, Каргат, Каргатский район, ул. Коммунистическая - Фото 6
    Продажа квартиры, Каргат, Каргатский район, ул. Коммунистическая - Фото 7
    Продажа квартиры, Каргат, Каргатский район, ул. Коммунистическая - Фото 8
    Продажа квартиры, Каргат, Каргатский район, ул. Коммунистическая - Фото 9
    Продажа квартиры, Каргат, Каргатский район, ул. Коммунистическая - Фото 10
    Продажа квартиры, Каргат, Каргатский район, ул. Коммунистическая - Фото 11
    Продажа квартиры, Каргат, Каргатский район, ул. Коммунистическая - Фото 12
    Продажа квартиры, Каргат, Каргатский район, ул. Коммунистическая - Фото 13
    Продажа квартиры, Каргат, Каргатский район, ул. Коммунистическая - Фото 14
    Продажа квартиры, Каргат, Каргатский район, ул. Коммунистическая - Фото 15
    Продажа квартиры, Каргат, Каргатский район, ул. Коммунистическая - Фото 16
    Продажа квартиры, Каргат, Каргатский район, ул. Коммунистическая - Фото 17
    Продажа квартиры, Каргат, Каргатский район, ул. Коммунистическая - Фото 18
    Продажа квартиры, Каргат, Каргатский район, ул. Коммунистическая - Фото 19
    Продажа квартиры, Каргат, Каргатский район, ул. Коммунистическая - Фото 20
    3-комнатная квартира, общая площадь 50.4м², жилая 24.2м², кухня 6м²

    3 комн. квартира по ул. Коммунистическая. Общей площадью: 50.40 кв.м. В продаже трехкомнатная квартира. В квартире выполнен качественный ремонт с использованием современных материалов. Из окон открывается красивый вид на зеленый двор, что создает...
    • 50.4 м²
    • 3-ком
    • 2/2 эт.
    • монолитно-кирпичный
    2 100 000 Р
    Агент
    +7 (960) Показать номер
    Посмотреть контакты
    1-к кв. Новосибирская область, Новосибирск ул. Николая Грицюка, 5 ... - Фото 1
    1-к кв. Новосибирская область, Новосибирск ул. Николая Грицюка, 5 ... - Фото 2
    1-комнатная квартира, общая площадь 20м²

    Квартира-Студия идеально подойдет для тех, кто любит тишину А в своё свободное время будете наслаждаться природой и свежим воздухом.Рядом расположена остановка общественного транспорта. Для автовладельцев имеется парковка возле дома.Квартира в хорошем...
    • 20 м²
    • 1-ком
    • 2/3 эт.
    • монолит
    2 300 000 Р
    Агент
    +7 (981) Показать номер
    Посмотреть контакты
    1-к кв. Новосибирская область, Новосибирск ул. Твардовского, 22/5 ... - Фото 1
    1-к кв. Новосибирская область, Новосибирск ул. Твардовского, 22/5 ... - Фото 2
    1-комнатная квартира, общая площадь 19м², жилая 10м², кухня 3м²

    Арт - 27825 Уютная квартира в отличном состоянии. Лоджия застеклена и утеплена , используется круглый год На полу - ламинат . Показ в любое время по договорённости. Отличная транспортная развязка. В шаговой доступности магазины, детский сад и школа...
    • 19 м²
    • 1-ком
    • 9/17 эт.
    2 270 000 Р
    Агент
    +7 (913) Показать номер
    Посмотреть контакты
    Студия Новосибирская область, Новосибирск ул. Твардовского, 22/1 (19.0 ... - Фото 1
    Студия Новосибирская область, Новосибирск ул. Твардовского, 22/1 (19.0 ... - Фото 2
    студия, общая площадь 19м²

    В продаже студия в прекрасном доме, недалеко от остановки общественного транспорта. Рядом с домом магазины аптеки пункты выдачи.В квартире остается кухня с плитой и встроенной стиральной машиной.Квартира свободна для заезда, ключи в день сделки.Маткап...
    • 19 м²
    • студия-ком
    • 7/17 эт.
    2 250 000 Р
    Агент
    +7 (983) Показать номер
    Посмотреть контакты
    Продажа квартиры, Новосибирск, ул. Оловозаводская - Фото 1
    Продажа квартиры, Новосибирск, ул. Оловозаводская - Фото 2
    Продажа квартиры, Новосибирск, ул. Оловозаводская - Фото 3
    Продажа квартиры, Новосибирск, ул. Оловозаводская - Фото 4
    Продажа квартиры, Новосибирск, ул. Оловозаводская - Фото 5
    Продажа квартиры, Новосибирск, ул. Оловозаводская - Фото 6
    Продажа квартиры, Новосибирск, ул. Оловозаводская - Фото 7
    1-комнатная квартира, общая площадь 34.1м², жилая 17м², кухня 8.7м²

    В квартире установлены пластиковые окна, в остальном требуется косметический ремонт.
    • 34.1 м²
    • 1-ком
    • 1/9 эт.
    • панельный
    2 200 000 Р
    Агент
    +7 (996) Показать номер
    Посмотреть контакты

    Не нашли подходящего объявления?

    Оставьте заявку, и наши риэлторы подберут квартиру в районе Каргата

    (0)