Реализация объекта недвижимости приостановлена

Информация о коттедже

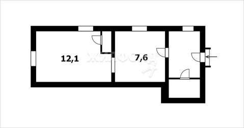
52.0 м2
Площадь
7.0 cоток
Участок

Дополнительная информация

Дом продаётся вместе с участком
есть
Развернуть

Дом в Карасук, улица Дзержинского (52.9 м)

Дом по ул. Дзержинского. Общей площадью: 52.90 кв.м. На уютной и тихой улице им. Дзержинского продается дом площадью 52,9 кв.м. Отличный вариант для проживания небольшой семьи или дачи в черте города В доме большая веранда, кладовая, прихожая, кухня и две комнаты. Отопление печное. Проведены вода и канализация, установлен водонагреватель, душевая кабина, окна ПВХ. Новая медная электропроводка, кровля перекрыта металлочерепицей. Дом утеплен и облицован сайдингом.Установлена входная металлическая дверь. Для хранения запасов на зиму, есть глубокий погреб, облицованный кирпичом. Участок 7 соток. В шаговой доступности школа, магазины, автобусные остановки.Для организации показа, просьба звонить заранее. Сотрудничество с агентством недвижимости, обеспечивает Вам юридическую прозрачность сделки.Возможен обмен на вашу недвижимость.При звонке, пожалуйста, сообщите номер варианта - JV.

Читать полностью

    Реализация объекта недвижимости приостановлена

    Не нашли подходящего объявления?

    Оставьте заявку, и наши риэлторы подберут купить дом в районе Карасука

    (0)