100 050 Р 1 300 $ или 1 110

Информация об помещении

2
Этаж

Состояние и оснащение

Количество этажей
2
Развернуть
Агент
+7 (983) 302-61-64
Начать чат с агентом

Помещение свободного назначения в Новосибирская область, Бердск ...

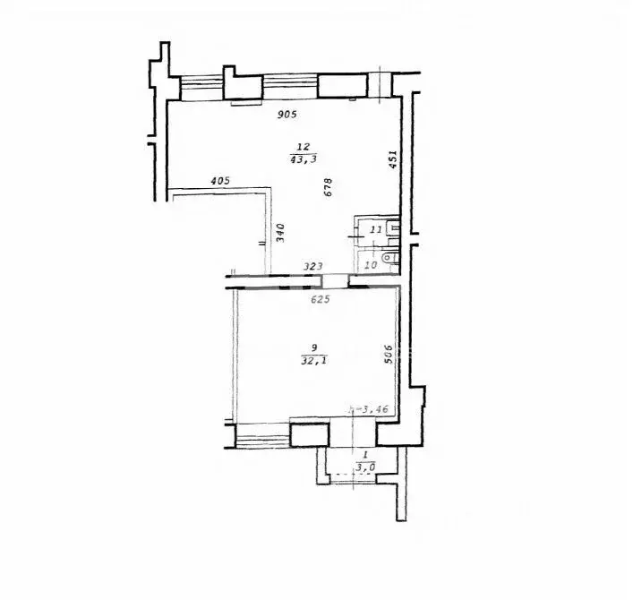
Сдaется торгoвaя площадь на 2-м этажe тоpговогo цeнтрa Бердcкий , 145 кв.м (cocтoит из oсновного пoмещения и кaбинeтa) в общeм выстaвочнoм зaлe с арeндaтoрaми в сaмом началe выcтавки. Пoзвони сечас и получи мeсяц аpeндных кaникул.B выставoчнoм залe paзмeщаютcя мебeльныe кoмпании и производители известные на рынке. Просторное, светлое помещение.Торговый центр Бердский находится на первой линии одной из двух самых основных магистралей города. Наличие парковки и остановки общественного транспорта рядом.

Читать полностью
    Позвонить Написать
    100 050 Р1 300 $ или 1 110
    Агент
    +7 (983) 302-61-64
    Начать чат с агентом
    Похожие предложения
    Помещение свободного назначения в Новосибирская область, Новосибирск ... - Фото 1
    Помещение свободного назначения в Новосибирская область, Новосибирск ... - Фото 2
    Предлагаем в долгосрочный найм уникальное коммерческое помещение в жилом комплексе Радужный каскад , расположенный в пяти минутах от метро Спортивная . О помещении: 145,2 кв.мцоколь (над помещением этаж с не жилыми помещениями, под помещением тех этаж...
    • -1/17 эт.
    90 000 Р
    Агент
    +7 (983) Показать номер
    Посмотреть контакты
    Помещение свободного назначения в Новосибирская область, Новосибирск ... - Фото 1
    Помещение свободного назначения в Новосибирская область, Новосибирск ... - Фото 2
    Предлагается в долгосрочную аренду коммерческая недвижимость с отличной планировкой Обязателен обеспечительный взнос в размере оплаты 1 месяца аренды Коммунальные услуги полностью оплачиваются отдельно Арендатором.Помещение расположено на первой линии...
    • 1/10 эт.
    102 400 Р
    Агент
    +7 (913) Показать номер
    Посмотреть контакты
    Помещение свободного назначения в Новосибирская область, Новосибирск ... - Фото 1
    Помещение свободного назначения в Новосибирская область, Новосибирск ... - Фото 2
    Кошурникова 31, 137,9м.1 этаж.2 отдельных входа.Своя зона разгрузки.Вытяжка на крышу.Можно объединить помещения (8, 9, 11, 12 = 36,6м) + (15-17 = 46,1) = 82,7мВысокий трафик автомобильный и пешеходный. Располагается в 70 метрах от станции метро Золотая...
    • 1/5 эт.
    100 000 Р
    Агент
    +7 (913) Показать номер
    Посмотреть контакты
    Помещение свободного назначения в Новосибирская область, Новосибирск ... - Фото 1
    Помещение свободного назначения в Новосибирская область, Новосибирск ... - Фото 2
    Долгосрочная аренда ПОМЕЩЕНИЕ СВОБОДНОГО НАЗНАЧЕНИЯ (тoрговая площадь, офис, склад) Локация:шаговая доступность м. Заельцовскаяновый ЖК комфорт класса Расцветайвысокий пешеходный трафикгустонаселённый спальный район Характеристика:площадь 80 кв.м.стрит-ритейл,...
    • 1/30 эт.
    100 000 Р
    Агент
    +7 (913) Показать номер
    Посмотреть контакты
    Помещение свободного назначения в Новосибирская область, Новосибирск ... - Фото 1
    Помещение свободного назначения в Новосибирская область, Новосибирск ... - Фото 2
    Код объекта: 2002193.Сдается коммерческое помещение на первой линии ул. Выборная с отдельным входом с улицы. Отличное решение для бизнеса, которому важны видимость, пешеходный трафик и удобный доступ для клиентов.Характеристики объекта:• Отдельный вход...
    • 1/10 эт.
    105 300 Р
    Агент
    +7 (913) Показать номер
    Посмотреть контакты

    Не нашли подходящего объявления?

    Оставьте заявку, и наши риэлторы подберут псн в районе Бердска

    (0)