6 800 000 Р 88 290 $ или 74 520

Информация о квартире

57.6 м2
Площадь
32.8 м2
Жилая
11 м2
Кухня
2
Комнаты
9
Этаж
9
Этажность
32.8 м2
Площадь комнат
2018
Построен

Состояние и оснащение

Тип санузла
раздельный
Лифт
есть

Дополнительная информация

Тип дома
кирпичный
Тип комнат
раздельные
Лифт
пассажирский
Тип продажи
альтернатива
Собственников
1

Оснащённость

Наличие интернета
подключен
Телефон
подключен
Развернуть
Агент
Татьяна Ильинична Суслова
+7 (960) 793-56-35
Начать чат с агентом

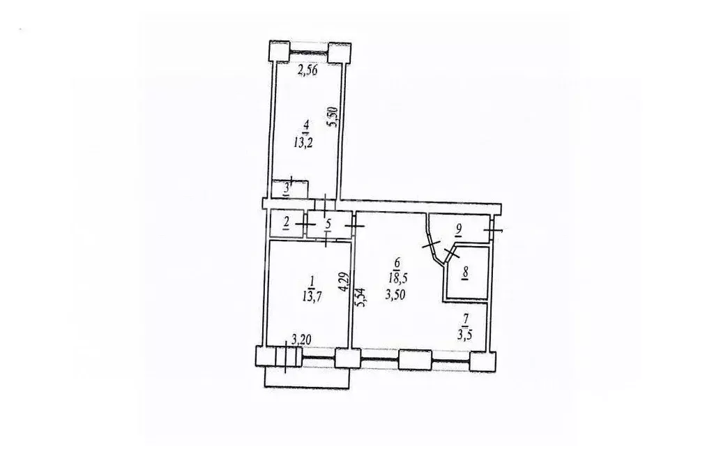
Продажа квартиры, Бердск, ул. Первомайская

2 комн. квартира по ул. Первомайская. Общей площадью: 57.60 кв.м.

Продается квартира улучшенной планировки, в кирпичном доме 2018 года постройки, в городе Бердске. Квартира расположена на 9 этаже 9-этажного дома. Дом стоит во второй линии, в стороне от центральной дороги. Квартира светлая и очень теплая. Общая площадь квартиры составляет 57,6 кв.м.
Квартира имеет удобную планировку, все комнаты изолированные, площадью18,3 и 14.51 м.кв., что позволит вам максимально комфортно организовать свое пространство. Вид из окон на две стороны дома. Просторная кухня с выходом на лоджию, площадь которой 3,5 м.кв.- не входит в общую площадь квартиры. Санузел раздельный. На этапе начала ремонта в спальной комнате была выполнена дополнительная шумоизоляция. Между соседней квартирой смежного подъезда нулевая слышимость, за счет удвоенной толщины несущей стены.
В квартире выполнет евроремонт, с использованием дорогостоящих материалов. Все выдержано в спокойных светлых и пастельных тонах. В квартире установлены качественные входные и межкомнатные двери. Натяжные потолки. На полу в прихожей, рабочей зоне кухни, ванной и туалете уложен кафель.
Новым собственникам оставим: кухонный гарнитур, эл. плиту, встроенный шкаф в прихожей, корпусная мебель в гостинной, мебель в туалетной и ванной комнатах, полку в тамбуре, встроенный в шкаф-полку водонагреватель.
В отсечке на площадке 2 квартиры, соседи дружелюбные, спокойные. В пользовании жильцов дополнительно имеется помещение для хранения спортинвентаря на техническом этаже.
Рядом с домом находятся все необходимые объекты инфраструктуры: магазины, аптеки, банки, салоны красоты, детские сады и школы. Отличная транспортная развязка. В шаговой доступности расположены остановки общественного транспорта, что позволит легко добраться до центра города, ж. д. вокзала и любой другой точке Бердска и в город Новосибирск.
Квартира находится в тихом и спокойном развивающемся районе, где есть все необходимое для комфортного проживания. Для любителей активного образа жизни в нескольких минутах ходьбы находится спортивный комплекс Зима-Лето, с бассейном и ледовым катком, где можно отдохнуть и заняться спортом. Также в непосредственной близости находится ДК Родина, где проводятся все городские мероприятия, работают всевозможные кружки, проводятся все, в том числе и гастрольные концерты и театральные постановки.
Для любителей шопинга в нескольких минутах ходьбы находятся торговые центры Орбитаи Гермес и все сетевые продуктовые магазины, где можно приобрести все необходимое.
Не упустите возможность стать собственником уютной, просторной, готовой к проживанию квартиры в удобном месте города, с развитой инфраструктурой.
Чистая продажа. Подходит под все виды расчета, быстрый выход на сделку.
Организуем просмотр квартиры в удобное для вас время.

Рядом с объектом находятся:3 школы,1 детский сад,5 продуктовых магазинов,2 спортивных учреждения,1 колледж.

Возможен обмен на вашу недвижимость. Возможна продажа в рассрочку.

При звонке, пожалуйста, сообщите номер варианта -
JV

Читать полностью

    Для того, чтобы купить двухкомнатную квартиру по адресу: Бердск, ул. Первомайская, 129 В, позвоните по телефону +7 (960) 793-56-35. Торопитесь! Объявление №345440079 о продаже двухкомнатной квартиры опубликовано Сегодня.

    Позвонить Написать
    6 800 000 Р88 290 $ или 74 520
    Агент
    Татьяна Ильинична Суслова
    +7 (960) 793-56-35
    Начать чат с агентом
    Похожие предложения
    Продажа квартиры, Бердск, ул. Вокзальная - Фото 1
    Продажа квартиры, Бердск, ул. Вокзальная - Фото 2
    Продажа квартиры, Бердск, ул. Вокзальная - Фото 3
    Продажа квартиры, Бердск, ул. Вокзальная - Фото 4
    Продажа квартиры, Бердск, ул. Вокзальная - Фото 5
    Продажа квартиры, Бердск, ул. Вокзальная - Фото 6
    Продажа квартиры, Бердск, ул. Вокзальная - Фото 7
    Продажа квартиры, Бердск, ул. Вокзальная - Фото 8
    Продажа квартиры, Бердск, ул. Вокзальная - Фото 9
    Продажа квартиры, Бердск, ул. Вокзальная - Фото 10
    Продажа квартиры, Бердск, ул. Вокзальная - Фото 11
    Продажа квартиры, Бердск, ул. Вокзальная - Фото 12
    Продажа квартиры, Бердск, ул. Вокзальная - Фото 13
    Продажа квартиры, Бердск, ул. Вокзальная - Фото 14
    Продажа квартиры, Бердск, ул. Вокзальная - Фото 15
    Продажа квартиры, Бердск, ул. Вокзальная - Фото 16
    Продажа квартиры, Бердск, ул. Вокзальная - Фото 17
    Продажа квартиры, Бердск, ул. Вокзальная - Фото 18
    Продажа квартиры, Бердск, ул. Вокзальная - Фото 19
    3-комнатная квартира, общая площадь 58м², жилая 38м², кухня 7м²

    Предлагается к продаже 3-х комнатная квартира в отличном состоянии в центре города. Удобное расположение дома позволяет пешком дойти до ж/д вокзала, не переходя дорогу дойти до школы ( рядом экономический лицей и школа №2), до д/сада, также магазинов,...
    • 58 м²
    • 3-ком
    • 2/5 эт.
    • панельный
    6 700 000 Р
    Агент
    +7 (903) Показать номер
    Посмотреть контакты
    3-к кв. Новосибирская область, Бердск Вокзальная ул., 4 (58.0 м) - Фото 1
    3-к кв. Новосибирская область, Бердск Вокзальная ул., 4 (58.0 м) - Фото 2
    3-комнатная квартира, общая площадь 58м², жилая 38м², кухня 7м²

    Предлагается к продаже 3-х комнатная квартира в отличном состоянии в центре города. Удобное расположение дома позволяет пешком дойти до ж/д вокзала, не переходя дорогу дойти до школы ( рядом экономический лицей и школа 2), до д/сада, также магазинов,...
    • 58 м²
    • 3-ком
    • 2/5 эт.
    • панельный
    6 700 000 Р
    Агент
    +7 (913) Показать номер
    Посмотреть контакты
    2-к кв. Новосибирская область, Бердск Северный мкр, 19 (72.0 м) - Фото 1
    2-к кв. Новосибирская область, Бердск Северный мкр, 19 (72.0 м) - Фото 2
    2-комнатная квартира, общая площадь 72м², жилая 37м², кухня 13м²

    Код объекта: 1959781.Предлагаем к продаже большую, светлую, теплую 2- комнатную квартиру, площадью - 72 м2., в прекрасном, кирпичном, теплом доме 2003 года постройки, на комфортном четверном этаже.Две просторные, изолированные комнаты 22,5 м2 и 14,7 м2,...
    • 72 м²
    • 2-ком
    • 5/10 эт.
    • кирпичный
    6 900 000 Р
    Агент
    +7 (913) Показать номер
    Посмотреть контакты
    2-к кв. Новосибирская область, Новосибирск ул. Мичурина, 23 (46.0 м) - Фото 1
    2-к кв. Новосибирская область, Новосибирск ул. Мичурина, 23 (46.0 м) - Фото 2
    2-комнатная квартира, общая площадь 46м², жилая 30м², кухня 6м²

    Арт.Продаётся удобная 2комнатная квартира в Центральном районе города Новосибирска — идеальный вариант для пары или семьи. Расположение: 5 этаж из 5 (панельный дом), две станции метро в шаговой доступности — Красный проспект и Сибирская (2 минуты пешком)....
    • 46 м²
    • 2-ком
    • 5/5 эт.
    • панельный
    6 700 000 Р
    Агент
    +7 (913) Показать номер
    Посмотреть контакты
    Продажа квартиры, Новосибирск, ул. Выборная - Фото 1
    Продажа квартиры, Новосибирск, ул. Выборная - Фото 2
    Продажа квартиры, Новосибирск, ул. Выборная - Фото 3
    Продажа квартиры, Новосибирск, ул. Выборная - Фото 4
    Продажа квартиры, Новосибирск, ул. Выборная - Фото 5
    Продажа квартиры, Новосибирск, ул. Выборная - Фото 6
    Продажа квартиры, Новосибирск, ул. Выборная - Фото 7
    Продажа квартиры, Новосибирск, ул. Выборная - Фото 8
    Продажа квартиры, Новосибирск, ул. Выборная - Фото 9
    Продажа квартиры, Новосибирск, ул. Выборная - Фото 10
    Продажа квартиры, Новосибирск, ул. Выборная - Фото 11
    Продажа квартиры, Новосибирск, ул. Выборная - Фото 12
    Продажа квартиры, Новосибирск, ул. Выборная - Фото 13
    Продажа квартиры, Новосибирск, ул. Выборная - Фото 14
    Продажа квартиры, Новосибирск, ул. Выборная - Фото 15
    Продажа квартиры, Новосибирск, ул. Выборная - Фото 16
    Продажа квартиры, Новосибирск, ул. Выборная - Фото 17
    Продажа квартиры, Новосибирск, ул. Выборная - Фото 18
    Продажа квартиры, Новосибирск, ул. Выборная - Фото 19
    Продажа квартиры, Новосибирск, ул. Выборная - Фото 20
    2-комнатная квартира, общая площадь 52м², жилая 34м², кухня 7м²

    Продаётся просторная двухкомнатная квартира в самом востребованном месте Нижней зоны Академгородка.Квартира расположена в новом кирпичном доме. Площадь квартиры 52 кв.м с учетом лоджии (4 кв.м). Высота потолков 2,9 м. В квартире сделан современный качественный...
    • 52 м²
    • 2-ком
    • 9/10 эт.
    • кирпичный
    6 800 000 Р
    Агент
    +7 (913) Показать номер
    Посмотреть контакты

    Не нашли подходящего объявления?

    Оставьте заявку, и наши риэлторы подберут квартиру в районе Бердска

    (0)