11 760 000 Р 153 200 $ или 130 300

Информация о коттедже

212 м2
Площадь
1
Этажность
10 cоток
Участок

Дополнительная информация

Дом продаётся вместе с участком
есть
Развернуть
Агент
+7 (983) 006-10-37
Начать чат с агентом

Дом в Новосибирская область, Бердск Слава садовое товарищество, ул. ...

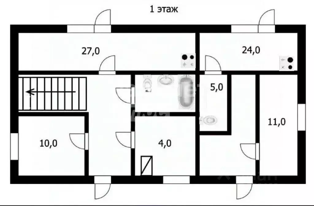
Покупай сейчас - плати потом На данный объект доступна рассрочка на выгодных условияхПредлагаем к продаже КЛАССНЫЙ 1-этажный кирпичный дом в СНТ Слава. С отличной современной планировкой, 4 просторных комнаты, трех метровые потолки, удобная терраса, и просторный гараж. Дом расположен на не проездной улице. До остановки общественного транспорта 200 м. По улице проведен газопровод ПОЛУЧЕНЫ ТЕХ УСЛОВИЯ для подключения, в обществе есть скважина общества и появилась возможность подключения центрального городского водопровода.Район, где расположено общество активно развивается и застраивается, через дорогу от общества строиться торговый центр, ЖК Морион и ЖК Бердские кварталы, рядом будет строится школа и детский сад.Документы в готовы к сделке, 1 собственник.*Электричество заведено в дом.*Рассмотрим продажу в РАССРОЧКУ.*Полное юридическое сопровождение сделки.*Помощь в получении ипотечного решения.*Звоните, с удовольствием покажем. Дополнительно оплачивается комиссия с покупателя.Код пользователя: 66630Номер в базе: 5408277

Читать полностью

    Для того, чтобы купить 1-этажный коттедж по адресу: Бердск, 14-я улица, 18, позвоните по телефону +7 (983) 006-10-37. Торопитесь! Объявление №50016680679 о продаже одноэтажного коттеджа опубликовано 22 февраля 2026.

    Позвонить Написать
    11 760 000 Р153 200 $ или 130 300
    Агент
    +7 (983) 006-10-37
    Начать чат с агентом
    Похожие предложения
    Продажа дома, Бердск, ул. Морская - Фото 1
    Продажа дома, Бердск, ул. Морская - Фото 2
    Продажа дома, Бердск, ул. Морская - Фото 3
    Продажа дома, Бердск, ул. Морская - Фото 4
    деревянный дом, 1 этаж, общая площадь 66.4м², жилая 25м², кухня 11м², кол-во комнат 6, год постройки 1973

    Дом по ул. Морская. Общей площадью: 66.40 кв.м. ЭКСКЛЮЗИВНОЕ ПРЕДЛОЖЕНИЕ !! УЧАСТОК С ВЫХОДОМ НА ПЛЯЖ ОБСКОГО МОРЯ !!ПЕРВАЯ ЛИНИЯ . Отличное санаторно-курортное место . Участок прекрасно подойдет для строительства усадьбы в экологичном месте . ...
    • 1 эт.
    • 66.4 м²
    • 15 м²
    • 6-ком
    13 000 000 Р
    Агент
    +7 (962) Показать номер
    Посмотреть контакты
    Продажа дома, Бердск, Тенистая - Фото 1
    Продажа дома, Бердск, Тенистая - Фото 2
    Продажа дома, Бердск, Тенистая - Фото 3
    Продажа дома, Бердск, Тенистая - Фото 4
    Продажа дома, Бердск, Тенистая - Фото 5
    Продажа дома, Бердск, Тенистая - Фото 6
    Продажа дома, Бердск, Тенистая - Фото 7
    Продажа дома, Бердск, Тенистая - Фото 8
    Продажа дома, Бердск, Тенистая - Фото 9
    Продажа дома, Бердск, Тенистая - Фото 10
    Продажа дома, Бердск, Тенистая - Фото 11
    Продажа дома, Бердск, Тенистая - Фото 12
    Продажа дома, Бердск, Тенистая - Фото 13
    Продажа дома, Бердск, Тенистая - Фото 14
    Продажа дома, Бердск, Тенистая - Фото 15
    Продажа дома, Бердск, Тенистая - Фото 16
    Продажа дома, Бердск, Тенистая - Фото 17
    Продажа дома, Бердск, Тенистая - Фото 18
    Продажа дома, Бердск, Тенистая - Фото 19
    Продажа дома, Бердск, Тенистая - Фото 20
    кирпичный дом, 2 этажа, общая площадь 213.7м², жилая 116.3м², кухня 43.5м², кол-во комнат 6, год постройки 1998

    1/2 дома по ул. Тенистая. Общей площадью: 213.70 кв.м. Предлагается к продаже 1.2 ДОМА (ОБЪЕКТ) с большим ПРИУСАДЕБНЫМ УЧАСТКОМ . - УДАЧНАЯ ЛОКАЦИЯ -СОВРЕМЕННОЕ ПЛАНИРОВОЧНОЕ РЕШЕНИЕ -ЦЕНТРАЛИЗОВАННАЯ ПОДАЧА ВОДЫ И ГАЗА Дом расположен в коттеджном...
    • 2 эт.
    • 213.7 м²
    • 11.8 м²
    • 6-ком
    12 000 000 Р
    Агент
    +7 (960) Показать номер
    Посмотреть контакты
    Продажа дома, Бердск, Тенистая - Фото 1
    Продажа дома, Бердск, Тенистая - Фото 2
    Продажа дома, Бердск, Тенистая - Фото 3
    Продажа дома, Бердск, Тенистая - Фото 4
    Продажа дома, Бердск, Тенистая - Фото 5
    Продажа дома, Бердск, Тенистая - Фото 6
    Продажа дома, Бердск, Тенистая - Фото 7
    Продажа дома, Бердск, Тенистая - Фото 8
    Продажа дома, Бердск, Тенистая - Фото 9
    Продажа дома, Бердск, Тенистая - Фото 10
    Продажа дома, Бердск, Тенистая - Фото 11
    Продажа дома, Бердск, Тенистая - Фото 12
    Продажа дома, Бердск, Тенистая - Фото 13
    Продажа дома, Бердск, Тенистая - Фото 14
    Продажа дома, Бердск, Тенистая - Фото 15
    Продажа дома, Бердск, Тенистая - Фото 16
    Продажа дома, Бердск, Тенистая - Фото 17
    Продажа дома, Бердск, Тенистая - Фото 18
    Продажа дома, Бердск, Тенистая - Фото 19
    Продажа дома, Бердск, Тенистая - Фото 20
    кирпичный дом, 2 этажа, общая площадь 213.7м², жилая 116.3м², кухня 43.5м², кол-во комнат 6, год постройки 1998

    1/2 дома по ул. Тенистая. Общей площадью: 213.70 кв.м. Предлагается к продаже 1.2 ДОМА (ОБЪЕКТ) с большим ПРИУСАДЕБНЫМ УЧАСТКОМ . - УДАЧНАЯ ЛОКАЦИЯ -СОВРЕМЕННОЕ ПЛАНИРОВОЧНОЕ РЕШЕНИЕ -ЦЕНТРАЛИЗОВАННАЯ ПОДАЧА ВОДЫ И ГАЗА Дом расположен в коттеджном...
    • 2 эт.
    • 213.7 м²
    • 11.8 м²
    • 6-ком
    12 000 000 Р
    Агент
    +7 (960) Показать номер
    Посмотреть контакты
    Дом в Новосибирская область, Бердск ул. Красная Сибирь, 23 (173 м) - Фото 1
    Дом в Новосибирская область, Бердск ул. Красная Сибирь, 23 (173 м) - Фото 2
    3 этажа, общая площадь 172м², участок 6 соток

    Продается уникальный и уютный дом, который станет идеальным местом для вашей семьи Этот двухэтажный дом и плюс жилой цокольный этаж предлагает все, что нужно для комфортной жизни. На первом этаже расположены просторная кухня-гостиная, где вы сможете...
    • 3 эт.
    • 172 м²
    • 6 сот.
    12 700 000 Р
    Агент
    +7 (913) Показать номер
    Посмотреть контакты
    Дом в Бердск, улица Глинки (165.7 м) - Фото 1
    Дом в Бердск, улица Глинки (165.7 м) - Фото 2
    общая площадь 165м², участок 5 соток

    Предлагается к продаже просторный Таунхаус 165 квадратов в самом центре Бердска.Стены кирпич, перекрытие плиты, внешняя отделка сайдинг.По документам объект - квартира на земельном участке .• Черновая отделка+ частично ремонт.• Цоколь с большими окнами————————...
    • 165 м²
    • 5 сот.
    12 300 000 Р
    Агент
    +7 (925) Показать номер
    Посмотреть контакты

    Не нашли подходящего объявления?

    Оставьте заявку, и наши риэлторы подберут купить дом в районе Бердска

    (0)