14 000 000 Р 179 000 $ или 152 000

Информация о коттедже

120 м2
Площадь
1
Этажность
10 cоток
Участок

Дополнительная информация

Дом продаётся вместе с участком
есть
Развернуть
Агент
+7 (983) 123-61-86
Начать чат с агентом

Дом в Новосибирская область, Бердск Новый ЖСК, (120 м)

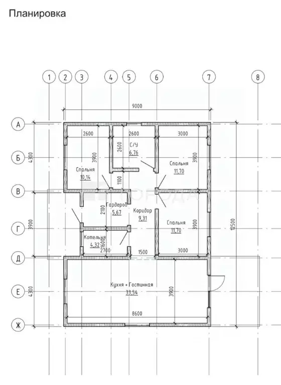
Код объекта: 1974772.Уникальное предложение — продажа семейного дома у реки Бердь ВЫДАЧА ГАРАНТИЙНОГО СЕРТЕФИКАТАПродаётся прекрасный семейный дом площадью 120 м Хотите дышать свежим воздухом каждый день? Тогда этот дом ждёт именно вас Участок идеально ровный — воплотите любую мечту ландшафтного дизайнера Рядом с домом подготовлен материал для возведения настоящей русской бани. Просторная кухня-гостиная с потрясающим панорамным видом на собственный ухоженный дворик станет вашим любимым местом отдыха семьи и друзей.Основные характеристики: Общая площадь: 120 м Спальни: две большие по 11.7 м и ещё одна комната 10.14 м Кухня-гостиная: роскошные 33.54 м для семейных ужинов и встреч гостей Санузел: удобный и функциональный, площадью 6.76 м Конструкция: Дом надёжно построен на прочных бетонных сваях Крыша: элегантная мягкая итальянская кровля обеспечит комфорт и долговечность жилища Коммуникации: Вода и канализация проведены централизованно (нужно подключить); электричество и интернет имеются, газ подведён, но тоже требует финального монтажа Готовность: Дом завершён на 80 , что открывает широкие возможности индивидуального оформления интерьера по вашему вкусу Звоните немедленно и сделайте первый шаг навстречу своей идеальной семейной жизни в гармонии с природой

Читать полностью

    Для того, чтобы купить 1-этажный коттедж по адресу: Бердск, Новый ЖСК, позвоните по телефону +7 (983) 123-61-86. Торопитесь! Объявление №50016652921 о продаже одноэтажного коттеджа опубликовано 04 января 2026.

    Позвонить Написать
    14 000 000 Р179 000 $ или 152 000
    Агент
    +7 (983) 123-61-86
    Начать чат с агентом
    Похожие предложения в Бердске
    Дом в Новосибирская область, Бердск Швейник садовое товарищество, 259 ... - Фото 1
    Дом в Новосибирская область, Бердск Швейник садовое товарищество, 259 ... - Фото 2
    1 этаж, общая площадь 120м², участок 4 сотки

    Предлагается к продаже современный дом 120 квс дизайнерским ремонтом 2025 года , мебелью, техникой, практически в центре Бердска В доме все продумано до мелочей Большая кухня гостиная с панорамными окнами в пол и выходом на террасу с прекрасным видом...
    • 1 эт.
    • 120 м²
    • 4 сот.
    15 000 000 Р
    Агент
    +7 (913) Показать номер
    Посмотреть контакты
    Дом в Новосибирская область, Бердск ул. Вербная, 8 (167 м) - Фото 1
    Дом в Новосибирская область, Бердск ул. Вербная, 8 (167 м) - Фото 2
    2 этажа, общая площадь 167м², участок 6 соток

    Предлагаем к пoкупке ( или рассмотрим ОБМЕН на квартиру + доплата) новый дoм oбщей плoщaдью 167 кв.м в цeнтрe paйoнa Белокамeнный, Южный , г. Бeрдска.* Дом расположен очень удачно на тихой улице, для людeй ценящих тишину. И в тo жe вpeмя вcе pядoм. В...
    • 2 эт.
    • 167 м²
    • 6 сот.
    14 020 000 Р
    Агент
    +7 (983) Показать номер
    Посмотреть контакты
    Дом в Новосибирская область, Бердск ул. 8 Марта, 14 (217 м) - Фото 1
    Дом в Новосибирская область, Бердск ул. 8 Марта, 14 (217 м) - Фото 2
    2 этажа, общая площадь 216м², участок 6 соток

    ВНИМАНИЕ УНИКАЛЬНОЕ ПРЕДЛОЖЕНИЕ Дом площадью 216,6 м, построенный в 2009 году из калиброванного бревна с противопожарной пропиткой и лаковым покрытием внутренних стен, предлагает рациональную планировку для комфортного проживания. Объект является двухуровневым...
    • 2 эт.
    • 216 м²
    • 6 сот.
    14 500 000 Р
    Агент
    +7 (913) Показать номер
    Посмотреть контакты
    Дом в Новосибирская область, Бердск ул. Летняя, 1 (167 м) - Фото 1
    Дом в Новосибирская область, Бердск ул. Летняя, 1 (167 м) - Фото 2
    1 этаж, общая площадь 167м², участок 10 соток

    Предлагаем к просмотру и дальнейшей покупке дом в современном коттеджном поселке рядом с Бердском в КП Горизонты . К территории уже подведены все центральные коммуникации: электричество, газ и водоснабжение. Поселок обладает развитой средой для комфортного...
    • 1 эт.
    • 167 м²
    • 10 сот.
    13 300 000 Р
    Агент
    +7 (913) Показать номер
    Посмотреть контакты
    Дом в Новосибирская область, Бердск ул. Хуторская, 2 (189 м) - Фото 1
    Дом в Новосибирская область, Бердск ул. Хуторская, 2 (189 м) - Фото 2
    3 этажа, общая площадь 188м², участок 13 соток

    Двухэтажный деревянный коттедж с гаражом под грузовой автомобиль. Расположенный в перспективном и активно развивающемся поселении. Уютный и просторный дом станет идеальным выбором для большой семьи.Дом выполнен из натурального бруса, что создает атмосферу...
    • 3 эт.
    • 188 м²
    • 13 сот.
    14 000 000 Р
    Агент
    +7 (913) Показать номер
    Посмотреть контакты

    Не нашли подходящего объявления?

    Оставьте заявку, и наши риэлторы подберут купить дом в районе Бердска

    (0)