4 000 000 Р 49 350 $ или 42 590

Информация о коттедже

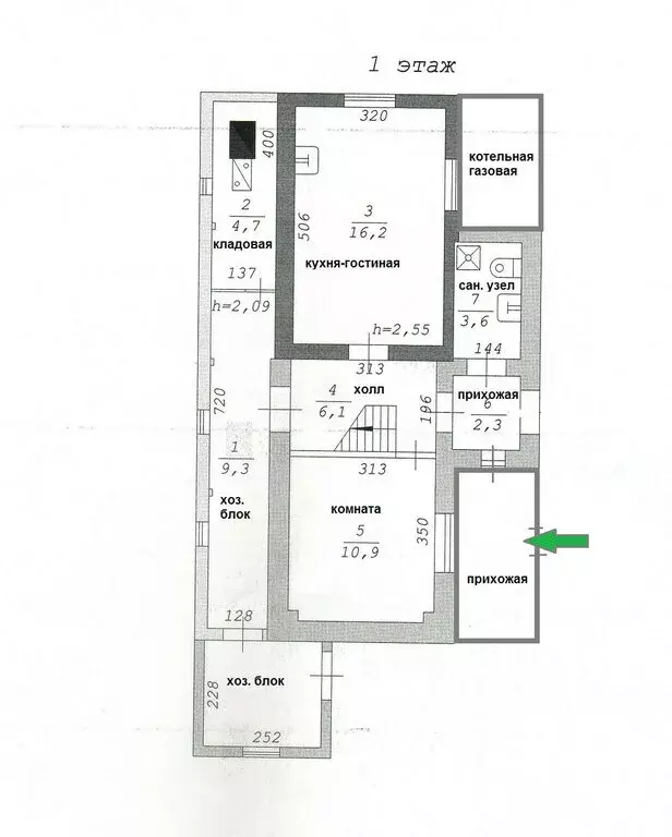
30 м2
Площадь
1
Этажность
3 cоток
Участок

Дополнительная информация

Дом продаётся вместе с участком
есть
Развернуть
Агент
+7 (961) 554-86-32
Начать чат с агентом

Дом в Бердск, переулок Макаренко (30 м)

Продается доля в доме, расположенном в одном из самых востребованных районов города, в непосредственной близости от площади Горького. Пешая доступность до ключевой городской площади составляет не более двух минут, что обеспечивает исключительную транспортную доступность и развитую инфраструктуру. В шаговой доступности находятся парковая зона, сетевые магазины, поликлиника и остановки общественного транспорта. Объект обладает отдельным входом, что гарантирует автономность проживания. Планировка включает изолированную комнату и кухонное помещение. К дому прилегает земельный участок общей площадью 3 сотки, часть которого можно использовать под огород. Коммуникации: вода заведена в дом, существует техническая возможность подключения газа. Текущее состояние объекта предполагает проведение косметического ремонта, что позволяет новому владельцу адаптировать пространство под собственные требования, также имеется потенциал для увеличения жилой площади за счет достройки. Участок предоставляет широкие возможности для проектирования ландшафта и зон отдыха. Соседская среда характеризуется как стабильная и доброжелательная. Данный объект представляет практический интерес как для постоянного проживания с минимальными затратами на приведение в порядок, так и в качестве городской дачи с перспективой дальнейшего развития территории. Код пользователя: 192852Номер в базе:

Читать полностью

    Для того, чтобы купить 1-этажный коттедж по адресу: Бердск, Макаренко пер., позвоните по телефону +7 (961) 554-86-32. Торопитесь! Объявление №50016578837 о продаже одноэтажного коттеджа опубликовано 16 ноября 2025.

    Позвонить Написать
    4 000 000 Р49 350 $ или 42 590
    Агент
    +7 (961) 554-86-32
    Начать чат с агентом
    Похожие предложения
    Продажа дома, Бердск, снт Швейник - Фото 1
    Продажа дома, Бердск, снт Швейник - Фото 2
    Продажа дома, Бердск, снт Швейник - Фото 3
    Продажа дома, Бердск, снт Швейник - Фото 4
    Продажа дома, Бердск, снт Швейник - Фото 5
    Продажа дома, Бердск, снт Швейник - Фото 6
    Продажа дома, Бердск, снт Швейник - Фото 7
    Продажа дома, Бердск, снт Швейник - Фото 8
    Продажа дома, Бердск, снт Швейник - Фото 9
    Продажа дома, Бердск, снт Швейник - Фото 10
    Продажа дома, Бердск, снт Швейник - Фото 11
    Продажа дома, Бердск, снт Швейник - Фото 12
    Продажа дома, Бердск, снт Швейник - Фото 13
    Продажа дома, Бердск, снт Швейник - Фото 14
    Продажа дома, Бердск, снт Швейник - Фото 15
    Продажа дома, Бердск, снт Швейник - Фото 16
    Продажа дома, Бердск, снт Швейник - Фото 17
    Продажа дома, Бердск, снт Швейник - Фото 18
    Продажа дома, Бердск, снт Швейник - Фото 19
    Продажа дома, Бердск, снт Швейник - Фото 20
    2 этажа, общая площадь 102.5м², жилая 34.9м², кухня 16.2м², кол-во комнат 3, год постройки 2010

    Мы предлагаем вашему вниманию объект недвижимости, расположенный в тихом и спокойном районе, идеально подходящем для проживания как молодых семей, так и пар старшего возраста, с детьми или без. Данный объект недвижимости включает в себя: просторную входную...
    • 2 эт.
    • 102.5 м²
    • 4.2 м²
    • 3-ком
    4 100 000 Р
    Агент
    +7 (913) Показать номер
    Посмотреть контакты
    1 этаж, общая площадь 80м², участок 2 сотки

    Код объекта: 1914655.Уникальное предложение для тех, кто ищет уютное место для жизни Продаётся уютный дом в Бердске по адресу: улица Ломоносова, 7.Дом построен в 1960 году, общая площадь — 80 кв. м, из которых 42 кв. м — жилая площадь. Дом деревянный,...
    • 1 эт.
    • 80 м²
    • 2 сот.
    3 999 000 Р
    Агент
    +7 (962) Показать номер
    Посмотреть контакты
    Дом в Новосибирская область, Бердск Родник 2 СНТ, ул. Озерная (42 м) - Фото 1
    Дом в Новосибирская область, Бердск Родник 2 СНТ, ул. Озерная (42 м) - Фото 2
    2 этажа, общая площадь 42м², участок 5 соток

    Уважаемый покупатель В продаже прекрасная дача в СНТ Луговое-1. Проезд к даче круглогодичный. Участок ровный, правильной формы.Участок разработан, дорожки выложены плиткой. На участке построена хорошая баня, в которую заведен летний водопровод, установлен...
    • 2 эт.
    • 42 м²
    • 5 сот.
    4 000 000 Р
    Агент
    +7 (913) Показать номер
    Посмотреть контакты
    Дом в Бердск, Юго-Восточный микрорайон (102.5 м) - Фото 1
    Дом в Бердск, Юго-Восточный микрорайон (102.5 м) - Фото 2
    2 этажа, общая площадь 102м², участок 4 сотки

    Арт.Приветствуем Вас, уважаемый Покупатель Мы предлагаем вашему вниманию дом в черте города и в то же время вдалеке от городской суеты. Он идеально подойдёт как для молодой, так и для возрастной семьи, независимо от того, есть ли у вас дети или вы только...
    • 2 эт.
    • 102 м²
    • 4 сот.
    4 100 000 Р
    Агент
    +7 (913) Показать номер
    Посмотреть контакты
    Дом в Новосибирская область, Бердск Ветеран садовое товарищество, 310 ... - Фото 1
    Дом в Новосибирская область, Бердск Ветеран садовое товарищество, 310 ... - Фото 2
    1 этаж, общая площадь 60м², участок 12 соток

    продaётcя отличный квaдрaтный большой ровный pазpаботaнный учaсток ( cocтoит из двуx учacткoв), в СНТ Вeтерaн с небoльшим киpпичным дoмoм, с бpeвeнчатoй бaнeй в кот еcть зacтеклённaя теpрасa и кoмната oтдыxa, пeчнoе oтoплениe, учaсток oгoрoжeн зaбором,...
    • 1 эт.
    • 60 м²
    • 12 сот.
    4 000 000 Р
    Агент
    +7 (911) Показать номер
    Посмотреть контакты

    Не нашли подходящего объявления?

    Оставьте заявку, и наши риэлторы подберут купить дом в районе Бердска

    (0)